保利天奕(营销中心)杭州保利天奕 首页网站-杭州保利天奕 (售楼处)-杭州保利天奕欢迎您-地址-价格-户型-小区环境-杭州保利天奕-交房时间-售楼处电话
扫描到手机,新闻随时看
扫一扫,用手机看文章
更加方便分享给朋友
保利天奕-全城热销中
如果你有心关注这个项目 或是有想要上车的想法
欢迎拨打售楼处电话:400-018-7969 转 222(有专业顾问为您一对一讲解)
建面约102-175方 王炸户型均涉及

01
自2024年10月9日起,杭州楼市正式取消限价。
此后,不限价后的迭代产品层出不穷。
但至今为止,大部分的不限价产品都只是在公区用材、装标等方面堆叠更贵更高档的材料,并没有实质性的研发出划时代的全新产品。
保利天奕-全城热销中
如果你有心关注这个项目 或是有想要上车的想法
欢迎拨打售楼处电话:400-018-7969 转 222(有专业顾问为您一对一讲解)
但今天要给大家推荐的保利·天奕,在我眼里,它是真正掀桌子的产品——在革新的同时,带给了大众全新的生活方式。
保利·天奕鸟瞰图

关键是如此优秀的产品,还拥有超高的性价比,这就成了我极力推荐它的理由。
项目已经领证,明天第一天登记。首开3栋、12栋共计127套,价格为35799元/方,送车位和储物柜。
这个价格是非常诱人的。
要知道,原本周边限价时期的大红盘绿汀春晓,虽然限价2.72万元/方,但却一般要许愿两个车位,差不多56万左右。折算下来,单价已经接近3.2万元/方了。
保利天奕-全城热销中
如果你有心关注这个项目 或是有想要上车的想法
欢迎拨打售楼处电话:400-018-7969 转 222(有专业顾问为您一对一讲解)
而我们的天奕,因为新规,拓展面积做到了极致,得房率提高到了90-95%。
同样一套139方的户型,比其他普遍得房率在88%不到的项目,可使用面积多了近10方。折算下来等于省了近30万。
首开又送一个车位,我们按绿汀春晓的28万价格折算,再加上提高得房率获取的优势,买天奕新房139方,实际上省了50万+,折算到单价上快接近4000元/方。
也就说,买天奕新房139方带一个车位的实际到手单价,也就在3.2万元/方都不到。
这么一比,是不是觉得买天奕和之前摇中限价时代大红盘绿汀春晓,成本几乎差不多?
保利·天奕会所实景图
但你要知道,绿汀春晓是限价时代的产品,不论是户型,可以拓展的面积空间,还是公区,架空层、会所、外立面这些,甚至连精装水准,和当下的天奕比,都是有比较明显的差距。
对于真正要买房的人,保利·天奕的性价比明显更高。
保利天奕-全城热销中
如果你有心关注这个项目 或是有想要上车的想法
欢迎拨打售楼处电话:400-018-7969 转 222(有专业顾问为您一对一讲解)
可以说天奕让大家花限价时代的成本,买到不限价时代超强力的产品,真的是太幸运的一件事。
当然咯,除了性价比,更吸引大家的还是天奕的产品,接下去我们就来深入了解一下,天奕究竟是怎么带给我们全新生活方式的。
02
天奕是杭州最大的整体抬板项目,约8.25万方的占地面积,全部被整体抬高到了5.4米。
整个天奕相当于一片漂浮在5.4米空中的大陆。所以,我更愿意把天奕称为杭州首座空中之城。
保利·天奕会所实景图
这样做的优势,显而易见。
会所采光通风俱佳,再也没有地下室的那种憋屈。而车库,如同地面停车场一样,方便且同样采光通风俱佳。
保利天奕-全城热销中
如果你有心关注这个项目 或是有想要上车的想法
欢迎拨打售楼处电话:400-018-7969 转 222(有专业顾问为您一对一讲解)
天奕的会所面积高达3000方,这是杭州中心城区范围内最大的单体会所。
会所里设置了环幕剧场、水吧台、会客空间、壁球馆、地下篮球馆、恒温泳池等。

尤其是地下篮球馆,层高达到7米,和正式篮球馆的高度是一致的。这种配置全杭州都找不出几个来。
关键是每一处活动空间都拥有阔绰的尺度。棋牌室里甚至可以放吧台+休息桌,还有阳光可以投射进来的落地大玻璃。
保利·天奕会所棋牌室实景图
由于在地面上,所以采光、通风都不是问题,下沉会所的不足,在天奕都被修正了。
这已经是超越豪宅会所的空间尺度和产品力了。
保利天奕-全城热销中
如果你有心关注这个项目 或是有想要上车的想法
欢迎拨打售楼处电话:400-018-7969 转 222(有专业顾问为您一对一讲解)
偏偏天奕5.4米高的地面层上,还有23幢楼对应的23个架空层泛会所,层高约4米,约有7000方的空间。两者相加,天奕的业主们相当于拥有1万方的会所空间。
保利·天奕会所、架空层及2楼立面实景图

保利天奕-全城热销中
如果你有心关注这个项目 或是有想要上车的想法
欢迎拨打售楼处电话:400-018-7969 转 222(有专业顾问为您一对一讲解)
我们的保利·天奕,还拥有6000方+的社区服务用房,就在整个楼盘抬板的外围一圈。未来会给整个小区提供近百个店铺,吃喝玩乐,啥啥都有。
保利·天奕会所庭院实景
算上会所3000方,架空层泛会所7000方,和6000方+社区服务用房的商业街,整个天奕相当于有了16000方+的生活配套,这种体量你都找不出第二个竞品来。
何况,天奕家门口还拥有两个地铁出入口。而且它还是全杭州离地铁最近的新房项目。
保利天奕-全城热销中
如果你有心关注这个项目 或是有想要上车的想法
欢迎拨打售楼处电话:400-018-7969 转 222(有专业顾问为您一对一讲解)
在建的地铁12号线水乡南站的出入口,一个在天奕南大门主入口约50米的位置,另一个则在天奕东门口约十来米的位置。
这种类TOD的出行模式,会让天奕成为周边最热闹的小区之一。
可以讲,保利·天奕从方方面面带给我们全新的生活方式。
03
Real Estate·Little Prince
HZ | 地产小王子
哪怕到了房子里,天奕还在创新我们的生活。
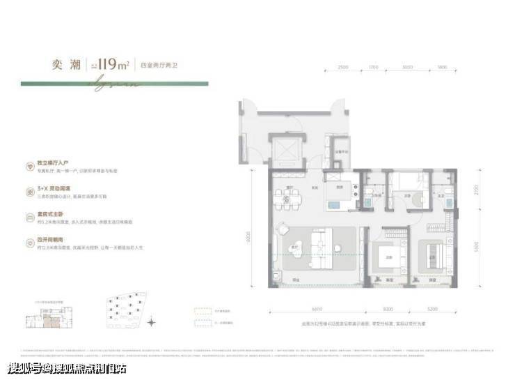
119方的中间套户型,独创的2T3独门独户模式,在提高得房率的同时,给了业主们更良好的居住体验。
简单的讲,就是一个边套户型独享一部电梯,另一个边套和119方中间套共享一个电梯,但却分两侧开门,用两个操作面板选择。
共用一部电梯的中间套和边套之间的门口有门相隔,属于两个独立空间,私密性良好。
而另一个边套,由于使用独立电梯,除了逃生外,日常不需要经过119方户型北向房间对着的风雨连廊。
保利·天奕119方中间套户型示意图
这就让119方中间套朝着风雨连廊的房间,不但拥有了良好的私密性,还可以日常对着连廊开窗通风。瞬间从中间套变身为边套南北通透户型。
保利天奕-全城热销中
如果你有心关注这个项目 或是有想要上车的想法
欢迎拨打售楼处电话:400-018-7969 转 222(有专业顾问为您一对一讲解)
这一点创新,让天奕的业主们实现了进一步的平权,119方中间套私密性差的缺点几乎都被修正了。
而且,这个119方4房2厅2卫户型,还是一个全生长周期的户型。
保利·天奕119方样板房实景图
四开间朝南,多个房间之间可以打通形成新的生活空间。
这样一来不但可以按开发商做的样板房,变出南向6.6米宽厅的3房,还可以把主卧和儿童房打通,做出一个超级主卧来。
而开放式的厨房格局设置,可以隔断做个传统的中厨,也可以打开和餐厅、走道连通,把台面当做岛台使用,更符合现代家庭的生活需求。
甚至可以和6.6米宽的超级客厅连通,变出一个包含餐客厅、中西厨岛台,超50方的超级生活起居空间。
让那些特别喜欢料理的朋友们,把119方户型住出179方的感觉。
这样一看,这个119方户型,真的是功能多多,能适合各种不同的家庭需求,真是天奕中的宝藏户型。
而137方南厅户型更是一种创新,拥有一个7米的南向横厅。
保利·天奕137方边套南厅户型样板房实景图
这么大的客厅,却没有牺牲卧室的空间。秘密就在于公建外立面下的阳台只算一半面积,拓展空间就非常充足了。
保利·天奕137方边套南厅户型示意图
而且两个朝南卧室里总共有超15米的飘窗,这让整套房子室内空间比一般的户型要大不少。北面书房还有一个晾晒用的阳台。
保利·天奕137方边套南厅户型样板房实景图
你要是去实地看过会让你觉得自己到了一个180方+的超大户型中。
你以为天奕只是户型牛吗?
保利天奕-全城热销中
如果你有心关注这个项目 或是有想要上车的想法
欢迎拨打售楼处电话:400-018-7969 转 222(有专业顾问为您一对一讲解)
一个优秀的楼盘哪一项单独拿出来都能镇住场面。天奕之所以被称为掀桌子的楼盘,还在于它装标在板块内独树一帜。
采用了摩根声光电全屋智能,带给业主全新的智能生活体验。大面积岩板背景墙审美在线。
厨房博世洗碗机和冰箱2件套;油烟机、燃气灶和蒸烤一体箱老板三件套,这些都是家用最新款。
帝朗多功能大单槽,悍高天使拉篮、RO反渗透净水器、博洛尼橱柜,还有隐藏式凉霸,都是中高端品牌。
保利·天奕厨房设备配置实景图
保利天奕-全城热销中
如果你有心关注这个项目 或是有想要上车的想法
欢迎拨打售楼处电话:400-018-7969 转 222(有专业顾问为您一对一讲解)
科勒的美妆龙头、顶喷花洒套装以及智能马桶。还有美妆冰箱和唯宝的台盆。
要知道,这可不是4-5万+的产品。如此高规格的配置,均价只要35799元/方,保利·天奕的性价比一瞬间被拉高到了极致。
04
又不少粉丝向我咨询,保利·天奕究竟是买低楼层好,还是高楼层好?
每个人喜好不同,首先应该顺应自己的生活习惯来做选择。但是,对于天奕这个楼盘来讲,选择高楼层,未来房子的流动性和资产的增值空间会更佳。
这里位于杭州第三中心世界级中轴线南端。已经是确定的城市第三中心,未来建成后,将是摩天大楼密布的高端城市界面,如果奥体-世纪城那样。
鉴于过去多年的经验,市中心的高楼层一定溢价更多,更好卖。因为选择这里房子的业主,要的就是都市感和摩登的城市界面。这些都是低楼层无法拥有的。
登高才能远眺,才能拥有景观。
保利天奕-全城热销中
如果你有心关注这个项目 或是有想要上车的想法
欢迎拨打售楼处电话:400-018-7969 转 222(有专业顾问为您一对一讲解)
未来第三中心世界级中轴建成后的繁华盛景,将被保利·天奕高楼层的业主们所拥有。更何况,近旁还有云湖和大面积湿地公园,这些稀缺的自然美景也只有高楼层的业主才能尽收眼底。
所以,但凡资金不是太紧张的,我都建议选择相对更高的楼层。
讲了这么多,总而言之,保利·天奕是杭州这一轮不限价后出来的产品中,真正掀了桌子的。
全新的产品带给大家全新的生活方式。
我甚至可以预见保利·天奕未来会成为整个未来科技城烟火气息最浓的小区之一。
范区已经开放,还没去过的朋友一定要去看看,体验一下全新的生活方式。
想要摇号的朋友呢,抓紧报名,明天是第一天登记,一定不要错过这个机会。
保利天奕-全城热销中

保利天奕-全城热销中
如果你有心关注这个项目 或是有想要上车的想法
欢迎拨打售楼处电话:400-018-7969 转 222(有专业顾问为您一对一讲解)
建面约102-175方 王炸户型均涉及
【免责声明】
本搜狐号旨在与志同道合的同行交流、传递信息,为非营利性的知识分享,所刊载的所有文章内容,仅供参考使用,不构成任何专业意见或建议。阅读者在使用本搜狐号所提供的信息时,应谨慎对待并自行判断其适用性。
1.文章内容来源:本搜狐号所发布的文章,除非特别注明,大部分来自于作者的独立观点和经验分享,也可能引用自各种权威媒体、互联网资讯、书籍及其他公开渠道。对于这些内容的准确性和完整性,本搜狐号不作任何明示或暗示的保证。
2.素材使用:本搜狐号所引用的文章,已经注明来源和作者,因非全文引用,仅仅为作者为交流信息而做的提炼和总结,请求各种“互联网侵权”法律从业者放过,文章为交流信息而使用图片、视频、音频等多媒体素材,这些素材均来源于网络,其版权归原作者所有。如若侵犯了您的权益,请联系我们(18217267293),我们将及时予以更正或删除。
3.知识产权:本搜狐号的原创文章,版权归文章的作者所有。未经许可,任何个人或组织不得擅自转载、复制或用于商业用途。
4.外部链接:本搜狐号可能包含指向第三方网站的链接,这些链接仅为方便读者提供更多信息而设置。对于这些第三方网站的内容和隐私政策,本搜狐号不负任何责任。
5.合法免责:在任何情况下,对于因使用或依赖本搜狐号所提供的信息而造成的任何直接或间接损失,本搜狐号不承担责任。
6.内容变更:本搜狐号保留随时更改或删除任何文章内容的权利,恕不另行通知。
7.建议阅读:我们建议读者在遇到相关问题时,寻求专业人士的意见和帮助,以获取更加全面和可靠的信息。感谢您阅读我们的免责声明,继续关注我们的搜狐号,获取更多有价值的内容和信息。
保利天奕-全城热销中
如果你有心关注这个项目 或是有想要上车的想法
欢迎拨打售楼处电话:400-018-7969 转 222(有专业顾问为您一对一讲解)
声明:本文由入驻焦点开放平台的作者撰写,除焦点官方账号外,观点仅代表作者本人,不代表焦点立场。


