棠悦芳华轩-杭州(棠悦芳华轩)楼盘详情-棠悦芳华轩房价-户型-交通地址-棠悦芳华轩-全城热销中
扫描到手机,新闻随时看
扫一扫,用手机看文章
更加方便分享给朋友
欢迎拨打售楼处电话:400-018-7969转444(有专业顾问为您一对一讲解)
今日转认购【滨江•棠悦芳华】
主城滨江造300万级 ❗
新天地➕山姆➕天街 ⚠️送车位
最高5.4米架空层➕四面铝板➕封闭阳台
约99-120-128-139方小高层
上面是113样板房
✳️送一个车位
✅四面铝板+封闭阳台
✅中央戏水池+主题架空层
✅顶配装标,新风地暖中央空调、智能马桶全配齐
✅周边六大商业综合体环伺
主城滨江造300万级
新天地➕山姆➕天街
最高5.4米架空层➕四面铝板➕封闭阳台
立面是颜值,也是价值。造价昂贵的高级铝板,通透如玉的大面玻璃,是世界豪宅的宠儿,也是棠悦芳华轩的美学表达。棠悦芳华轩通过四面铝板+大面玻璃+首层局部石材的高级选材,并采用斜切手法,让立面更立体感,端头辅以圆弧型材,使建筑尊贵、典雅的同时不失柔和、自然(外立面材质以商品房买卖合同约定为准)。
欢迎拨打售楼处电话:400-018-7969转444(有专业顾问为您一对一讲解)
棠悦芳华轩的景观灵感来自著名珠宝品牌CHAUMET,以“繁花造型珠宝”为设计理念,将大胆、华丽、创新于景观之中,形成特有的珠宝风格景观设计系统。
以东方礼制为精髓,主入口的归家院落、迎宾水景和度假水池,带来层层递进的归家礼序。中国传统世家大宅的仪式感和当代豪宅的尊贵感,统一在棠悦芳华轩。
快节奏的都市,繁忙的工作,远离家乡的奔波,零碎的时间,使得现在的都市青年内心总是渴望追求松弛的状态。在深刻洞察现代年轻人的基础上,景观中的八大主题岛屿,是棠悦芳华轩献给当代都市青年的度假生活,每一处岛屿都在给年轻人提供高度的情绪价值。
欢迎拨打售楼处电话:400-018-7969转444(有专业顾问为您一对一讲解)
尊贵感十足的迎宾大门,仪式感十足的水岸会客区,惬意十足的度假海岛,月亮主题的亲子乐园,沉浸式疗愈的微风艺术草坪,浪漫休闲的艺术水庭,优雅精致的单元景墙,消融景观与架空层边界的五大联动花园。
八大岛屿之中,棠悦芳华轩甄选古朴典雅的罗汉松、度假气息浓郁的银海枣、紫气东来的特选紫薇、造型优美的红枫、寓意长寿的油橄榄、丛生石榴、红果冬青,用绿植和空间营造美学沉浸的都会谧境。
未来交付之后,漫步在园区之中,既有生活场景的随意切换,又有四季花语的精心的编织,还有心情与情绪的自由抒发。
穿越八大岛屿的景观,进入架空层和室内,棠悦芳华轩的每一处空间同样都是惊喜。
架空层内,从全龄业主的生活出发,规划了复合阅读书吧、会客、童玩、健身、青少年活动天地、长者康养等7大功能空间,每一处空间都像是一个超级“聚场”,是开放的社区朋友圈。
比如超级马里奥主题的儿童活动区,不仅铺满了约240㎡的架空层,而且步入的瞬间就拥有超强的治愈功能,它让孩子拥有更好的童年,它让成人找回曾经的童心。
或许,家长未来陪伴孩子成长的时候,会真正从大人做回小孩。
室内精装修上,棠悦芳华轩从现代年轻人的审美出发,呈现了香奈儿、奶油风和现代雅奢三种风格。
欢迎拨打售楼处电话:400-018-7969转444(有专业顾问为您一对一讲解)
象牙白搭配大花白纹理岩板与雅黑金属,复刻的是香奈儿的黑白哲学;奶油色、浅米白、牛油果绿等色彩的巧妙融合,呈现的是奶油风的温润和温馨;深木色主色调基础上搭配亮面灰色瓷砖,表达的是现代雅奢的静谧内核。
棠悦芳华轩用三种风格,给多元审美的现代都市青年更多的生活场景与选择。
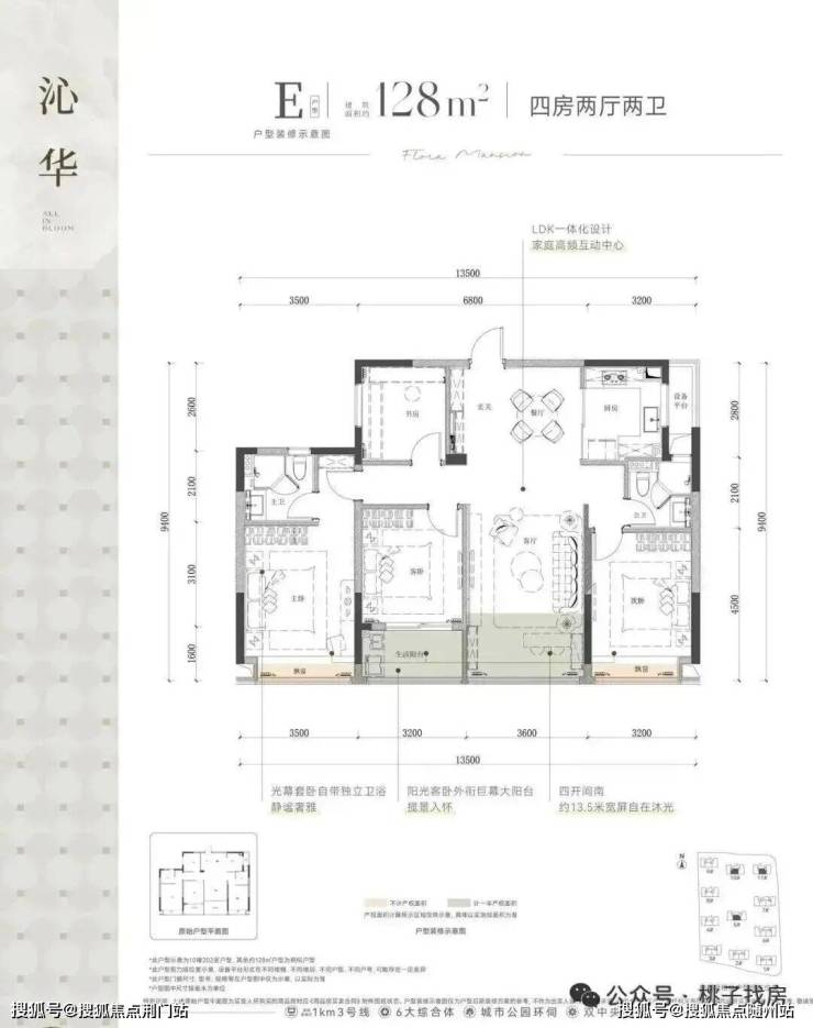
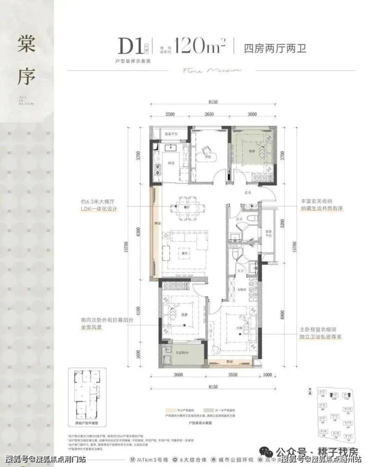
棠悦芳华轩规划的全部是友好的中小户型,主力户型建面约99-139㎡,总共504套房源
在主城区全面改善化甚至豪宅化的背景下,在起步建筑面积动辄140㎡甚至180㎡的主城区,棠悦芳华轩的中小户型定位,带来的是面向中产客户的友好总价。预计总价最低可能不到300万,就能够买到棠悦芳华轩,留在主城区。
项目简介:
【区域板块】:主城拱墅
【开 发 商】:滨江集团
【总建面积】:约90198㎡
【业态规划】:规划11栋高层,建面约99-139㎡城市谧境作品
【总 席 位】:504席
【容 积 率】:约2.2
【绿 地 率】:≥35%
【产权性质】:70年
【物业公司】:滨江物业
【装修情况】:精装修
🔹大匠合鸣
滨江集团——豪宅品质专家,携手兴耀、西房,强强合著。
🔹品质合意
集萃滨江33载产品力大成,四面铝板立面(注:内天井、外天井、设备阳台的外墙面为涂料,底层局部石材,具体以商品房买卖合同约定为准),打造「滨江的精选」标杆。
🔸繁华合叠
山姆超市、吾悦广场、龙湖天街、中大银泰城、杭州新天地、宝龙广场六大综合体。
🔹公园合融
超1100公顷臻稀公园大境,主城难得繁华静谧兼享。
🔸交通合链
地铁3号线,秋石、留石、德胜三大快速路,立体交通。
🔹学府合萃
桦枫居幼儿园、安吉路景成实验学校、青蓝青华实验小学等(期房不承诺学区,具体学区划分以政府公示为准)。
🔸双园合谧
“双园八境”城市谧境,打造主城心奢度假日常。
🔸健康合安
树兰医院、杭州市中医院丁桥院区等两大三甲医院专业护航。
欢迎拨打售楼处电话:400-018-7969转444(有专业顾问为您一对一讲解)
景观设计风格与建筑相统一,整区打造“合悦绽放,漫岛芳华”的主题概念,享艺术、微度假、秀生活的景观,从细节出发匠心打造隐奢美学界面。景观灵感源自著名珠宝品牌CHAUMET,以“繁花造型珠宝”为设计理念,将大胆、华丽、创新于景观之中,形成特有的珠宝风格景观设计系统。


一、交通配套:得益于板块周边居住氛围的成熟,项目周边已形成"三横三纵"立体路网。
直距约1.1km地铁3号线华丰路站 ;2站新天地,换乘4号线快速抵达东站、钱新;7站西湖文化广场
秋石高架、留石高架、德胜高架三大快速路;秋石高架直达钱江新城、东站、奥体;留石高架快速连接申花、紫金港。
欢迎拨打售楼处电话:400-018-7969转444(有专业顾问为您一对一讲解)
二、商业配套:岁月奔涌向前,城市更新未来。2017年,棠悦芳华所在的拱墅高地迎来大规模城市更新,华丽转身之后,繁华千年的主城拱墅,各大商圈璀璨鼎立,正焕新不息的潮流烟火。
📍直距约1.5km山姆超市;直距约1.3km宝龙广场;1.7km吾悦广场;直距约2.3km龙湖天街;直距约2.5km中大银泰城;直距约2.7km杭州新天地;直距约150m大润发商业中心
三、教育资源:棠悦芳华轩所在的拱墅,是杭州教育资源最为丰富及优质的主城区之一,棠悦芳华轩周边的学府资源也十分丰富(期房不承诺学区,具体学区划分以政府公示为准)。
📍直距约0.14km桦枫居幼儿园;直距约0.68km九年一贯制公办安吉路景成实验学校,由浙江省实验学校安吉路实验学校嫁接办学,为九年一贯制公办学校;直距约1.3km青蓝青华实验小学,百年名校杭州市青蓝小学教育集团下新独立的一所学校;
📍直距约1.2km安华幼儿园;直距约1.2km求知小学;直距约1.5km风华中学。

四、自然景观:城市越繁华,公园越珍贵。
📍直距约2km杭钢公园;直距约2.6km桃花湖公园;直距约1.2km半山国际森林公园;直距约1.5km北景园生态公园;直距约4.7km城北体育公园。占据城市稀缺公园资源的棠悦芳华轩,享受的不仅是风景,更是价值的峰藏。

欢迎拨打售楼处电话:400-018-7969转444(有专业顾问为您一对一讲解)
五、医疗配套:棠悦芳华轩,直距约2.4km树兰医院。更有杭州市中医院丁桥院区、杭州文仲中医医院为健康生活保驾护航。

滨江棠悦芳华轩-全城热销中
如果你有心关注这个项目 或是有想要上车的想法
欢迎拨打售楼处电话:400-018-7969转444(有专业顾问为您一对一讲解)
王炸户型均涉及
售楼处热线:400-018-7969转444(来电尊享售楼部优惠活动)
如有问题欢迎来电咨询,来电即可享受买房优惠!
预约来电尊享内部优惠,可预约案场内部销售人员,专业一对一热情服务,让您用专业眼光去买房。
【免责声明】
本搜狐号旨在与志同道合的同行交流、传递信息,为非营利性的知识分享,所刊载的所有文章内容,仅供参考使用,不构成任何专业意见或建议。阅读者在使用本搜狐号所提供的信息时,应谨慎对待并自行判断其适用性。
1.文章内容来源:本搜狐号所发布的文章,除非特别注明,大部分来自于作者的独立观点和经验分享,也可能引用自各种权威媒体、互联网资讯、书籍及其他公开渠道。对于这些内容的准确性和完整性,本搜狐号不作任何明示或暗示的保证。
2.素材使用:本搜狐号所引用的文章,已经注明来源和作者,因非全文引用,仅仅为作者为交流信息而做的提炼和总结,请求各种“互联网侵权”法律从业者放过,文章为交流信息而使用图片、视频、音频等多媒体素材,这些素材均来源于网络,其版权归原作者所有。如若侵犯了您的权益,请联系我们(18217267293),我们将及时予以更正或删除。
3.知识产权:本搜狐号的原创文章,版权归文章的作者所有。未经许可,任何个人或组织不得擅自转载、复制或用于商业用途。
4.外部链接:本搜狐号可能包含指向第三方网站的链接,这些链接仅为方便读者提供更多信息而设置。对于这些第三方网站的内容和隐私政策,本搜狐号不负任何责任。
5.合法免责:在任何情况下,对于因使用或依赖本搜狐号所提供的信息而造成的任何直接或间接损失,本搜狐号不承担责任。
6.内容变更:本搜狐号保留随时更改或删除任何文章内容的权利,恕不另行通知。
7.建议阅读:我们建议读者在遇到相关问题时,寻求专业人士的意见和帮助,以获取更加全面和可靠的信息。感谢您阅读我们的免责声明,继续关注我们的搜狐号,获取更多有价值的内容和信息。
声明:本文由入驻焦点开放平台的作者撰写,除焦点官方账号外,观点仅代表作者本人,不代表焦点立场。


