天阳湖与舍丨杭州天阳湖与舍 [24小时售楼中心]|天阳湖与舍价格优惠线上团购来啦|户型配套详情

搜狐焦点荆门站 2025-04-27 17:49:00
用手机看
扫描到手机,新闻随时看

扫一扫,用手机看文章
更加方便分享给朋友

在杭州以外的其他城市,天阳所开发的项目同样颜值高、品质好、口碑好,其中当属江麟邸、江东天第、珑栖天第三个项目比较具代表性。天阳·湖与舍,坐落于『一半是湖景与自然,一半是国际与未来』的江海之城,拥有南向直面一线…

天阳湖与舍

售楼处电话:400-080-0105转333

欢迎来电咨询〢专业一对一热情服务

温馨提示:网上售楼中心〢预约销售经理为您安心购好房

均价22000 总价200w级

户型100,105,128方

得天独厚的地理优势:一线南临东沙湖、约100米地铁7号线江东二路站、一路之隔钱塘区政府...天阳也将通过这个崭新的项目,给出关于自己的生活主张。

目前,天阳已经正式发布了项目案名一一湖与舍。

在开发节奏越来越快的杭州,历时近4个月的打磨,天阳将为杭州带来怎样的产品? 而对于很多欲购买本项目的年轻人而言,天阳又是一家怎样的房企?

杭州,早已树立了在全国居住领域领先的标杆地位,孕育了一大批优秀的房企,每家公司都有自己的绝活,天阳自然也不例外。卓越的户型设计,早些年就奠定了天阳『户型专家』的行业地位,所以很多新进杭州的大型房企,都会先去研究学习天阳所推出的户型。

著名媒体人刘德科曾在一次论坛中这样评价:杭州,是中国住宅产品力的角斗场,在这样一座非常注重居住品质的城市, 产品力的三角函数是由绿城所代表的的美学、万科所代表的性能和天阳所代表的户型组成。当然这里所指的是每家企业在各项专业能力中更擅长的一面。

| 资料图

以好户型为起点,在景观、立面、精装方面内外兼修。天阳开发的住宅遍布杭州东南西北,既有城北区域大盘棕榈湾、滨江江景大宅半岛国际、转塘低密墅品云筑,也有钱新改善臻品凤起、城东新奢著品文晖、申花雅奢豪宅武林邸等等,历经多年潜心耕耘,天阳迄今已在 杭州累计开发超过20个项目

凭借在杭州积累的多年经验,自2017年伊始,天阳将其在杭州的优质产品带到全省其他城市,六年来已迅速开发了40多个项目。 仅2022年,全年累计交付房源超6500套,均以较高的交付率及客户满意度位列行业前列

| 天阳地产项目地图(浙江省)

多年的市场口碑,已然铸就品牌丰碑。连续19年3A级信用企业、2023中国房地产企业综合实力&品牌价值百强等殊荣。迄今为止,天阳已经在 浙江省开发了70多个项目,很多在杭州的老朋友在获知天阳短短几年已发展得如此迅速,都纷纷赞赏有加。

左右滑动查看更多 | 天阳已交付项目实景图

在杭州以外的其他城市,天阳所开发的项目同样 颜值高、品质好、口碑好,其中当属江麟邸、江东天第、珑栖天第三个项目比较具代表性。

位于丽水瓯江畔的 江麟邸,南向直面瓯江江景。天阳以『瓯江帆影』为灵感,利用一个形似船帆的铝板造型构件,在建筑主体上进行挑檐设计,通过局部铝板、蓝色线条的运用,强化建筑的立体感与美感。

| 江麟邸实景图(丽水)

位于金华义乌的 江东天第,直面义乌城市核心梅湖江滨公园,汲取义乌江蜿蜒形态,主体建筑面向江岸的一侧,采取了特殊的倒角设计,大面玻璃和米色铝板线条组合,打造出更具封面感的城市观景立面。

| 江东天第实景图(金华)

位于台州温岭九龙湖畔的 珑栖天第,立面通过高级灰、宽幅玻璃面的组合,以艺术美学重新书写城市的立体风貌,地下室的星空顶设计,为归家营造了更高级的仪式感。

| 珑栖天第实景图(台州)

秉着 『真诚 热爱 精致 创新』的企业文化理念,经过长时间的积淀,天阳有了坚实的产品底盘,不断给市场带来具有诚意的焕新作品,更转化成产品迭新的持续动力。

湖与舍,正是天阳回归杭州以后,以年轻化设计理念所打造的全新作品。

| 规划公示图(公示时间2023.5.31)

天阳·湖与舍,坐落于『一半是湖景与自然,一半是国际与未来』的 江海之城,拥有南向直面一线东沙湖、钱塘区府旁、紧邻地铁口等得天独厚的优势。

| 区域鸟瞰效果图

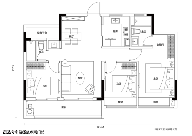
享有『户型专家』美誉的天阳,自然明白杭州人对户型的挑剔。 项目规划建筑面积约100-128㎡三个户型,其中建面约100方的中间套户型颇为亮眼。 南向面宽超12米,铸就户内客卧均南向全明的宜居指标,采光极好,市面少见。

| 天阳·湖与舍建面约100方户型图

如果说中间套的设计像一位一鸣惊人的年轻人,那建筑面积约105㎡户型,更像是一个已经成熟的青年。它拥有 三面采光,约6米长飘窗,可躺可卧可观景, 餐客厨一体,动静分离,南向贯通式阳台,主卧套房设计,居住舒适。

| 天阳·湖与舍建面约105方户型图

湖与舍的好地段好资源,自然要配置一定的改善户型。建筑面积约128㎡户型,适合对居住空间要求较高的三口之家或二孩家庭,甚至是三代同堂的家庭。因为大,所以空间尺度自然舒适,格外值得一提的是,特地 打造了一个独立储藏室,在同类面积段中非常少见。有过生活经验的都懂,储藏空间永远是越多越好。

| 天阳·湖与舍建面约128方户型图

面向未来、拥抱年轻,湖与舍低至 1.8的容积率,并且是区域内稀缺的 精装带地暖住宅、约 3米层高、多面铝板。通过园区景观、架空层等众多值得期待的设计,为江海之城酝酿全新的人居浪潮。

天阳湖与舍

售楼处电话:400-080-0105转333

欢迎来电咨询〢专业一对一热情服务

温馨提示:网上售楼中心〢预约销售经理为您安心购好房

声明:本文由入驻焦点开放平台的作者撰写,除焦点官方账号外,观点仅代表作者本人,不代表焦点立场。