中建玉湖之星/杭州中建玉湖之星怎么样(房价+户型图)-玉湖之星(杭州)中建·玉湖之星 首页网站-楼盘评测_中建·玉湖之星|最新价格|中建·玉湖之星售楼处位置
扫描到手机,新闻随时看
扫一扫,用手机看文章
更加方便分享给朋友
内卷的世界,没有尽头。
这几年,“内卷”二字在各行各业蔓延,并逐渐成为高频词。
楼盘的内卷可以说是方方面面,比如板块地段、品质配套、交通配套等等。
随着生活的不断进阶,置业需求也同步跃升,也意味着人们对高品质生活的不懈追求,同质化的产品让改善置业者疲软和疑虑。
而作为“内卷”楼盘王者,号称勾庄壹号院的中建·玉湖之星为大多数家庭的买房选择提供了一份答卷。

效果图
关键词:
总价300多万+地铁口+城北万象城、银泰城(规划)、K11(规划)边上
唯一头排湖景房+世界500强央企品质+四面铝板
大师作品,九米、朴悦、三一顶级共创,力争板块标杆。
这些关键字集齐在一个项目上,称之为下一个潜力楼盘,应该毫不为过!
“3站申花,5站北大桥,这里的锦绣公馆新房最新预计售价9万,差价5W+”,一站地铁就有1W的价差。
在这个红利角斗场中以其高性价比和稀缺性独领风骚。

地铁线路图
性价比超高也导致板块的房子超难买。
边上的万象城幸福里4次开盘4次万人摇、万科前宸甚至只有人才和无房家庭可以摇号,近3000组报名,限售五年。
板块内还有绿城海棠三子、万科星遇光年府、滨江运翠轩翠里等接连入市,最多一次开盘也是近5000组登记!
边上是杭州唯二万象城、K11selcet(规划)、银泰城(规划)、金融岛(规划)、商业水街(规划)、西田城、万达广场等重量级商业配套。

规划图
玉湖公园是城北大家带娃好去处,拥有美术馆、上岸市集、湖畔营地、大草坪、音乐喷泉、儿童游乐场、水上运动俱乐部,逛累了再去隔壁的城北万象城消费。
以上玉湖公园实景图

教育:1公里范围内有杭行路小学运河校区、杭州市文渊小学、良渚第二小学良渚校区等。
医疗:树兰国际医疗中心(在建)、华润国际医疗中心(在建)、邵逸夫大运河医院。

浙大医院良渚分院

邵逸夫大运河医院效果图
中建·玉湖之星规划了10幢17-26F的高层住宅,共计约658套,标准层层高3米,架空层层高5米左右,较为改善。
在这个产品力的修罗场中,手握三大利刃,直击置业者的痛点。
效果图
第一,设计天团
九米,如果你没听过它,那你一定听过绿城留香园、西溪云庐等,立面都是出他的作品。
钱二5万+的滨江·潮语映月是朴悦的作品。
效果图

第二,四面铝板+开放式水池+下沉式会所➕六幕归家仪式
效果图
外立面由大面积玻璃、四面铝板及金色的金属材质组成。
建筑转角做成圆弧状,玻璃都要弧形的,建筑成本就要大很多,外观神似上海绿城外滩兰庭的外立面。
在杭州,一般也就顶部豪宅才会下此血本。比如位于钱江新城二期,同样是绿城的芝澜月华。
此外还设计了只有豪宅才有的地下会所、泳池、梯控电梯(要比普通成本高30万)。
效果图
第三,公区效果图



效果图
第四,园林景观效果图

第五,品牌开发商
中建三局,在37个国家构筑130余项工程。以技术领先优势,先后承建、参建全国20个省、区、市第一高楼和全国50余座300米以上高楼。从缔造“三天一层楼”的“深圳速度”,到创造“中国速度”,十余天时间建成武汉火神山、雷神山医院,成就世界建筑史上新奇迹。,
在杭州作品有玉湖公园、大悦城、萧山机场、西湖边的雷峰塔新塔、城北万象城的华润超高层写字楼,市民公园等。
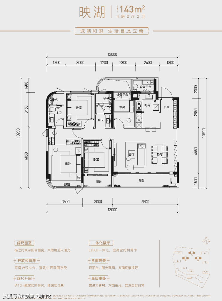
第六,户型图









其中景观比较好的湖景头排是185方,未来在家中可观赏音乐喷泉。
在杭州湖有很多,参考白马湖、桃花湖、金沙湖,周边的二手行情,一线湖景至少有10%以上的额外溢价,而板块目前优质二手房仍有3.5w+的售价。
中建·玉湖之星未来二手房售价也将成为勾庄的巅峰,成为板块的标杆。
玉湖公园实景图
说在最后
地铁口,3站申花,5站北大桥差价5万+,性价比很高。
一线湖景、约600米K11(规划)、700米银泰城(规划)、700米城北万象城。
看得见的倒挂,实打实的配套。
按板块往期楼盘来推算,中建·玉湖之星是个实实在在的闭眼红盘。
声明:本文由入驻焦点开放平台的作者撰写,除焦点官方账号外,观点仅代表作者本人,不代表焦点立场。


