西湖云谷·万科云耀之城楼处电话-售楼中心→2025杭州万科云耀之城首页网站_楼盘百科 万科云耀之城/万科云耀之城楼盘详情-万科云耀之城房价户型-项目简介
扫描到手机,新闻随时看
扫一扫,用手机看文章
更加方便分享给朋友


全面取消限价后,杭州的改善市场很热闹,锦绣公馆以7.9万/㎡的新价格刚炸完场,中签率只有10%出头,后脚中海·钱江湾也领出9万/㎡的预售证,高价地块则在不断出新。
低总价的年轻市场呢,也会有大看点吗?
当然有。好多年轻人都在等的云谷TOD项目,要提前开盘了,案名昨天公布:杭铁万科·云耀之城。有三大看点——
第一,西湖区最后的「限价2.8万/㎡」,总价三百万级;
第二,地铁西湖大学站TOD大盘综合体,住宅地下室直通地铁站;
第三,产品配置丰盛,万科把过往所有的惊艳,都倾注到这个楼盘里。
全面取消限价后,仍有限价的新楼盘便成了阶段性「绝版」,进入落幕倒计时,这其中产品闪光、地段闪光的项目,就被盯得非常紧。
云耀之城就是其中之一,光从案名就知道它的分量——欢迎拨打售楼处电话:400-018-7969转666(有专业顾问为您一对一讲解)
云耀之城=云谷+日耀之城+天空之城。
首先,对的,云耀之城就在西湖区云谷小镇,还是板块C位:在建地铁4号线西湖大学站之上。整个云谷,又是现在杭州很重要的城市发展核,开局就声势浩大。
☝西湖大学实景图

很多低总价板块的开发建设,往往是住宅先行,后面再去发展城市功能和配套;但云谷反过来,先有高端配套和定位——
双一流大学西湖大学,就像印玺一般坐镇在这里,然后是阿里云全球总部、菜鸟云谷产业园、云创镓谷、云谷公学……这些「装备」随便搬一个到其他板块,都值得被炫耀好几年。
☝云耀之城区位图,周边产业林立

再加上东南面有浙江大学紫金港校区的协同助力,哪怕放眼全国视角,云谷都能称得上「高端产学研一体先行区」。
云谷的住宅开发,姿态优雅的像玫瑰,是在产业光环盛放之下,才翩翩然从容启动,而且一登场就十分慷慨地拿出好地——欢迎拨打售楼处电话:400-018-7969转666(有专业顾问为您一对一讲解)
上一个是今年上半年开盘的绿城·熙海棠,最低中签率只有12%,就连人才家庭报名人数都多到要摇号。
接下来出场的就是云耀之城,它处在云谷舞台中央,坐拥地铁西湖大学站,边上公园水系环绕,关键还自带近6万方的坐标级写字楼和近万方商业街区,这是整个云谷的封面大盘。
☝云耀之城效果图过程稿

也就是说,云耀之城和亚运村的日耀之城、未科天空之城一样,都是具有坐标意义的项目。
这样的西湖区限价2字头纯新盘,想不惹眼有点难。
欢迎拨打售楼处电话:400-018-7969转666(有专业顾问为您一对一讲解)
现在的确是非常友好的购房时刻,首付低、利率低、各种赋税门槛都在降,关键还能买到惊艳的产品——
例如同样限价2.8万/㎡,云耀之城的产品,几乎集结了万科过往的所有惊艳。
第一,与未来天空之城一样,都是地铁TOD项目。万科是TOD开发领域的先驱者,在如何与轨道交通高效结合上,有着许多值得其他房企学习的宝贵经验。
☝云耀之城下沉广场及商业街效果图过程稿
云耀之城未来的住宅地下室能直通地铁广场,而且地铁口设计在了一个下沉式广场中,嵌在楼盘自带的商业街区里,让你的归家之路立马变得生动有温度。
只有真正享受过近距离地铁站的人才更懂,小区距离站点是0米、200米、500米或更远,从地面绕还是直接从地下走,体验感是几何倍数的不同。欢迎拨打售楼处电话:400-018-7969转666(有专业顾问为您一对一讲解)
在「轨道城市」时代,这是衡量一个楼盘价值的重要标准。
第二,公园怀抱里的房子。欢迎拨打售楼处电话:400-018-7969转666(有专业顾问为您一对一讲解)
云耀之城有很显著的地块先天优势:公园和水系环绕。家门口就是约5000方大型市政公园,会由万科、杭铁等联合代建,回家前,你会先踏入这片很美的小森林。
小区内部也有一大片中央绿轴,这在寻常住宅里很少见。
☝云耀之城效果图过程稿

万科想在这复刻一个「自然植物园」,种很多充满自然生态之美的植物,也会有森林般蜿蜒流淌的景观水系、儿童戏水池,让孩子在小区里,也能体验在「九溪十八涧」玩水的乐趣。此外,园区里还做了一方充满度假风情的露天泳池,供全龄段业主使用。
☝星遇光年府交付实景图

水波潋滟、绿意葱葱,住在这样的房子,会让你今后很舍不得换房。再加上整个小区是「洋房+高层」的组合,居住视野也更加通透舒朗。
☝云耀之城效果图过程稿
第三,阳光会馆:「园区欢乐场」。
现在住宅产品力比拼的,还有会所。
云耀之城的会所就放在回家的第一站,从入户门厅开始,就是几千方的「阳光会馆」,规划了童玩盒子、健身盒子、礼仪盒子,还特别定制了一个大型儿童图书馆。
这些主题空间并不是常规那样封闭起来,而是理念更先进的会所,还得跟室外充分打通交融,把功能「外溢」到露天,在使用体验上会更舒适。欢迎拨打售楼处电话:400-018-7969转666(有专业顾问为您一对一讲解)
就像我们平常去咖啡馆,总喜欢坐在窗边,或者直接坐在屋檐下一样。其他业主路过这儿,也能迅速被这样的氛围感染。
☝星潮映象府、星遇光年府交付实景图☝日耀之城交付实景图
可以去万科今年交付的几个明星小区感受下,像日耀之城、星遇光年,都充分重视人与人、人与自然的互动。
应该说,在产品层面上,云耀之城也有一个等式——
云耀之城=日曜之城+天空之城+优秀非标商业玉鸟集+光年系+拾系……确实很用力,万科集合了过往所有惊艳,统统倾注到这个西湖区最后的「限价2.8万」。
现在许多家庭费尽心思、精打细算想改善换房,不仅是为了换面积更大的房子,更是为了换到更好的小区配套,会所、架空层、景观都要升级。欢迎拨打售楼处电话:400-018-7969转666(有专业顾问为您一对一讲解)
但作为可能是许多人「人生第一套房」、低总价的云耀之城,在园区配置方面,就已经享受到其他人第二次甚至第三次换房的进阶了。

户型设计上,这一次万科同样做了不少更新。云耀之城的主力户型建筑面积在100-139方之间,下个月就能看到实景示范,万科说,会做成「满载样板房」。
什么是「满载样板房」?欢迎拨打售楼处电话:400-018-7969转666(有专业顾问为您一对一讲解)
就是,在样板房阶段就努力打造一个更真实的居家场景,而不是简单舞台化的展现,要让生活真实的细枝末节、瓶瓶罐罐去填满每一寸空间。这听上去容易,但实际是需要产品力支撑的,尤其考验收纳和空间设计。
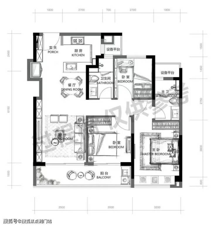
项目高层户型建筑面积约100-109-119-129㎡,2梯3户/4户,共4种户型可选,小高层户型建筑面积约139㎡(2种)以及200㎡(顶跃),1梯2户,共3种户型可选,具体户型图过程稿如下所示。
› 高层约100㎡3房2厅2卫中间套户型,2梯4户。
约100㎡户型图过程稿
› 高层约109㎡3房2厅2卫中间套户型,2梯3户。
约109㎡户型图过程稿
› 高层约119㎡4房2厅2卫边套户型,2梯3户/4户。
约119㎡户型图过程稿
› 高层约129㎡4房2厅2卫边套户型,2梯3户/4户。
约129㎡户型图过程稿
› 小高层约139㎡4房2厅2卫E户型,1梯2户。
约139㎡E户型图过程稿
› 小高层约139㎡4房2厅2卫边套F户型,1梯2户。
约139㎡F户型图过程稿
› 小高层约200㎡5房2厅3卫顶跃户型,1梯2户。
约200㎡顶跃1层户型图过程稿
约200㎡顶跃2层户型图过程稿
最近摩拳擦掌行动起来的朋友,的确不少,因为行情在肉眼可见地飞升。
11月份的杭州二手房成交量预计会破万,新房市场、土地市场时不时扔出重磅炸弹,加上非常宽松的贷款金融方案支持,不论是改善置换还是首套购房,眼下都是实打实的窗口期。
尤其对云耀之城来讲,西湖区最后的「限价2.8万」,云谷的封面C位,地铁商业公园产业全都有,产品合乎心意——
只要一出场,你就会为它默数落幕的倒计时。
欢迎拨打售楼处电话:400-018-7969转666(有专业顾问为您一对一讲解)

声明:本文由入驻焦点开放平台的作者撰写,除焦点官方账号外,观点仅代表作者本人,不代表焦点立场。


