杭州江映云邸楼盘详情-房价-江映云邸户型-江映云邸小区环境-江映云邸欢迎您
扫描到手机,新闻随时看
扫一扫,用手机看文章
更加方便分享给朋友
江映云邸
售楼处电话:400-018-7969接通后输入444
欢迎来电咨询〢专业一对一热情服务
温馨提示:网上售楼中心〢预约销售经理为您安心购好房
在每个购房者心里都有一杆秤。
花最少的钱,买性价比最高的房子。
也因此开发商在偷面积方面“情有独钟”。
过去2年,从奥体、未科到晓风印月、丹枫四季,由开发商统一包阳台的“公建化住宅”在杭州风靡一时。
因为之前包阳台只算一半面积。
而在今年一纸红头文件,封闭式阳台,按其外围护结构所围空间的水平投影面积计算建筑面积,也就是算全面积,3月1日起实施。
今天带来的江映云邸是新政前杭州最后一批土拍地块,也是最后一个上市的楼盘。
这对于精打细算的购房者来说,可以说吸引力巨大红利。
江映云邸立面效果图
因为封阳台的原因,基本每户多约8-10㎡的面积,以江映云邸精装限价4万元/㎡计,比竞品便宜上32-40万,性价比更高。
此外,相比普通住宅,公建化外立面相比普通楼盘颜值更高、避免住户后期包阳台不统一,后期二手房市场价值也更高。
以前或许因为某些原因错过也就错过了,你也不要气馁,如今机会在你面前把握当下即可。
江映云邸预售证已出。首开2、3、4、8、9号楼
面积113-150方,均价40000元。
江映云邸除了赠送面积多外,在产品力上也下足了功夫。
无数案例证明,每个板块只有少数二手房能够触及板块天花板。很多时候,即使是相邻的两个楼盘,在二手房市场上也能够拉开明显的价格差。
而江映云邸,无疑将是板块的产品巅峰。
江映云邸的外立面主体,是四面铝板+公建化外立面。
传统公建化立面,为了追求高级感,会过分讲究外立面的规整。
江映云邸立面效果图
江映云邸
售楼处电话:400-018-7969接通后输入444
欢迎来电咨询〢专业一对一热情服务
温馨提示:网上售楼中心〢预约销售经理为您安心购好房
但住宅不是公建,在江映云邸的立面打造上,经过设计的无数次推敲打磨,加入了迷人的几何线条——约2CM的精致框线窄边,以金、银两种铝板的方式,镶嵌在立面之上,组成双眼皮窗框,内嵌45°斜切棱镜,这样打磨而成的「金丝镜框」,如同一件流畅的艺术品。
最让人惊喜的是江映云邸却实现了北窗户半落地化,窗下墙高度都只有约60cm。
比普通住宅有了30cm差距,等住进去后,让本来朝北采光不佳,变得明亮许多,可以说细节满满,当然,投入的成本又大大增加。
你以为这些就没了吗?
江映云邸的卷让你有点意想不到,如三进制归家大堂。
一进制,手工拼接的巨型“千帆门仪”主入口,用约4642块铝板、超5种曲面构件打磨成霸气门头,宽度足足超过了40米。
交付后将继续保留作为小区人行出入口。
江映云邸主入口效果示意图
江映云邸
售楼处电话:400-018-7969接通后输入444
欢迎来电咨询〢专业一对一热情服务
温馨提示:网上售楼中心〢预约销售经理为您安心购好房
入口特别打造的「晶幕盒子」,遵循黄金长宽比例,选用超7米高度的超白玻璃。纯净无框设计将整个结构连接得更为细密;配上灯光,整个空间更为立面,也更加简洁大方。
以简约纯粹的玻璃盒子为衔接,不仅让江映云邸有了比肩苹果旗舰店礼遇尺度,同时也消弭了内外空间的边界,这也是设计师无界交融理念的升华诠释。
效果图
二进踏浪迎宾,如果你在三亚或曼谷度假,你下楼去泳池边上的时候,会想要有什么,所以我们就做了目前杭州难得一见的飞瀑度假池,还通过瀑布做出了一个分池。
分池边上,又做了相应的水面延伸,边上是层高约5米的5号楼架空层,这里未来有个个吧台,然后飞瀑那边又有廊架和spa椅,把四面的空间都结合起来。
江映云邸效果图
22个「口袋公园」:围绕四季度假池,江映云邸打造22座口袋公园,让星罗密布的公园以四季度假池为核心,如珍珠般串联,营造高密度的无界绿洲。
6座「庭院会所」:江映云邸赋予每一个架空层空间不同的功能主题,打造云书院、度假岛、读书岛、能量岛、童趣岛、老友岛,同时把架空层与庭院进行融合设计,让主题化架空层,拥有一个相对独立的专属花园。


江映云邸
售楼处电话:400-018-7969接通后输入444
欢迎来电咨询〢专业一对一热情服务

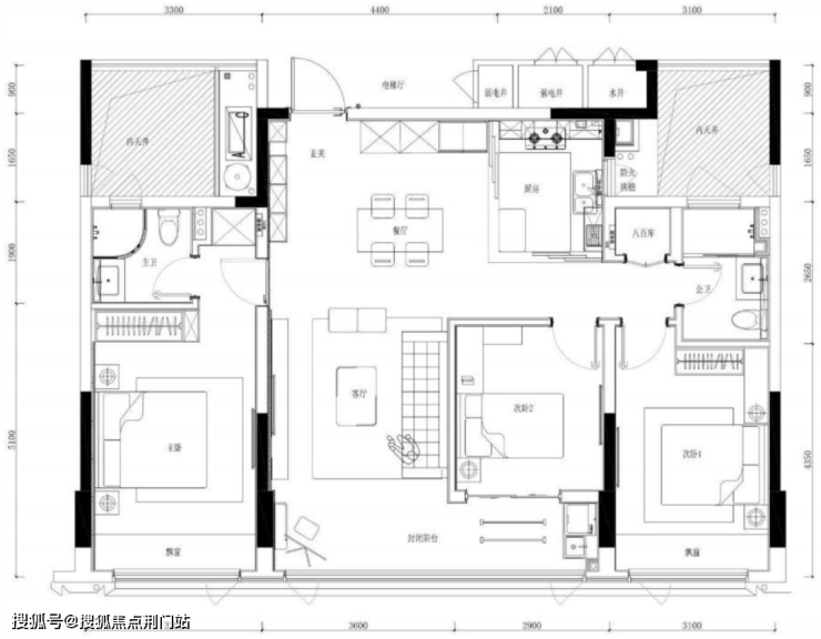
113方是这两年非常流行四开间南布局,“3卧+客厅”均朝南,这种户型设计一般只会出现在139方以上户型。
可以说秒杀市面上同面积段户型,对预算有限的朋友可以说是个非常好的选择。

建面约136方的超级豪华餐厅阔绰布局“餐桌+中岛台+双边餐边柜”,轻松容纳10人大圆桌。
因为纯公建外立面,阳台封闭完全室内化,成为客厅的一个部分。客厅因此特别大,可以去现场体验下!

江映云邸
售楼处电话:400-018-7969接通后输入444
欢迎来电咨询〢专业一对一热情服务
温馨提示:网上售楼中心〢预约销售经理为您安心购好房
建面约135方市面上横厅进深一般在5米以内,江映云邸做到了约5.7米。一般横厅进深小于5米,家具摆放会出问题。
主卧阳台封闭完全室内化,因此主卧可以升级为套房,面积达到约26㎡,可以在现有梳妆台+衣帽间+卫生间之外,南面再增加一个开放式书房。

建面约149设计了一个方厅,同时约5.25米开间的大客厅,一般只有在170㎡以上户型才会出现。
除了有大圆桌,边上还可以从容的设置“双餐边柜+餐厅背景墙”,主卧面积约27平方米,卫生间超级豪华,设置双台盆等。
几个户型看下来,设计方面可以说可圈可点。
开发商团队除了产品至上外,还有雄心抱负,还因为他们获取了能匹配这份抱负的一块好地。
江映云邸的位置,在区域内独树一帜,根本在于几乎所有的高能级配套,都在家门口不远处。

江映云邸
售楼处电话:400-018-7969接通后输入444
欢迎来电咨询〢专业一对一热情服务
温馨提示:网上售楼中心〢预约销售经理为您安心购好房
江映云邸区位示意图
一是地铁。
江映云邸坐拥的是双地铁,距离4号线杨家墩站和6号线西浦路站,直线距离都约550m,步行约10分钟。前者横穿滨江腹地可达区政府、奥体;后者直达钱江新城和杭州东站。
二是教育资源。
辐射范围内,就是滨江区排名前三的滨文小学,以及排名第四的钱江湾小学,家门口规划在建的新蒲河幼儿园和小学,也由滨文教育集团筹建。
三是商业。
距离映创城的盒马鲜生约550m;距离即将开业的开元广场TOD约600m。3km里外还有宝龙城市广场。
江映云邸与周边配套距离示意图
约1km直距国际滨珍贵钱塘江景,在这可观赏最美樱花大道。
江映云邸所在的物联网产业小镇,短短1791米的物联网街上分布着13家上市公司,总市值超9000亿。
滨江更是集聚了国家级孵化器2家、省级6家、市级5家,国家高新技术企业184家,包括龙头企业阿里巴巴、网易、新华三、华为杭研所、北航杭研院;行业冠军:连连支付、创业慧康、长川科技等;同时作为中国直播电商第一区,滨江区云集了谦寻、交个朋友、辛选、宸帆、君盟文化、泰洋川禾、快手等头部直播电商。
说在最后
江映云邸的雄心,是做区域二手房价天花板。
如大运河府之于桥西,这是一种开发商勇于“自虐”的极致匠心,定会继续复制成功。
江映云邸
售楼处电话:400-018-7969接通后输入444
欢迎来电咨询〢专业一对一热情服务
温馨提示:网上售楼中心〢预约销售经理为您安心购好房〢如有侵权请联系删除〢
声明:本文由入驻焦点开放平台的作者撰写,除焦点官方账号外,观点仅代表作者本人,不代表焦点立场。


