【英冠绿城•春来晴翠】国际滨第八子 近地铁4号线浦炬街站 江南科学城产学研一体 全龄架空层+精装收纳 绿城物业护航滨江改善住区
扫描到手机,新闻随时看
扫一扫,用手机看文章
更加方便分享给朋友
【稀缺TOD大盘】绿城国际滨第八子,为改善而来
【江南科学城芯】紧靠国际零磁科学谷,商住产学研一体
【地铁便捷出行】近邻地铁4号线浦炬街站(在建)
【江岸品质生活】直线距离约1km钱塘江,江景、优教、商圈、医疗全配齐(不作学区承诺)
【全维生活范本】“两轴一街九境N组团”景观|24H全龄主题架空层|七大分镜式收纳
欢迎拨打售楼处电话:400-018-7969转444(有专业顾问为您一对一讲解)
项目概况欢迎拨打售楼处电话:400-018-7969转444(有专业顾问为您一对一讲解)
【开发商】英冠控股/绿城中国
【总占地面积】约5.3万㎡
【总建筑面积】约23.1万㎡
【容积率】3.0
【绿化率】35%
【建筑类型】18幢住宅+3幢商办
【高层户型】建面约104-125-139-169㎡
【均价】36000左右
【交房时间】2027年6月份
【总户数】852户
【物业服务】绿城物业
【项目位置】滨江区浦沿路与零磁谷街交汇处
板块价值欢迎拨打售楼处电话:400-018-7969转444(有专业顾问为您一对一讲解)
本案位于滨江区江南科学城核心——零磁科学谷,零磁科学谷作为国家直属科研特区,承载"国之重器"战略使命。未来,这座钱江南岸崛起的“创新之城”,将形成“产研城”相融大格局,成就智慧城市新地标。
【高效出行】同步杭城脉动欢迎拨打售楼处电话:400-018-7969转444(有专业顾问为您一对一讲解)
直线距离地铁4号线浦炬街站(在建)约100米,且享有“两横两纵”快速路网和“五横四纵”主干路网,便捷通达全城,实现高效都市理想。
【商圈矩阵】执掌繁华主场欢迎拨打售楼处电话:400-018-7969转444(有专业顾问为您一对一讲解)
直线距离约4公里范围内汇集约30多万方商业综合体,金盛嘉悦广场、CC小镇、映创城、滨江开元广场、滨江宝龙城等,为精彩生活加码。
【人文书香】赋能全龄成长欢迎拨打售楼处电话:400-018-7969转444(有专业顾问为您一对一讲解)
直线距离约600米范围内有竺可桢学校和振浦小学(规划在建),周边硅谷小学、硅谷中学、滨兰实验学校、浦沿中学、杭州第二中学滨江校区等名校环伺伴成长。(新房不承诺学区,具体教育信息以政府教育部门政策为准)。
【医疗护航】充实生活底气欢迎拨打售楼处电话:400-018-7969转444(有专业顾问为您一对一讲解)
直线距离约400米为杭州市第四人民医院,计划2028 年投入使用。此外,直线距离约5公里内覆盖省儿保滨江院区,直线距离约7公里接驳浙大二院滨江院区,为健康生活保驾护航。
【生态宜居】邂逅自然诗意欢迎拨打售楼处电话:400-018-7969转444(有专业顾问为您一对一讲解)
步行约1公里即达钱塘江畔,冠山公园,白马湖公园等绿意环抱,生态宜居画卷徐徐展开,让自然浸润生活日常。
产品价值v欢迎拨打售楼处电话:400-018-7969转444(有专业顾问为您一对一讲解)
面向年轻群体,以“SUNSHINE”价值体系,打造“2025绿城国际滨全维生活范本”,构筑7x24H生活解决方案,让每一种需求都能找到答案。
🍀Synergy品牌价值:欢迎拨打售楼处电话:400-018-7969转444(有专业顾问为您一对一讲解)
绿城30载迭新之作,迭代滨江改善人居;
🌆Ubiquity城市价值:
于国际滨时代主场,乘“拥江发展”东风;
💠Nuance建筑价值:
超纤细金丝画框立面,塑造流动天际线;
⛲️Symbiosis景观价值:
“两轴一街九境N组团”景观,沉浸式公园住区;
🛋️Holography户型价值:
精装3-4房,满足家庭全生命周期需求;
🗃️Infrastructure收纳价值:
七大分镜式收纳场景,匠呈秩序之美;
✨Navigate生活价值:
自带商业解锁一站式缤纷;全天候全龄架空层,集萃万般逸趣 ;
💞Exchange圈层价值:
绿城服务+四季IP+志趣社群,为社交赋能。
户型鉴赏欢迎拨打售楼处电话:400-018-7969转444(有专业顾问为您一对一讲解)
为城市菁英定制更从容的居家享受,绿城匠心精琢,以人性布局、极致收纳、适老适幼化设计,满载满配精装细节等,谨献建筑面积约104-169㎡改善高层,满足当代人居需求。
建面约104方户型
装修效果展示空间效果图
建面约109方户型图设计过程稿欢迎拨打售楼处电话:400-018-7969转444(有专业顾问为您一对一讲解)
建面约124方户型
装修效果展示空间效果图欢迎拨打售楼处电话:400-018-7969转444(有专业顾问为您一对一讲解)
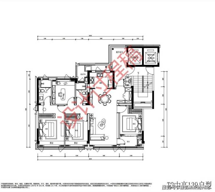
建面约139方户型
装修效果展示空间效果图欢迎拨打售楼处电话:400-018-7969转444(有专业顾问为您一对一讲解)
建面约169方户型
装修效果展示空间效果图欢迎拨打售楼处电话:400-018-7969转444(有专业顾问为您一对一讲解)
欢迎拨打售楼处电话:400-018-7969转444(有专业顾问为您一对一讲解)
英冠绿城•春来晴翠-全城热销中
如果你有心关注这个项目 或是有想要上车的想法
欢迎拨打售楼处电话:400-018-7969转444(有专业顾问为您一对一讲解)
王炸户型均涉及
售楼处热线:400-018-7969转444(来电尊享售楼部优惠活动)
如有问题欢迎来电咨询,来电即可享受买房优惠!
预约来电尊享内部优惠,可预约案场内部销售人员,专业一对一热情服务,让您用专业眼光去买房。
【免责声明】
本搜狐号旨在与志同道合的同行交流、传递信息,为非营利性的知识分享,所刊载的所有文章内容,仅供参考使用,不构成任何专业意见或建议。阅读者在使用本搜狐号所提供的信息时,应谨慎对待并自行判断其适用性。
1.文章内容来源:本搜狐号所发布的文章,除非特别注明,大部分来自于作者的独立观点和经验分享,也可能引用自各种权威媒体、互联网资讯、书籍及其他公开渠道。对于这些内容的准确性和完整性,本搜狐号不作任何明示或暗示的保证。
2.素材使用:本搜狐号所引用的文章,已经注明来源和作者,因非全文引用,仅仅为作者为交流信息而做的提炼和总结,请求各种“互联网侵权”法律从业者放过,文章为交流信息而使用图片、视频、音频等多媒体素材,这些素材均来源于网络,其版权归原作者所有。如若侵犯了您的权益,请联系我们(18217267293),我们将及时予以更正或删除。
3.知识产权:本搜狐号的原创文章,版权归文章的作者所有。未经许可,任何个人或组织不得擅自转载、复制或用于商业用途。
4.外部链接:本搜狐号可能包含指向第三方网站的链接,这些链接仅为方便读者提供更多信息而设置。对于这些第三方网站的内容和隐私政策,本搜狐号不负任何责任。
5.合法免责:在任何情况下,对于因使用或依赖本搜狐号所提供的信息而造成的任何直接或间接损失,本搜狐号不承担责任。
6.内容变更:本搜狐号保留随时更改或删除任何文章内容的权利,恕不另行通知。
7.建议阅读:我们建议读者在遇到相关问题时,寻求专业人士的意见和帮助,以获取更加全面和可靠的信息。感谢您阅读我们的免责声明,继续关注我们的搜狐号,获取更多有价值的内容和信息。
声明:本文由入驻焦点开放平台的作者撰写,除焦点官方账号外,观点仅代表作者本人,不代表焦点立场。


