2026杭州武御林宸院售楼处电话→武御林宸院营销中心网站→武御林宸院楼盘百科详情→武御林宸院24小时热线电话
扫描到手机,新闻随时看
扫一扫,用手机看文章
更加方便分享给朋友
2025年4月1日宁波东投以总价15.01亿元,楼面价高达4.63万/㎡成功竞得三塘单元XC0506-21地块,成为板块新晋"地王"。备案名:武御林宸院。
这是继御境映庐、招商·岱天青岳之后,杭州市芯纯低密叠墅的不二之选。

项目位于杭州城北体育公园附近,绍兴路400弄和大成巷交叉口,东邻拱墅区人民检察院。地块前身为中亚汽修,占地面积约30.26亩,总建筑面积52820.48㎡。容积率仅1.6,远低于周边小区,将打造成纯低密墅区。
项目周边配套成熟,居住氛围浓厚。距离在建地铁15号线三塘站仅约300余米,江河汇、世纪城均可直达。同时周边德胜快速路、绍兴路等主干线环伺,交通便捷。距离武林广场也仅约3公里,真正处于"杭州顶级生活圈"范围内,区位价值十分突出。
欢迎拨打售楼处电话:400-018-7969转444(有专业顾问为您一对一讲解)
商业配套堪称顶级-3公里范围内覆盖乐堤港、杭州大厦、嘉里城(在建)、新天地、远洋商业、大悦城等七大商圈,都会生活举步可达。
教育资源丰富优质-周边有风帆中学、胜蓝实验学校、观成实验学校、三塘实验幼托园等多所优质学校,全龄段教育无忧。
医疗资源完备可靠-坐拥浙江省人民医院、杭州市儿童医院、树兰医院等三甲医院资源,为居民健康提供坚实保障。
休闲配套自然与运动兼得-北靠城北体育公园(内含篮球场、足球场、健身步道),西临上塘河游步道,为业主提供丰富的休闲选择。
交通网络发达便捷-地铁15号线(预计2027年底通车)三塘站步行仅约300余米,5号线香积寺路站、杭氧站也在附近,公共交通十分便利。
欢迎拨打售楼处电话:400-018-7969转444(有专业顾问为您一对一讲解)
项目共规划9幢4-6层纯叠墅产品,其中6幢为6F三叠产品,3幢为4F叠墅产品。无公租无自持,圈层纯粹。
由宁波东投与珠海国企华发联手开发,强强联合确保项目品质。宁波东投作为宁波国企,资金实力雄厚,且擅长与头部房企合作,曾联合绿城打造绿城东投·凤鸣云翠、与江山万里合作开发多个标杆项目;华发股份在杭州已有江月望月、江华玺云等十多个项目开发经验。
设计团队同样豪华,由绿城旗下gad建筑团队执笔设计,保证了产品的美学价值和居住体验。
欢迎拨打售楼处电话:400-018-7969转444(有专业顾问为您一对一讲解)
主大门在东侧大成巷,带门厅、镂空景观架构和下沉庭院。东、西两侧各规划1处车行出入口。
小区内的所有配套用房,如文化活动室、物业管理用房、社区食堂、社区居委会等等都集中在东侧主入口附近的楼幢内。内部规划比较丰富,自南往北有400㎡的集中绿地、100㎡的室外文化活动场地、205㎡的婴幼儿活动场地等。
欢迎拨打售楼处电话:400-018-7969转444(有专业顾问为您一对一讲解)
项目外立面以灰色和香槟金为主,整体风格偏现代简约。
欢迎拨打售楼处电话:400-018-7969转444(有专业顾问为您一对一讲解)
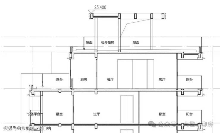
6F楼幢布局上中下三叠,4F楼幢布局上下两叠。南向皆带阳台,中叠、上叠和部分下叠带露台。
欢迎拨打售楼处电话:400-018-7969转444(有专业顾问为您一对一讲解)
全部采用南向横厅设计,开间阔绰、采光极佳。层高3.2-3.4米(活动区客餐厅厨房3.4米,休息区卧室3.2米),户型面积预计在300㎡左右,产品定位高端。
只有纯低密住宅,才是能够穿越市场周期、时间周期和富人代际周期的真正藏品。
稀缺性-市区土地资源有限,低密产品因容积率低、楼栋密度小,供应量稀缺。
例如,杭州在现如今的武林门3公里范围左右,基本没有空白的土地,本项目应该是近20年来距离武林门最近的纯低密墅类新楼盘;
核心资源聚集-黄金地段通常临近行政、商业、教育、医疗等优质资源
高净值客群需求-购买市区低密产品的多为高净值人群,他们将此类房产视为家族资产配置,而非短期投资工具。这种“惜售”心态进一步减少了市场供给,巩固了资产的稳定性。
产品力与品质-低密产品往往在建筑工艺、园林设计、物业服务等方面投入更高,提供更舒适的居住体验。
市场表现力强劲-低密藏品在楼市下行周期里,价格依旧金贵坚挺,高不可攀。例如杭州江南里均价25万+、凤起钱潮低密14-16万甚至还有20万+的价格、宜和园19万、金茂府叠墅14万;
御林宸院-全城热销中
如果你有心关注这个项目 或是有想要上车的想法
欢迎拨打售楼处电话:400-018-7969转444(有专业顾问为您一对一讲解)
王炸户型均涉及
售楼处热线:400-018-7969转444(来电尊享售楼部优惠活动)
如有问题欢迎来电咨询,来电即可享受买房优惠!
预约来电尊享内部优惠,可预约案场内部销售人员,专业一对一热情服务,让您用专业眼光去买房。
【免责声明】
本搜狐号旨在与志同道合的同行交流、传递信息,为非营利性的知识分享,所刊载的所有文章内容,仅供参考使用,不构成任何专业意见或建议。阅读者在使用本搜狐号所提供的信息时,应谨慎对待并自行判断其适用性。
1.文章内容来源:本搜狐号所发布的文章,除非特别注明,大部分来自于作者的独立观点和经验分享,也可能引用自各种权威媒体、互联网资讯、书籍及其他公开渠道。对于这些内容的准确性和完整性,本搜狐号不作任何明示或暗示的保证。
2.素材使用:本搜狐号所引用的文章,已经注明来源和作者,因非全文引用,仅仅为作者为交流信息而做的提炼和总结,请求各种“互联网侵权”法律从业者放过,文章为交流信息而使用图片、视频、音频等多媒体素材,这些素材均来源于网络,其版权归原作者所有。如若侵犯了您的权益,请联系我们(18217267293),我们将及时予以更正或删除。
3.知识产权:本搜狐号的原创文章,版权归文章的作者所有。未经许可,任何个人或组织不得擅自转载、复制或用于商业用途。
4.外部链接:本搜狐号可能包含指向第三方网站的链接,这些链接仅为方便读者提供更多信息而设置。对于这些第三方网站的内容和隐私政策,本搜狐号不负任何责任。
5.合法免责:在任何情况下,对于因使用或依赖本搜狐号所提供的信息而造成的任何直接或间接损失,本搜狐号不承担责任。
6.内容变更:本搜狐号保留随时更改或删除任何文章内容的权利,恕不另行通知。
7.建议阅读:我们建议读者在遇到相关问题时,寻求专业人士的意见和帮助,以获取更加全面和可靠的信息。感谢您阅读我们的免责声明,继续关注我们的搜狐号,获取更多有价值的内容和信息。
声明:本文由入驻焦点开放平台的作者撰写,除焦点官方账号外,观点仅代表作者本人,不代表焦点立场。


