除了所剩不多的“春山隐树院”现代排屋,很快,全新的“台墅”也要开盘了,主力建面约155-185方,因为毛坯交付,最低总价397万起。以建面约160㎡的下叠为例,一楼的客餐厅就有32㎡,二楼则是7.8米的跑道式…
大华春山明月
售楼处电话400-080-0105转000【售楼中心】
咨询高峰期请耐心等待,预约来电尊享内部优惠,专业一对一热情服务,让您用专业眼光去买房。
NO.1|壹
临近年底交付季,又到了各家实景图刷屏的时刻了。
就在前两天,位于城西科创大走廊的大华春山明月中式合院交付, 毫无意外,又是以“百分之百”的交付率引爆杭城。
是的,大华春山明月这个占地1200亩的大盘,已经成了 城西低密的“明星IP”。
它的走红,基本可以归纳为两个方面:
第一,是它在产品上的追求。每开发一个新组团,都会给市场带来一些新惊喜。
2017年的中式院子,以 “有多大的房子,就有多大的院子”率先出圈。
2020年五层纯洋房“ 春山椿树”,“大玻璃盒子”和超长L型转角飘窗刷屏了杭州人的朋友圈。
2021年的 “春山隐墅院”现代排屋,19米的“跑道式露台”,颠覆了我们对空间的认知。

△大华春山明月台墅实景图
最新上线的“台墅”更是以 270度超大屏的景观视野,照亮了院墅生活新方式。
第二,是它对品质的保证。这个深耕杭州二十余年的本土房企,从西溪湿地旁的西溪风情到春山明月依次交付的各个组团, 现场实景都做到了“美过效果图”。


△大华春山明月中式合院交付实景图
刚刚交付的中式合院, 虽然是毛坯,但依然足够惊艳。
依山就势,长在自然坡地上的中式合院,0.35的容积率、搭配讲究的古法工艺,粉墙黛瓦之下,尽显水乡江南的诗意。
这让不少陪着收房的朋友当场直呼:后悔当初没下手。


△大华春山明月中式合院交付仪式感满满
NO.2|贰
好在,你仍有在大华春山明月收藏一套“好房子”的机会。
除了所剩不多的“春山隐树院”现代排屋,很快,全新的“台墅”也要开盘了,主力建面约155-185方, 因为毛坯交付,最低总价397万起。
为什么在精装成为趋势的当下,选择毛坯交付呢?
你也可以理解为 “毛坯销售+定制精装”的高端方式。既可以控制总价,又能给风格各异的城市精英们更多个性化的空间 。
△大华春山明月台墅实景图
虽然“台墅”总价控制在了397万起,但这一点也不影响它的产品定位。
外立面采用的是大面积的玻璃栏板+落地窗,并用金属线条勾勒。超高的窗墙比,带来超大屏的采光面的同时,让建筑通透而轻盈。
大华春山明月
售楼处电话400-080-0105转000【售楼中心】
咨询高峰期请耐心等待,预约来电尊享内部优惠,专业一对一热情服务,让您用专业眼光去买房。
这还是全杭州都罕见的上下叠,是真正的纯叠墅。
下叠拥有地上两层空间,自带院子和5.6米挑空的地下室;上叠则带有星空露台,拥有绝佳的景观视野。

△大华春山明月台墅实景图
值得一提的是,台墅组团的容积率低至0.86。
我们数了数,整盘容积率在1.1以下,且规划纯叠墅低密的项目, 整个城西科创大走廊近几年“出圈”的也就两盘。
一个是已经收官的绿城交投晓月澄庐,套均千万级别;另一个就是大华春山明月的台墅, 一套总价仅397万起,基本上是未来科技城普通高层价。
大华春山明月
售楼处电话400-080-0105转000【售楼中心】
咨询高峰期请耐心等待,预约来电尊享内部优惠,专业一对一热情服务,让您用专业眼光去买房。
NO.3|叁
总价相当,但相比于高层来说,叠墅所能带来的生活感是无可比拟的。
作为叠墅的新物种,春山明月台墅有着无可比拟的大尺度可拓展空间。
建面约160㎡的下叠,加上5.6米挑空的地下室,60-300方不等的庭院, 实际可用超320㎡。建面155㎡的上叠,实际使用可达220㎡。
高得房率之下, 是空间尺度在规划上有巨大的优势。


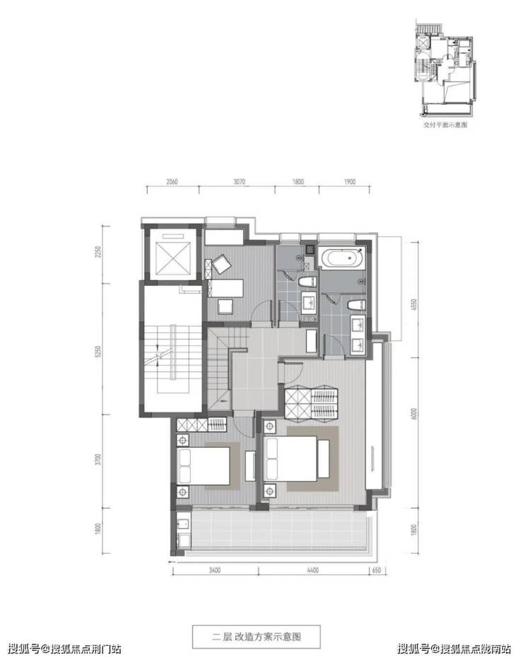
△大华春山明月台墅下叠约160㎡户型图
以建面约160㎡的下叠为例,一楼的客餐厅就有32㎡,二楼则是7.8米的跑道式阳台+近6米长飘窗。
因为是边套户型,客厅除了有270度极致景观面之外,外接L型庭院最大面积也可达300㎡。
另一款建面约169㎡的下叠更夸张,整体面宽达近10米。


△大华春山明月台墅上叠约155㎡户型图
建面约155㎡的上叠,最令人印象深刻的是通透感。
一体化的客餐厅外是7.8米长阳台,进深足足也有1.8米。楼上主卧外的阳台,进深则是夸张到3.5米,这个尺度在刚需盘中可以搭出一个书房来了。
北面还带有 两个小阳台,放一套洗烘组合,种几盆喜阴的绿植,生活情调满满。

△大华春山明月台墅上叠实景图
走上三层,更觉舒朗开阔。 除了一个“玻璃盒子”般的外书房,就是大尺度的星光露台。
一个上叠,加起来至少有4个阳台+1个超大的露台,足够装得下你的现实与理想了。
大华春山明月
售楼处电话400-080-0105转000【售楼中心】
咨询高峰期请耐心等待,预约来电尊享内部优惠,专业一对一热情服务,让您用专业眼光去买房。
NO.4|肆
更重要的是,相比于大部分低密只能作为周末休闲之处,大华春山明月的这批台墅房源完全可以作为“第一居所”。
它满足了低密做“第一居所”的两个条件: 交通便利+配套齐全。
△大华春山明月台墅交通区位图
现在,从未来科技城一带前往大华春山明月台墅,可以走 科技大道,只需几首歌的时间畅通直达;也可以搭乘 地铁16号线,也仅6站路的距离。
等到后期,文一西路西延工程完工, 这条路将成为青山湖科技城、南湖科研中心、未科核心区以及城西的交通主轴。

△大华春山明月台墅效果图
作为一个占地1200亩的超级大盘,这里的生活配套已然成熟。
自带约8400㎡的业主会所“春山里”,目前已经交付使用。内含有咖啡馆、室内恒温泳池、业主食堂、儿童乐园等配套,满足你大部分的生活需求。
“台墅”又配建了约2600㎡的商业配套 “山丘BOX”。不仅规划了便利店、干洗店、果蔬店等,还已意向签约了麦当劳汽车餐厅。
更何况,项目所在的青山湖科技城还将迎来红利的集中爆发期。
作为城西科创大走廊的一份子,这里是全省全市的重点发展区域, 单单“十四五”期间就计划投资1036亿元。
总价约780万,比购入时候翻了数倍。
大华春山明月
售楼处电话400-080-0105转000【售楼中心】
咨询高峰期请耐心等待,预约来电尊享内部优惠,专业一对一热情服务,让您用专业眼光去买房。