湖翠云来府 2024最新网站-湖翠云来府 楼盘详情-杭州临平 湖翠云来府 营销中心
扫描到手机,新闻随时看
扫一扫,用手机看文章
更加方便分享给朋友
湖翠云来府 售楼处热线:400-018-7969 转 222(来电尊享售楼部优惠活动)
如有问题欢迎来电咨询,来电即可享受买房优惠!
预约来电尊享内部优惠,可预约案场内部销售人员,专业一对一热情服务,让您用专业眼光去买房。
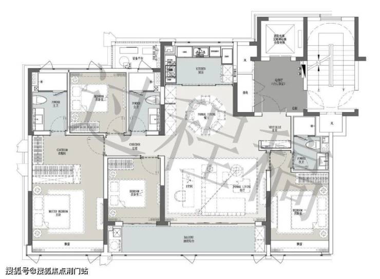
168-199方户型图发布

售楼处热线:400-018-7969 转 222(来电尊享售楼部优惠活动)
总价五六百万级
西方中天湖翠云来府主力户型共两款,分别是建面约168方4房、199方4房,由于精装限均价2.978万/平,意味着主力总价段约500-600万。
一、建面约168方四房两厅三卫:
简单点评:目测是两梯两户的高端款。双开门,奢宅配置,且入户有独立玄关,更加方便;南向双套房,公卫的位置安排的也很好,其余两房间以及客餐厅抵达使用都很方便。总体而言这款户型颇为优质。
售楼处热线:400-018-7969 转 222(来电尊享售楼部优惠活动)
二、建面约199方四房两厅三卫:
简单点评:南向双套房设计,整体做到了完全的动静分区,但入户是在“静区”,需穿过长走道才可到达客餐厅。
拿地回顾&规划介绍
西房&中天拼社保抢下
2月21日,众多开发商溢价率报至封顶+摇号,最终由中腾(即西房&中天)以125909万总价,溢价率11.5%,成交楼面价17284.7元/平,拿下临平新城7号地块。
△上图中左边即西房中天湖翠云来府,右边是中交拿下的低密宅地,位置就在艺尚小镇对面。

售楼处热线:400-018-7969 转 222(来电尊享售楼部优惠活动)
西房&中天湖翠云来府项目位于临平区乔司街道,临平新城核心区控规单元内,东至汀雨路,南至星河南路绿化带,北至永乐街,西至良熟路,规划用地面积约40469平方米。
对比良熟此前的新房,湖翠云来府置紧邻艺尚小镇和临平大剧院,有一定的优势。
总用地面积40469㎡,总建筑面积102344.2㎡,其中地上建筑面积72844.2㎡,地下建筑面积29500㎡。容积率1.80,建筑密度20%,绿地率40%,地面机动车车位12辆,地下697辆。

根据规定:
1、项目住宅方案设计应以大户型为主,最小户型不得小于140㎡,160㎡以下户型不得大于总套数的15%,190㎡以上的户型不得少于总套数的40%。
2、本宗地块所建商品住房毛坯销售均价不高于26780元/平方米,且毛坯销售最高单价不高于29460元/平方米。如实施装修销售的,装修价格不高于3000元/平方米。即精装限均价29780元/平!
规划情况
共计382套住宅
3月3日,距离拿地仅过去10天,西房中天湖翠云来府就亮出了规划。
项目共规划了13幢15-16F高层,其中南面一排为15F,其余为16F。
外立面效果图:
售楼处热线:400-018-7969 转 222(来电尊享售楼部优惠活动)
小区主出入口位于西侧的良熟路、东侧的汀雨路上。园林内部有部分水系景观,以及公共文化活动场地、室外体育活动场地等,大多楼幢底层全架空,部分用作物业办公等。


售楼处热线:400-018-7969 转 222(来电尊享售楼部优惠活动)
划重点:

1、容积率1.8
2、共计382户
看到这样的户型面积段小胖君深感欣喜,因为临平新城目前的供应鼎湖未来云城主力是小户型,已经几乎消耗了片区所有的刚需供应,而大户型190方却很少,每次也是非常难抢,可见临平新城改善购买力正无处安放。
西房中天艺尚小镇项目显然是对临平区的购买力有过调研,所以规划了改善大户型为主,有望解渴临平新城改善。
周边配套情况
就在艺尚小镇一路之隔
(中腾临平新城项目即西房中天湖翠云来府)
西房中天·湖翠云来府
售楼处热线:400-018-7969 转 222(来电尊享售楼部优惠活动)
交通:临平高铁站、地铁9号线&杭海城际铁路直线约800米(步行约1公里),自驾方面有望梅高架路、望梅路、迎宾路等;
学校:天长世纪小学直线约400米、信达外国语学校直线约1公里、临平区第一中学(南苑)直线约800米等;
商业:华元欢乐城、余之城直线约1.4公里,理想银泰城直线约2.2公里等;
产业:艺尚小镇一路之隔等;
医疗:临平区第一人民医院直线约2公里等;
其他:临平大剧院、东湖公园一路之隔,迎宾公园直线约1.3公里等;
总的来说,中腾临平新城项目(即西房中天湖翠云来府)的位置还是不错的,高楼层可以直接眺望临平大剧院、东湖公园。
再加上项目清一色打造大户型,社区圈层偏高端,足以解渴临平区改善客户!
会所效果图过程稿
售楼处热线:400-018-7969 转 222(来电尊享售楼部优惠活动)
售楼处热线:400-018-7969 转 222(来电尊享售楼部优惠活动)
售楼处热线:400-018-7969 转 222(来电尊享售楼部优惠活动)
声明:本文由入驻焦点开放平台的作者撰写,除焦点官方账号外,观点仅代表作者本人,不代表焦点立场。


