临平春棠雅韵府售楼处-临平春棠雅韵府首页网站-2025临平春棠雅韵府楼盘测评-临平春棠雅韵府售楼处欢迎您_临平春棠雅韵府最新房价/户型
扫描到手机,新闻随时看
扫一扫,用手机看文章
更加方便分享给朋友
春棠雅韵府
售楼处电话:400-018-7969 转 222
欢迎来电咨询〢专业一对一热情服务
温馨提示:网上售楼中心〢预约销售经理为您安心购好房
春棠雅韵府
售楼处电话:400-018-7969 转 222
欢迎来电咨询〢专业一对一热情服务
NO. 1|壹
“8.99堡都要卖到6万多了!”
这就是暴热的“大钱二板块”,钱二东新房总价飙过千万,已让太多改善家庭买不下手,可眼看还在一路上涨,分分钟比肩钱二西。
但仔细翻查一下,钱二从西到东,再到艮北、九堡和乔司,“大钱二”这两年交付的高层进入二手市场后,房东亏利息甚至本金居然屡见不鲜。
能“套套都赚到”的只有两处,一是钱塘云庄的合院,二是云悦湾的排屋,二手单价均飙过10万,卖家一把大赚千万。
不得不说,“稀缺”才是永远的必杀技——此处的“稀缺”,仅限于排屋、合院一类的传统低密。
春棠雅韵府
售楼处电话:400-018-7969 转 222
欢迎来电咨询〢专业一对一热情服务
春棠雅韵府示范区下沉庭院实景
当然,大城东的改善家庭并不是再无机会,由钱二东上钱塘快速路,转入东湖高架,一脚油门,就到容积率1.2的低密新盘:英冠·春棠雅韵府。
刚刚经历“首开瞬磬”的它,一口气带来了两个神级产品:
一是三层排屋,整个大城东找不到竞品,有最赚钱的两个低密产品珠玉在前,再续神话绝不是空谈;
二是建面约166、182㎡的洋房,也正好填补上板块空白——想想看,总价四五百万,还能在大钱二买一套七层洋房大户型,价格是“8.99堡”高层的一半,改善家庭还慌什么呢!
NO. 2|贰
2025年是公认的“钱二第一个集中兑现年”,众多城市资源开放和落位,崭新的城市中心初绽风华。
回顾它一路向东的崛起路径,辉煌而清晰。
站在江河汇“巨人的肩膀”之上,它首先向钱二西进发,一线开发商悉数到场,动辄一两千人拼社保,千万级豪宅板块的地位迅速确立。
一步跃进到钱二东之后,热度丝毫不减,接连上演拼社保大战,地价也是节节攀升。
春棠雅韵府
售楼处电话:400-018-7969 转 222
欢迎来电咨询〢专业一对一热情服务
从江河汇向东,一路沿江拓展的钱江新城二期
(图源:杭州钱江新城)
如今,在钱二的高能辐射下,“风暴中心”继续东移,恰与全速建设中的城东新中心“临平数智城”接壤,交织出一片产业、商业、交通面貌一新的城市蓝图。
近3年内,临平数智城的开发重点,是9号线翁梅站周边的核心启动区,面积约4平方公里。
而翁梅站,正是离春棠雅韵府最近的地铁站,一线直达江河汇。从春棠雅韵府到钱二,直线也仅约6公里。
(图源:临平发布)
杭州目前的高低配项目,最常见的搭配是“高层+叠排”,叠排拉高调性,高层产品“刚需”一点无伤大雅,只为快速跑量。
容积率1.2的春棠雅韵府,却是“七层洋房+三层排屋”的纯低密CP,以低容积率营造居住氛围,以面积段框定价值定位。
全盘共21幢排屋,“含排量”超高,户型建面约310㎡、240㎡;9幢洋房,户型建面约166㎡、182㎡——与钱二东拼社保的超级红盘相比,整体户型更大,改善气质更纯粹。
已经开放的实景示范区,第一眼就让人折服——
春棠雅韵府示范区门头&下沉庭院实景
约70米长的门头大气开阖,迈过两进门庭,将喧嚣甩在身后,迎面便是约4000㎡的双层会所+下沉庭院,这般体量,即使与全杭州的顶豪同场较量,也是TOP级!
春棠雅韵府
售楼处电话:400-018-7969 转 222
欢迎来电咨询〢专业一对一热情服务
室内标准恒温泳池、私宴厅、健身房、童梦乐园、棋牌室、书吧,铺开一条生活艺术的长廊。
与会所相接的,是叠山理水的宋韵园林,罗汉松与飞瀑就在触手可及的咫尺,恍若世外桃源。住在这里的每一天,都可以沉醉在一盏清茶,一池碧水之中。
还不止是示范区颜值高,即使以最挑剔的“改善”眼光来审视,春棠雅韵府的会所配置、外立面材质、室内层高和装标等级,都全面达标甚至超标!
NO. 3|叁
3月底首开时,春棠雅韵府拿出了两幢洋房,全部为建面约166㎡户型,当日即罄。
低总价、流动性好,都是显性优点。更深层的热卖原因是,一个楼盘的整体定位,通常针对大户型来做,各项软硬件配置,均以高端客群的需求为标准。
所以,春棠雅韵府的一切指标和配置,都是比照300㎡+的排屋标准来的!
春棠雅韵府
售楼处电话:400-018-7969 转 222
欢迎来电咨询〢专业一对一热情服务
春棠雅韵府示范区实景
洋房建筑的外立面是四面铝板+石材干挂,建筑高度约24米,楼间距约28-33米!首开时就有客户惊叹:这样的一楼,真比叠排还舒服!
室内尺度也是标准豪宅骨相:首层层高约3.5米,赶超普通叠排的3.3-3.4米;标准层层高约3.15米,也能直接对标千万级豪宅了。
得房率更是优秀,不算赠送得房率约85.6%,算上赠送则高达约95%,一套166㎡的房子,拥有普通高层200㎡的空间享受。
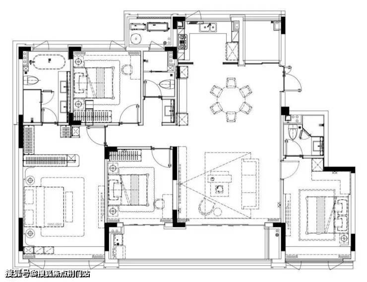
两款主力户型都是大四房,建面约166㎡的户型南向阳台面宽约9.2米,进深约1.8米,面积约16.6㎡!最小房间面宽也有约3.3米,放得下双人床和深度60公分衣柜。
春棠雅韵府建面约182㎡户型装修示意图
二开亮相的建面约182㎡户型,则是类一梯一户设计,出了电梯,就可以独享一片私密空间,入户后,北向还有一个小阳台,实用度满分。
全边套配置,再加上约16.6米的南向面宽,几乎每个空间都被自然光无限宠溺。
客厅+三卧朝南的结构最适合多人口家庭,男女主人、父母长辈、孩子都可以住朝南的房间,彻底实现“阳光平权”。
春棠雅韵府样板房实景
春棠雅韵府
售楼处电话:400-018-7969 转 222
欢迎来电咨询〢专业一对一热情服务
更值得夸的是装标,别说单价2万+,就是3万+、4万+的项目里也极少见到。
入户是子母门,备齐地暖、新风、东芝中央空调三大件;厨房是老板高端系列的油烟机、三眼灶和洗碗机,还配上了直饮水;客厅、主卧双背景墙,次卧也做了弧形吊顶。
考量高端改善盘,人们常常以星级酒店做参照,而英冠正是索菲特等高星级酒店的营造圣手,真材实料和气质拿捏都不含糊——
电梯轿厢以巴西进口的蓝丝绸奢石铺地;主卧地板是定制木饰面,撞脸世纪城顶奢大平层,室内木饰面也是高级感十足;就连阳台内壁也用上了铝板,八九万单价的顶豪才舍得这样用料啊!
NO. 4|肆
作为高端改善居所,房子够大,才包容得下生活所需,天地够私密,才满足得了隐于市的愿望。
杭州“低密大年”的说法持续已久,在售和待售的,绝大多数还是高低配中的叠墅,纯低密社区少之又少,出于严格限高,三层排屋更是凤毛麟角。
而春棠雅韵府的王牌,恰恰就是纯低密社区的三层排屋,打开了居住体验的另一重宇宙。
春棠雅韵府排屋效果图过程稿
满眼青绿的宋风园林之间,就是排屋平直流畅的歇山顶与三重檐。
外立面是辨识度极高的“金镶玉”设计,每一扇窗、每一道门都是一帧精致“框景”。单元入户的鎏金门楣,屋脊下悬着的“金线葫芦”与“春棠如意”,处处是东方美学的妙笔。
每套排屋地上三层,加上挑高约6米的地下室,可以规划出五层生活空间。地上三层的层高分别约4米、3.4米、3.4米,通透亮堂的大宅感赏心悦目。
所有卧室均朝南,也都设计为套房或准套房,每一层的南向,都是铺满阳光的自家院子、阳台或露台。
春棠雅韵府建面约310㎡排屋装修示意图
建面约310㎡的边套,首层南向横厅面宽就达到了约6.9米,厨房面宽约5.5米,可以阔绰地分出中西厨;
二层除了两个超30㎡的大套间,还另外辟出一间家庭厅,大人们在一楼宴客,也不妨碍孩子有独立空间尽情玩乐。
三层则完全留给主卧套,卧室区就超过了40㎡,外接L型大露台;衣帽间大得可以搁下展示柜,将珠宝和腕表一一陈列;阳光最好的南向小房间,做一间书房最是合宜。
春棠雅韵府建面约240㎡排屋装修示意图
建面约240㎡的中间套,同样是大四房格局,二三楼都有宽约8.9米的跑道式阳台,四季美景循环播放。
它还带来了绝对惊喜的价格,总价千万左右就能入手!不必担心未来流动性,城市排屋只会因稀缺而珍贵,永远不缺中上产买家。
NO. 5|伍
工作日上午10点不到,春棠雅韵府的示范区外,看房车辆已经停了好几层。
坐享拥江发展与城东新中心的双重红利,产业快速落位,城市万象更新,这就是春棠雅韵府的人气格外旺、客户来源也格外广的原因。
一条9号线直抵钱二与江河汇,一条东湖快速路串起留石、秋石、钱塘、空港等高架,与各大板块丝滑互通。
环伺四周的生活圈,有国芳、上城(在建)两座天街,遥望X27、宜家、理想银泰城等各类商业体,更有杭高临平校区、启明实验学校、文正小学等优质教育资源。
春棠雅韵府示范区实景
风口板块、纯低密社区、三层排屋、高配产品……重重稀缺属性叠加之下,放眼大杭州,也再难找到第二个项目。
我们也曾说过,2025是杭州富豪与刚需都更幸福的一年,目前的市场空白,就在于改善产品的突围——而这正是英冠全力以赴的方向。
无论是周边老小区、临平本地,还是整个大城东,亟待改善却又不想将就的家庭,都不该错过这位舒适度和性价比的双料王者。
地王频出,大宅飙涨的年代,又一次带你触达美好生活的,就是春棠雅韵府的上新。
春棠雅韵府
售楼处电话:400-018-7969 转 222
欢迎来电咨询〢专业一对一热情服务
温馨提示:网上售楼中心〢预约销售经理为您安心购好房
声明:本文由入驻焦点开放平台的作者撰写,除焦点官方账号外,观点仅代表作者本人,不代表焦点立场。


