英冠·春棠雅韵府(售楼处)首页网站-英冠·春棠雅韵府售楼中心欢迎您|楼盘评测-房价|户型|商圈配套
扫描到手机,新闻随时看
扫一扫,用手机看文章
更加方便分享给朋友
-- 雅韵东方 院归春棠 --
——英冠1号低密著作——
拨打售楼处电话: 400-018-7969 转 444(有专业顾问为您一对一讲解)
建面约 166/182㎡奢定洋房|建面约 240/310㎡藏品排屋
拨打售楼处电话: 400-018-7969 转 444(有专业顾问为您一对一讲解)
九大必买理由
【实力杭企】英冠深耕杭州24载,品质、交付双保障
【区域优势】城东新中心,一脉钱江新城2.0发展势能
【立体枢纽】地铁9号线翁梅站,5站钱二
【繁华商圈】遥望X27、宜家、上城天街(在建)、理想银泰城等
【教育高地】幼小初高全龄教育,书香浸润
【稀缺低密】约1.2容积率,主城稀缺低密住区
【高端圈层】洋房与排屋同享高端圈层
【宋韵美学】千年宋韵的当代表达,风雅造境
【奢雅会所】约2000㎡下沉式奢雅会所,享受当代宋韵生活
项目地址:杭州市临平区鑫业路与临乔路交叉口
ıllılııllı 英冠·春棠雅韵府 ıllılıllılı
-- 雅韵东方 院归春棠 --
——英冠1号低密著作——
拨打售楼处电话: 400-018-7969 转 444(有专业顾问为您一对一讲解)
拨打售楼处电话: 400-018-7969 转 444(有专业顾问为您一对一讲解)
【项目概况】
开发商:浙江英冠控股集团
用地面积:约4.7万㎡
总建筑面积:约11万㎡
容积率:约1.2
绿地率:约30%
产品类型:21幢藏品排屋;9幢奢定洋房
户型面积:约166/182㎡洋房;约240/310㎡排屋
产权年限:70年
【PART1.品牌】群英之冠 实力双保障
浙江英冠控股集团深耕杭州24载,始终追求杭派精工品质,凭借稳健的战略决策形成以地产开发、高星级酒店、工程建筑、物业服务、商业管理为核心的五大业务板块。
ıllılııllı 英冠·春棠雅韵府 ıllılıllılı
-- 雅韵东方 院归春棠 --
——英冠1号低密著作——
拨打售楼处电话: 400-018-7969 转 444(有专业顾问为您一对一讲解)
在地产开发中,英冠独立操盘重磅墅级豪宅作品滨悦城、钱江世纪城首个城市综合体水天城等10余个高端商业及住宅项目,并联袂一众知名房企打造英冠绿城奥体摩登新著晴澜轩、江岸豪宅封面作品滨月云府、复合型潮派大城澜映悦城等6个高端住宅项目,成绩斐然,以硬核实力成就美好人居。
拨打售楼处电话: 400-018-7969 转 444(有专业顾问为您一对一讲解)
【PART2.板块】城东新中心 同频钱江新城2.0发展
随着杭州高端居住版图向东扩张,乔司启动“南融主城”战略,一脉钱江新城2.0发展势能,高水平建设临平数智城,着力打造杭州城东新中心。未来,乔司将串联起丰富的产业和休闲娱乐业态,形成活力四射、宜居宜业的全域生活圈。
拨打售楼处电话: 400-018-7969 转 444(有专业顾问为您一对一讲解)
【PART3.配套】全维配套 资源聚集地
远见杭州新格局,于时代高处落笔,春棠雅韵府凝萃核芯资源,让生活与城市共融,敬献层峯人士。
立体枢纽 高效畅达全城
拨打售楼处电话: 400-018-7969 转 444(有专业顾问为您一对一讲解)
轨道交通:直线距离约800米地铁9号线翁梅站,5站钱二(红普南路),对接钱江新城、杭州东站、客运中心的快速互联。
快速路网:东湖快速路连留石、秋石、钱塘、空港等高架互通主城。
繁华商圈 演绎精彩生活
优质商业:遥望X27、宜家等地标商业,成为新型潮流打卡地;泽怀广场、华荣城,配有海底捞、星巴克、超市、电影院等;乔司老街一条街吃喝玩乐,主打快餐饮、聚餐等;翁梅农贸市场满足日常需求。
区域商业:国芳天街、理想银泰城、上城天街(在建)、余之城、华元欢乐城。
ıllılııllı 英冠·春棠雅韵府 ıllılıllılı
-- 雅韵东方 院归春棠 --
——英冠1号低密著作——
拨打售楼处电话: 400-018-7969 转 444(有专业顾问为您一对一讲解)
拨打售楼处电话: 400-018-7969 转 444(有专业顾问为您一对一讲解)
全龄教育 启赋卓越未来
拥享幼小初高15年全龄教育,其中杭高临平学校仅与项目一路之隔,乔司第一幼儿园、乔司小学、文正小学、启明实验学校(九年一贯制学校)等优教资源环绕在侧,为成长创造书香主场。
拨打售楼处电话: 400-018-7969 转 444(有专业顾问为您一对一讲解)
ıllılııllı 英冠·春棠雅韵府 ıllılıllılı
-- 雅韵东方 院归春棠 --
——英冠1号低密著作——
拨打售楼处电话: 400-018-7969 转 444(有专业顾问为您一对一讲解)
拨打售楼处电话: 400-018-7969 转 444(有专业顾问为您一对一讲解)
自然栖地 都会公园谧境
毗邻约350亩超大型城市公园——前湾中央公园(规划);近享集商务休闲、生活社交、运动健身等功能的滨水公园(在建)、以湖景为核心的丰收湖公园、自然景观与人文景观相互交融的东湖公园,打造城市里的诗意栖居地。
拨打售楼处电话: 400-018-7969 转 444(有专业顾问为您一对一讲解)
拨打售楼处电话: 400-018-7969 转 444(有专业顾问为您一对一讲解)
【PART4.低密】臻稀低密 约1.2容积率
当下的杭州仍受限墅令管控,尽管这两年陆续有低密地块亮相,但真正占据核芯资源的“城市低密”产品仍是凤毛麟角。稀缺决定价值,所以迄今为止,低密二手市场依旧不动如山,稳坐价格钓鱼台。春棠雅韵府作为市场上离主城最近的低密项目,以约1.2容积率,划定杭州低密人居新高度。
ıllılııllı 英冠·春棠雅韵府 ıllılıllılı
-- 雅韵东方 院归春棠 --
——英冠1号低密著作——
拨打售楼处电话: 400-018-7969 转 444(有专业顾问为您一对一讲解)
拨打售楼处电话: 400-018-7969 转 444(有专业顾问为您一对一讲解)
【PART5.作品】英冠1号低密著作 为杭州立墅
藏品排屋 宋韵入院
华夏民族之文化,历数千载之演进,造极于赵宋之世。宋式美学是中国历史长河中难以逾越的审美高峰,春棠雅韵府建面约240/310㎡藏品排屋,同步大师级审美,遵循“宋韵今形”的设计理念,将宋式建筑经典制式进行提炼,通过歇山顶、三重檐与“金镶玉”立面,重塑现代语境中的排屋风华。
ıllılııllı 英冠·春棠雅韵府 ıllılıllılı
-- 雅韵东方 院归春棠 --
——英冠1号低密著作——
拨打售楼处电话: 400-018-7969 转 444(有专业顾问为您一对一讲解)
拨打售楼处电话: 400-018-7969 转 444(有专业顾问为您一对一讲解)
奢定洋房 与墅为邻
春棠雅韵府建面约166/182㎡奢定洋房,与藏品排屋同享墅区品质,汇聚高端客群,界定圈层私域,引领生活回归宽逸之境,致敬更上一层的人生。
7层真洋房:城市不断向上生长,各种高空建筑拔地而起,真正的洋房已经成为稀缺品,以7层亲地尺度,让生活和风景坦诚相见。
ıllılııllı 英冠·春棠雅韵府 ıllılıllılı
-- 雅韵东方 院归春棠 --
——英冠1号低密著作——
拨打售楼处电话: 400-018-7969 转 444(有专业顾问为您一对一讲解)
拨打售楼处电话: 400-018-7969 转 444(有专业顾问为您一对一讲解)
奢阔楼间距:拉开楼与楼过度紧密带来的局促与压迫,拥有优越的观景视野,生活舒适度跃然而上。
领潮美学立面:同频世界奢宅“极简美学“理念,在至纯至雅的独特风貌中,品味洋房之美。
拨打售楼处电话: 400-018-7969 转 444(有专业顾问为您一对一讲解)
【PART6.礼序】归家九序 尊崇仪式感
礼者,天地之序也。春棠雅韵府深谙东方礼序之道,根据人行与车行的不同动线,精心设计迎宾、候雅、赏园、游趣、观境、泊车、进厅、登堂、入室九重归家礼序。层层递进间,尽显名门尊崇。
拨打售楼处电话: 400-018-7969 转 444(有专业顾问为您一对一讲解)
【PART7.景观】构园造境 山水见韵致
春棠雅韵府深研宋式造园手法,取意山水画卷,提炼名画中的山峦、流水、飞瀑、水榭、苍竹等元素,结合杭州的人文自然底蕴,运用现代手法营造“画里寻居,诗中筑园”的优雅意境。将城市喧嚣隔绝于外,山水真意糅融于内,传递现代东方韵律。
ıllılııllı 英冠·春棠雅韵府 ıllılıllılı
-- 雅韵东方 院归春棠 --
——英冠1号低密著作——
拨打售楼处电话: 400-018-7969 转 444(有专业顾问为您一对一讲解)
拨打售楼处电话: 400-018-7969 转 444(有专业顾问为您一对一讲解)
拨打售楼处电话: 400-018-7969 转 444(有专业顾问为您一对一讲解)
【PART8.会所】奢雅会所 生活的盛宴
如果说会所是豪宅的标配,那“下沉会所”则是王炸。春棠雅韵府打破空间的桎梏,大手笔打造约2000㎡下沉式奢雅会所,精心规划泳池、健身房、棋牌室、儿童游乐区、闺蜜厅、私宴厅等多功能空间,将奢华与自然碰撞融合,呈现高品质会所质感及酒店式体验的雅奢氛围,获得恒久生活意趣。
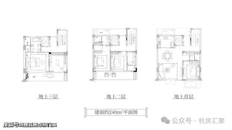
【PART9.户型】户型鉴赏
拨打售楼处电话: 400-018-7969 转 444(有专业顾问为您一对一讲解)
作为英冠1号低密著作,春棠雅韵府匠筑建面约240/310㎡藏品排屋、建面约166/182㎡奢定洋房,定义杭州塔尖人居。传承千年宋韵,同步大师级审美,于此仰望时代。
拨打售楼处电话: 400-018-7969 转 444(有专业顾问为您一对一讲解)
ıllılııllı 英冠·春棠雅韵府 ıllılıllılı
-- 雅韵东方 院归春棠 --
——英冠1号低密著作——
拨打售楼处电话: 400-018-7969 转 444(有专业顾问为您一对一讲解)
拨打售楼处电话: 400-018-7969 转 444(有专业顾问为您一对一讲解)
排屋户型:
ıllılııllı 英冠·春棠雅韵府 ıllılıllılı
拨打售楼处电话: 400-018-7969 转 444(有专业顾问为您一对一讲解)
拨打售楼处电话: 400-018-7969 转 444(有专业顾问为您一对一讲解)
ıllılııllı 英冠·春棠雅韵府 ıllılıllılı
-- 雅韵东方 院归春棠 --
——英冠1号低密著作——
拨打售楼处电话: 400-018-7969 转 444(有专业顾问为您一对一讲解)
建面约 166/182㎡奢定洋房|建面约 240/310㎡藏品排屋
-全城热销中
如果你有心关注这个项目 或是有想要上车的想法
欢迎拨打售楼处电话:400-018-7969转444(有专业顾问为您一对一讲解)
王炸户型均涉及
售楼处热线:400-018-7969转444(来电尊享售楼部优惠活动)
如有问题欢迎来电咨询,来电即可享受买房优惠!
预约来电尊享内部优惠,可预约案场内部销售人员,专业一对一热情服务,让您用专业眼光去买房。
【免责声明】
本搜狐号旨在与志同道合的同行交流、传递信息,为非营利性的知识分享,所刊载的所有文章内容,仅供参考使用,不构成任何专业意见或建议。阅读者在使用本搜狐号所提供的信息时,应谨慎对待并自行判断其适用性。
1.文章内容来源:本搜狐号所发布的文章,除非特别注明,大部分来自于作者的独立观点和经验分享,也可能引用自各种权威媒体、互联网资讯、书籍及其他公开渠道。对于这些内容的准确性和完整性,本搜狐号不作任何明示或暗示的保证。
2.素材使用:本搜狐号所引用的文章,已经注明来源和作者,因非全文引用,仅仅为作者为交流信息而做的提炼和总结,请求各种“互联网侵权”法律从业者放过,文章为交流信息而使用图片、视频、音频等多媒体素材,这些素材均来源于网络,其版权归原作者所有。如若侵犯了您的权益,请联系我们(18217267293),我们将及时予以更正或删除。
3.知识产权:本搜狐号的原创文章,版权归文章的作者所有。未经许可,任何个人或组织不得擅自转载、复制或用于商业用途。
4.外部链接:本搜狐号可能包含指向第三方网站的链接,这些链接仅为方便读者提供更多信息而设置。对于这些第三方网站的内容和隐私政策,本搜狐号不负任何责任。
5.合法免责:在任何情况下,对于因使用或依赖本搜狐号所提供的信息而造成的任何直接或间接损失,本搜狐号不承担责任。
6.内容变更:本搜狐号保留随时更改或删除任何文章内容的权利,恕不另行通知。
7.建议阅读:我们建议读者在遇到相关问题时,寻求专业人士的意见和帮助,以获取更加全面和可靠的信息。感谢您阅读我们的免责声明,继续关注我们的搜狐号,获取更多有价值的内容和信息。
声明:本文由入驻焦点开放平台的作者撰写,除焦点官方账号外,观点仅代表作者本人,不代表焦点立场。


