2026杭州【伟星·星宜嘉映府】楼盘详情——杭州 |伟星·星宜嘉映府| 售楼处欢迎您——最新网站
扫描到手机,新闻随时看
扫一扫,用手机看文章
更加方便分享给朋友
Part 01
项目规划
星宜嘉映府由19幢10-14F洋房、小高层组成,容积率1.9,占地面积51304㎡,体量不小,合计共720户。
项目规划户型面积约105-172㎡,受益于6月实施的浙江省计容新规,整体得房率很高(93-98%左右),项目采用整体抬板设计,主力户型层高为3.1-3.15米。
欢迎拨打售楼处电话:400-018-7969转444(专业顾问为您一对一讲解)
板块首个全台地上盖花园洋房,依托建筑新规,实现了接近100%的得房率。整体抬升约4.15米,约4-4.4米的架空层首开均价36772元/㎡,最低门槛不到350万,主流400-600多万。

项目的领先性还体现在利用建筑新规创新设计「板块首个全台地上盖花园洋房」,整个小区通过约4.15米高的抬升,即首层住宅架空高度约8米以上。
欢迎拨打售楼处电话:400-018-7969转444(专业顾问为您一对一讲解)
把“不利因素”隐藏起来,社区实现了彻底的人车分流。即便是洋房,2楼也相当于以往楼盘3-4楼高度,带来的是更优越的采光、通风,以及观景视野。
同时,主动向红线内退让,沿着社区一周布局了长约200米、建面约3000方街角公园,消融社区与城市的边界,形成公园包裹社区的理想境界。
欢迎拨打售楼处电话:400-018-7969转444(专业顾问为您一对一讲解)
整体小区似悬浮于地面之上,有种离开城市喧嚣,进入隐奢酒店的质感。社区外,看不见小区内,更私密;而从社区内往外看,因为地势更高,犹如观景台,外部公园成为一道景观。
欢迎拨打售楼处电话:400-018-7969转444(专业顾问为您一对一讲解)
Part 02
建筑设计
项目的建筑创新是其最显著的标识。“全抬板上盖”设计是真正的革命性一笔。社区首层住宅整体抬升超过8米(含架空层),创造出独特的“悬浮”形态。
欢迎拨打售楼处电话:400-018-7969转444(专业顾问为您一对一讲解)

在立面塑造上,建筑呈现出公建化的精致与简约。线条干净利落,大面积玻璃幕墙与高级金属、石材材质结合,勾勒出现代而典雅的轮廓。
欢迎拨打售楼处电话:400-018-7969转444(专业顾问为您一对一讲解)
立面的设计不仅关乎美学,更服务于生活,通过优化的窗墙比,将板上的花园盛景与远方的城市风光最大限度地引入室内。

欢迎拨打售楼处电话:400-018-7969转444(专业顾问为您一对一讲解)
欢迎拨打售楼处电话:400-018-7969转444(专业顾问为您一对一讲解)

社区主入口以伦敦梅费尔瑰丽酒店为设计原型,打造了气势恢宏的酒店式门仪,200米宽的酒店式门仪,近7米高檐口,16根柱廊排成序列;点睛之笔「明瓦灯笼」,近10米宽、6米高的巨型光影装置,金色雨棚与玉石纹理透光材质巧妙衔接,下方是粼粼水景,光影流转间,直接点亮归家的仪式感。
欢迎拨打售楼处电话:400-018-7969转444(专业顾问为您一对一讲解)

欢迎拨打售楼处电话:400-018-7969转444(专业顾问为您一对一讲解)

抬板步行动线设计合理,有扶梯、步梯、垂梯三种方式。
欢迎拨打售楼处电话:400-018-7969转444(专业顾问为您一对一讲解)
地下车库也颠覆了传统印象,通过设置采光天井和光导系统,变身为明亮通透的“呼吸感车库”,并与下沉庭院联通,让归家动线的每一处都充满尊崇与惬意。
欢迎拨打售楼处电话:400-018-7969转444(专业顾问为您一对一讲解)

社区内部配套堪称“超配”。项目打造了总面积近2000平方米的G层超级会所,集行政酒廊、恒温泳池、健身房、童玩中心于一体。
欢迎拨打售楼处电话:400-018-7969转444(专业顾问为您一对一讲解)
更独特的是其“无雨归家系统”:业主从地铁站出发,经过鎏金门厅、四季花厅,最终抵达单元大堂,全程风雨无阻,沿途尽享3000平方米街角公园的风景。

欢迎拨打售楼处电话:400-018-7969转444(专业顾问为您一对一讲解)

Part 03
景观设计
景观是一个多层次、可参与的生命系统。景观充分利用了抬板设计形成的约7.15米高差(抬升4.15米+下沉3米),构建了“双层立体庭院”的奇妙格局。
欢迎拨打售楼处电话:400-018-7969转444(专业顾问为您一对一讲解)

欢迎拨打售楼处电话:400-018-7969转444(专业顾问为您一对一讲解)
欢迎拨打售楼处电话:400-018-7969转444(专业顾问为您一对一讲解)

1200平米下沉式庭院,叠水成瀑,打破常规“坑洞”设计,打造上下双层平行空间,营造独特的滨水度假体验,令人一见倾心。
欢迎拨打售楼处电话:400-018-7969转444(专业顾问为您一对一讲解)
设计以“一轴多园”为脉络,规划了中央景观轴与多个主题花园。其中,一条近60米长的“马尔代夫水之轴”成为视觉焦点,蜿蜒的水系与戏水池构成清凉活泼的社区核心。
欢迎拨打售楼处电话:400-018-7969转444(专业顾问为您一对一讲解)
而约6000平方米的立体生态泛会所,更是将景观与功能完美融合:地下会所拥有同等面积的下沉庭院,引入自然光与风;抬升一层的架空层成为景观视野极佳的休闲平台。
欢迎拨打售楼处电话:400-018-7969转444(专业顾问为您一对一讲解)
景观、建筑与功能空间在此三维交织,形成一个可游、可赏、可栖的沉浸式森境。
欢迎拨打售楼处电话:400-018-7969转444(专业顾问为您一对一讲解)
Part 04
户型设计
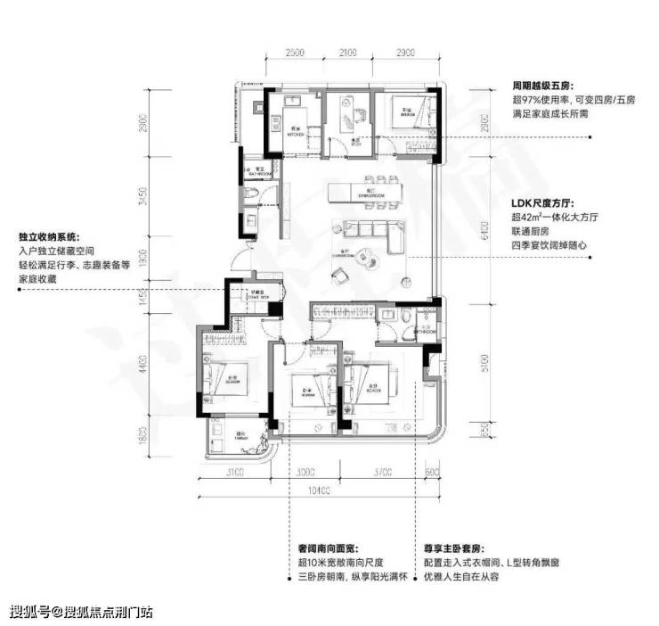
户型方面,星宜嘉映府规划面积约105-116-130-136-137-139-172㎡,其中,105㎡户型为三房设计,其余户型皆为四房及以上设计。
建面约116方4房2厅2卫户型,是目前杭州唯一在售的同等面积做到“4房+2卫+储藏室”的神户型。
欢迎拨打售楼处电话:400-018-7969转444(专业顾问为您一对一讲解)
欢迎拨打售楼处电话:400-018-7969转444(专业顾问为您一对一讲解)
这款南厅户型,改造后使用率93%,尺度堪比市面上的建面约130方产品,能省下约10方以上的购房成本,但产品力吊打周边楼盘。
除了实现四房两厅两卫的格局,还额外规划了一个独立的储藏室。相当于比其他楼盘同等面积多1房,带来前所未有的空间体验。
欢迎拨打售楼处电话:400-018-7969转444(专业顾问为您一对一讲解)
让人心动的还有它是经典的“四叶草”户型,南北通透、动静分明,每个房间都各有私密,互不打扰,堪称舒居典范。
建面约172㎡F1户型,4房2厅3卫,含赠送得房率约96%。
欢迎拨打售楼处电话:400-018-7969转444(专业顾问为您一对一讲解)

另外还有一款五房两厅三卫户型:
欢迎拨打售楼处电话:400-018-7969转444(专业顾问为您一对一讲解)
整体南向面宽达14米,其中主卧面宽约4.2米,餐客厅则是一个面宽约6.4米的南向大方厅,再结合3.15米的层高,开阔通透、大平层氛围十足。
欢迎拨打售楼处电话:400-018-7969转444(专业顾问为您一对一讲解)
欢迎拨打售楼处电话:400-018-7969转444(专业顾问为您一对一讲解)
欢迎拨打售楼处电话:400-018-7969转444(专业顾问为您一对一讲解)
建面约116m²:欢迎拨打售楼处电话:400-018-7969转444(专业顾问为您一对一讲解)
建面约116方户型,做到了四房两卫加独立储藏室,改造后使用率高达93%。
欢迎拨打售楼处电话:400-018-7969转444(专业顾问为您一对一讲解)
欢迎拨打售楼处电话:400-018-7969转444(专业顾问为您一对一讲解)
欢迎拨打售楼处电话:400-018-7969转444(专业顾问为您一对一讲解)
建面约105㎡南厅户型,3房2厅2卫,含赠送得房率约93%。
欢迎拨打售楼处电话:400-018-7969转444(专业顾问为您一对一讲解)
【免责声明】
本搜狐号旨在与志同道合的同行交流、传递信息,为非营利性的知识分享,所刊载的所有文章内容,仅供参考使用,不构成任何专业意见或建议。阅读者在使用本搜狐号所提供的信息时,应谨慎对待并自行判断其适用性。
1.文章内容来源:本搜狐号所发布的文章,除非特别注明,大部分来自于作者的独立观点和经验分享,也可能引用自各种权威媒体、互联网资讯、书籍及其他公开渠道。对于这些内容的准确性和完整性,本搜狐号不作任何明示或暗示的保证。
2.素材使用:本搜狐号所引用的文章,已经注明来源和作者,因非全文引用,仅仅为作者为交流信息而做的提炼和总结,请求各种“互联网侵权”法律从业者放过,文章为交流信息而使用图片、视频、音频等多媒体素材,这些素材均来源于网络,其版权归原作者所有。如若侵犯了您的权益,请联系我们(18217267293),我们将及时予以更正或删除。
3.知识产权:本搜狐号的原创文章,版权归文章的作者所有。未经许可,任何个人或组织不得擅自转载、复制或用于商业用途。
4.外部链接:本搜狐号可能包含指向第三方网站的链接,这些链接仅为方便读者提供更多信息而设置。对于这些第三方网站的内容和隐私政策,本搜狐号不负任何责任。
5.合法免责:在任何情况下,对于因使用或依赖本搜狐号所提供的信息而造成的任何直接或间接损失,本搜狐号不承担责任。
6.内容变更:本搜狐号保留随时更改或删除任何文章内容的权利,恕不另行通知。
7.建议阅读:我们建议读者在遇到相关问题时,寻求专业人士的意见和帮助,以获取更加全面和可靠的信息。感谢您阅读我们的免责声明,继续关注我们的搜狐号,获取更多有价值的内容和信息。
声明:本文由入驻焦点开放平台的作者撰写,除焦点官方账号外,观点仅代表作者本人,不代表焦点立场。


