2026杭州 临平 金地·丹青隐庐 (临平 金地·丹青隐庐)_房价_房型图_户型图_交通地铁_临平 金地·丹青隐庐楼盘地址!
扫描到手机,新闻随时看
扫一扫,用手机看文章
更加方便分享给朋友
欢迎拨打售楼处电话:400-018-7969转 444(有专业顾问为您一对一讲解)
欢迎拨打售楼处电话:400-018-7969转 444(有专业顾问为您一对一讲解)
欢迎拨打售楼处电话:400-018-7969转 444(有专业顾问为您一对一讲解)
欢迎拨打售楼处电话:400-018-7969转 444(有专业顾问为您一对一讲解)
欢迎拨打售楼处电话:400-018-7969转 444(有专业顾问为您一对一讲解)
欢迎拨打售楼处电话:400-018-7969转 444(有专业顾问为您一对一讲解)
欢迎拨打售楼处电话:400-018-7969转 444(有专业顾问为您一对一讲解)
欢迎拨打售楼处电话:400-018-7969转 444(有专业顾问为您一对一讲解)
欢迎拨打售楼处电话:400-018-7969转 444(有专业顾问为您一对一讲解)
欢迎拨打售楼处电话:400-018-7969转 444(有专业顾问为您一对一讲解)
欢迎拨打售楼处电话:400-018-7969转 444(有专业顾问为您一对一讲解)
欢迎拨打售楼处电话:400-018-7969转 444(有专业顾问为您一对一讲解)
金地丹青隐庐的设计实践以回归“中国性”为叙事内核,超越传统符号的浅表移植,通过对宋代空间的当代“高技派”呈现,重构了属于中国的现代建筑语言。
无论是以迂回动线、框景手法和立体园林重塑东方空间仪式,还是用材料质控与光学隐喻传承“天青”色彩哲学,其价值在于将“中国性”转化为可感知的空间内容,为现代性与文化身份的和解提供了重要范本。
欢迎拨打售楼处电话:400-018-7969转 444(有专业顾问为您一对一讲解)
△展示中心入口立面图一
欢迎拨打售楼处电话:400-018-7969转 444(有专业顾问为您一对一讲解)
△展示中心入口立面图二
欢迎拨打售楼处电话:400-018-7969转 444(有专业顾问为您一对一讲解)
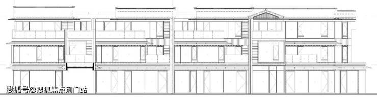
△主楼立面图一
欢迎拨打售楼处电话:400-018-7969转 444(有专业顾问为您一对一讲解)
△主楼立面图二
欢迎拨打售楼处电话:400-018-7969转 444(有专业顾问为您一对一讲解)
△主楼立面图三

【免责声明】
本搜狐号旨在与志同道合的同行交流、传递信息,为非营利性的知识分享,所刊载的所有文章内容,仅供参考使用,不构成任何专业意见或建议。阅读者在使用本搜狐号所提供的信息时,应谨慎对待并自行判断其适用性。
1.文章内容来源:本搜狐号所发布的文章,除非特别注明,大部分来自于作者的独立观点和经验分享,也可能引用自各种权威媒体、互联网资讯、书籍及其他公开渠道。对于这些内容的准确性和完整性,本搜狐号不作任何明示或暗示的保证。
2.素材使用:本搜狐号所引用的文章,已经注明来源和作者,因非全文引用,仅仅为作者为交流信息而做的提炼和总结,请求各种“互联网侵权”法律从业者放过,文章为交流信息而使用图片、视频、音频等多媒体素材,这些素材均来源于网络,其版权归原作者所有。如若侵犯了您的权益,请联系我们(18217267293),我们将及时予以更正或删除。
3.知识产权:本搜狐号的原创文章,版权归文章的作者所有。未经许可,任何个人或组织不得擅自转载、复制或用于商业用途。
4.外部链接:本搜狐号可能包含指向第三方网站的链接,这些链接仅为方便读者提供更多信息而设置。对于这些第三方网站的内容和隐私政策,本搜狐号不负任何责任。
5.合法免责:在任何情况下,对于因使用或依赖本搜狐号所提供的信息而造成的任何直接或间接损失,本搜狐号不承担责任。
6.内容变更:本搜狐号保留随时更改或删除任何文章内容的权利,恕不另行通知。
7.建议阅读:我们建议读者在遇到相关问题时,寻求专业人士的意见和帮助,以获取更加全面和可靠的信息。感谢您阅读我们的免责声明,继续关注我们的搜狐号,获取更多有价值的内容和信息。
声明:本文由入驻焦点开放平台的作者撰写,除焦点官方账号外,观点仅代表作者本人,不代表焦点立场。


