拱墅区华发武御林宸院(售楼处) 官网- 2026年申花华发武御林宸院销售中心-价格-地址-楼盘详情-配套-电话-交房时间-配套-电话-交房时间
扫描到手机,新闻随时看
扫一扫,用手机看文章
更加方便分享给朋友

编辑
久等近5个月,武林新城三塘地王终于出规划了,改善欢呼!
25年4月1日,武林新城三塘单元XC0506-21地块地块迎来出让!根据小胖观察:地块起步楼面价是2.99万/平,但是各大房企竞拍热情非常高。在竞拍至58轮时,楼面价就已经来到了3.99万/平,且此后持续高涨!在竞拍至76轮时,楼面价就接近了4.3万/平,溢价率达42.74%!
欢迎拨打官方售楼处电话:400-018-7969转666(专业顾问为您一对一讲解)
最终在99轮报价后,由竞买人宁波东部新城开发投资以15亿元总价拿下,楼面价达4.63万/平,溢价率54.6%!

编辑
这个楼面价让项目成为了当时的板块地王!也意味着宁波东投正式进入杭州,迈出第一步。
宁波东投是谁?
它来自于宁波,是一家成立于05年的国企单位,资金实力相当雄厚,且擅长和头部房企合作开发项目,比如与宁波本土房企“豪宅专家”—江山万里,就是属于紧密合作的关系,而且普遍卖的不错。

编辑

编辑
25年,宁波东投准备在杭州大展拳脚,此前曾报名竞拍建发蒋村低密、滨江水电新村等,但都是遗憾落场,三塘低密属于圆梦了。
此后,项目就十分神秘,几乎没有信息露出,也就是在1个月之前,小胖掌握了华发会加入本项目开发的消息。现在项目规划正式出炉,让我们一起来看看产品吧。
欢迎拨打官方售楼处电话:400-018-7969转666(专业顾问为您一对一讲解)
项目规划公示纯低密叠墅,圈层纯粹
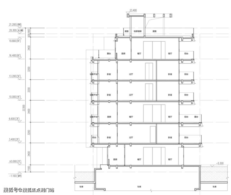
根据规划来看,项目拟建设9幢4-6F低密叠墅产品。
编辑
整体南低北高,圈层十分纯粹。
东、北、西三面都有出入口,主要的出入口位于东面的大成巷和西面的大业巷上。

编辑
整体的园区景观仪式感等集中位于项目的东面,有入口的景观构架以及下沉式庭院,以及依次排列的文化活动、体育活动、婴幼儿服务、公共文化、体育设施等等。
欢迎拨打官方售楼处电话:400-018-7969转666(专业顾问为您一对一讲解)
项目总房源套数不多,相比于其它同为低密的小区来说,本小区配套属于比较多的。
房源层高则在3.2-3.4米之间。

编辑
从已经公示南向剖面图来看,它的朝南开间尺度是十分阔绰的,且尽量是南向横厅。
至于价格:个人预计其叠墅未来均价至少9万+/平,甚至逼近10万;
关于这个价格,可能有人会觉得给它预估的太高了,怎么三塘一下就涨到10万/平去了?但其实这是根据项目产品的合理价格推测。
欢迎拨打官方售楼处电话:400-018-7969转666(专业顾问为您一对一讲解)
已知同为武林新城区域的绿城岸芷丁香作为不限价项目,拿地价约3.66万/平,后期高层均价5.93万/平,地房比约1.6,既有建安成本也有对好产品的赋能,且这样的价格趋势,购房者也是非常买单的。那何况是叠墅产品,地房比基本稳定在2倍左右,甚至更多。
项目基本信息回顾商改住而来
关注本地块信息已久,此前曾是一宗商业地块。2025年2月14日,杭州市规划官网公示一则商改住信息,如下图:

编辑
地块具体位置:东至大成巷,南至兴新路,西至大业巷,北至兴新北路;(荣安春熙上和湾南面)
地块调整前:一宗商业商务用地;
地块调整后:

编辑
改为一宗住宅用地。
用地面积:2.03公顷;容积率:1.6;建筑高度:27米;
特殊要求:需配建文化活动室、体育活动室、残疾人社区康复站、社区儿童成长驿站、社区居委会、社区党群服务中心、社区食堂等。

编辑
项目周边配套介绍武林核心圈
附周边配套:(重点看03地块)

编辑
商业:3公里范围左右水晶城、远洋乐堤港、阳光城银泰、杭州新天地、杭州大厦、武林银泰、嘉里城(在建)、长木经济合作社开放式街区综合体等;
教育:三塘实验幼儿园、胜蓝实验学校、风帆中学、观城实验学校;
医院:浙江省人民医院、杭州市儿童医院、杭州市第二人民医院、树兰医院;
交通:地铁15号线(规划)三塘站地铁口,地铁5号线香积寺路站、杭氧站、西文街站在旁;
欢迎拨打官方售楼处电话:400-018-7969转666(专业顾问为您一对一讲解)
一圈总结下来,发现新地块距离武林核心也才3km,发展醇熟,配套详尽。其中商业方面的优势更是显著,喜爱买买买的女主人,千万不能错过。
编辑
最后还有一点值得大家注意:
如果说以前很多人觉得拱墅区核心因为可用于开发的土地已经非常有限,所以在这里改善成难题。那么现在伴随着杭锅杭氧、长木新村等的大批动迁,嘉里城、恒隆百井坊巷、杭州中心等巨头的入驻,接下来的下城面貌将会焕然一新。未来的想象空间巨大,发展潜力值得期待。
编辑
【免责声明】
本搜狐号旨在与志同道合的同行交流、传递信息,为非营利性的知识分享,所刊载的所有文章内容,仅供参考使用,不构成任何专业意见或建议。阅读者在使用本搜狐号所提供的信息时,应谨慎对待并自行判断其适用性。
1.文章内容来源:本搜狐号所发布的文章,除非特别注明,大部分来自于作者的独立观点和经验分享,也可能引用自各种权威媒体、互联网资讯、书籍及其他公开渠道。对于这些内容的准确性和完整性,本搜狐号不作任何明示或暗示的保证。
2.素材使用:本搜狐号所引用的文章,已经注明来源和作者,因非全文引用,仅仅为作者为交流信息而做的提炼和总结,请求各种“互联网侵权”法律从业者放过,文章为交流信息而使用图片、视频、音频等多媒体素材,这些素材均来源于网络,其版权归原作者所有。如若侵犯了您的权益,请联系我们(18217267293),我们将及时予以更正或删除。
3.知识产权:本搜狐号的原创文章,版权归文章的作者所有。未经许可,任何个人或组织不得擅自转载、复制或用于商业用途。
4.外部链接:本搜狐号可能包含指向第三方网站的链接,这些链接仅为方便读者提供更多信息而设置。对于这些第三方网站的内容和隐私政策,本搜狐号不负任何责任。
5.合法免责:在任何情况下,对于因使用或依赖本搜狐号所提供的信息而造成的任何直接或间接损失,本搜狐号不承担责任。
6.内容变更:本搜狐号保留随时更改或删除任何文章内容的权利,恕不另行通知。
7.建议阅读:我们建议读者在遇到相关问题时,寻求专业人士的意见和帮助,以获取更加全面和可靠的信息。感谢您阅读我们的免责声明,继续关注我们的搜狐号,获取更多有价值的内容和信息。
声明:本文由入驻焦点开放平台的作者撰写,除焦点官方账号外,观点仅代表作者本人,不代表焦点立场。


