2026杭州 拱墅 风华锦澜里售楼处电话_风华锦澜里售楼中心_24小时电话_风华锦澜里最新房源详情
扫描到手机,新闻随时看
扫一扫,用手机看文章
更加方便分享给朋友
欢迎拨打售楼处电话:400-018-7969转444(有专业顾问为您一对一讲解)

两千年前,京杭大运河的开凿贯通铸就了中华南北融合的繁盛。
2014年,运河申遗成功,依河而生的运河新城,正是传承运河历史文化的着力之举、经典之作。至此之后,运河新城的节奏非常快,甚至还有杭州下血本规划了十大标志性项目如:大运河旧钢工业旧址综保项目、大运河未来艺术与科技中心等,陆续规划建成。
欢迎拨打售楼处电话:400-018-7969转444(有专业顾问为您一对一讲解)
25年,运河板块楼市火热,近日就有绿城掀动小热潮,全城围观。
就在绿城项目的隔壁,同拱墅区运河板块、同4号线平安桥地铁口,育才大城北名校在旁,滨江运河新项目传来新动静:官宣案名—风华锦澜里,并有建面约112~176方户型分布图流出,其中约139方户型为项目主力。
欢迎拨打售楼处电话:400-018-7969转444(有专业顾问为您一对一讲解)
同步还有最新的过程稿效果图发布!
欢迎拨打售楼处电话:400-018-7969转444(有专业顾问为您一对一讲解)
欢迎拨打售楼处电话:400-018-7969转444(有专业顾问为您一对一讲解)
从最新的效果图来看,项目的抬板优势明显,未来产品力值得期待。
欢迎拨打售楼处电话:400-018-7969转444(有专业顾问为您一对一讲解)
而回到地块的前身,正是8月15日,越秀经过28轮竞价,以约2.05万/平楼面价斩获的新地,现在确定由滨江加入并操盘。
地块位置实景图:
欢迎拨打售楼处电话:400-018-7969转444(有专业顾问为您一对一讲解)
附更多地块详情:
用地面积:34165㎡;
容积率:1.9;(这个容积率,也可以做高低配产品组合)
建筑面积:64914㎡;

特殊要求:配套公建面积不大于地上总建筑面积的10%。附建托育机构1处,建筑面积不小于400平方米。
欢迎拨打售楼处电话:400-018-7969转444(有专业顾问为您一对一讲解)
根据规划来看:项目拟建设12幢住宅,其中含8幢16F、1幢13F高层,1幢11F小高层,2幢6-7F洋房。
欢迎拨打售楼处电话:400-018-7969转444(有专业顾问为您一对一讲解)
其中洋房位于项目的北面,享受一线电厂河道景观,整体南高北低分布。

项目的出入口位于东面的顾杨路和西面的规划道路。其中东面的主要出入口位置坐了小区门厅、景观构架、下沉式庭院和景观水系,详细的方案效果待二次深化。
欢迎拨打售楼处电话:400-018-7969转444(有专业顾问为您一对一讲解)
全区由开放式风雨连廊连接。
内部有2处大面积的集中绿地,还有室外文化场地、体育活动场地等等,配套还是十分丰富的。
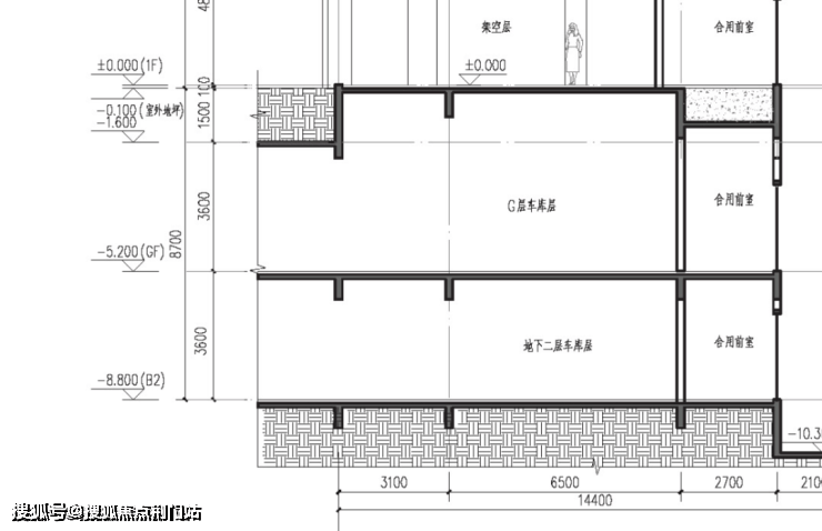
项目住宅房源层高3米:(相对刚需)

欢迎拨打售楼处电话:400-018-7969转444(有专业顾问为您一对一讲解)
架空层层高4.88米:

欢迎拨打售楼处电话:400-018-7969转444(有专业顾问为您一对一讲解)
地下层高8.7米:

附周边配套优势:
周边配套相对齐全。
地铁方面,距离4号线平安桥站&15号线(在建)平安桥站直线约300米。
教育方面,运河新城名校云集,项目附近有育才大城北学校、卖鱼桥小学(文润校区)、上世外48班小学、文渊小学(新城校区)等,书香气浓郁。(注意:期房不承诺学区,需等交付后由教育部门统一划分)
欢迎拨打售楼处电话:400-018-7969转444(有专业顾问为您一对一讲解)
商业方面,直线约3公里范围内有运河湾综合体(52万方超大体量、在建)、万达广场、运河上街等坐镇;
医疗方面有杭师大附属医院(三甲),浙江大学医学院附属邵逸夫医院(三甲)等。

售楼处热线:400-018-7969转444(来电尊享售楼部优惠活动)
如有问题欢迎来电咨询,来电即可享受买房优惠!
预约来电尊享内部优惠,可预约案场内部销售人员,专业一对一热情服务,让您用专业眼光去买房。
【免责声明】
本搜狐号旨在与志同道合的同行交流、传递信息,为非营利性的知识分享,所刊载的所有文章内容,仅供参考使用,不构成任何专业意见或建议。阅读者在使用本搜狐号所提供的信息时,应谨慎对待并自行判断其适用性。
1.文章内容来源:本搜狐号所发布的文章,除非特别注明,大部分来自于作者的独立观点和经验分享,也可能引用自各种权威媒体、互联网资讯、书籍及其他公开渠道。对于这些内容的准确性和完整性,本搜狐号不作任何明示或暗示的保证。
2.素材使用:本搜狐号所引用的文章,已经注明来源和作者,因非全文引用,仅仅为作者为交流信息而做的提炼和总结,请求各种“互联网侵权”法律从业者放过,文章为交流信息而使用图片、视频、音频等多媒体素材,这些素材均来源于网络,其版权归原作者所有。如若侵犯了您的权益,请联系我们(18217267293),我们将及时予以更正或删除。
3.知识产权:本搜狐号的原创文章,版权归文章的作者所有。未经许可,任何个人或组织不得擅自转载、复制或用于商业用途。
4.外部链接:本搜狐号可能包含指向第三方网站的链接,这些链接仅为方便读者提供更多信息而设置。对于这些第三方网站的内容和隐私政策,本搜狐号不负任何责任。
5.合法免责:在任何情况下,对于因使用或依赖本搜狐号所提供的信息而造成的任何直接或间接损失,本搜狐号不承担责任。
6.内容变更:本搜狐号保留随时更改或删除任何文章内容的权利,恕不另行通知。
7.建议阅读:我们建议读者在遇到相关问题时,寻求专业人士的意见和帮助,以获取更加全面和可靠的信息。感谢您阅读我们的免责声明,继续关注我们的搜狐号,获取更多有价值的内容和信息。
声明:本文由入驻焦点开放平台的作者撰写,除焦点官方账号外,观点仅代表作者本人,不代表焦点立场。


