绿城悦海棠 售楼处电话 2025杭州西湖区 绿城悦海棠楼盘百科→首页网站→楼盘百科→首页网站→绿城悦海棠24小时热线电话
扫描到手机,新闻随时看
扫一扫,用手机看文章
更加方便分享给朋友
14幢高层住宅
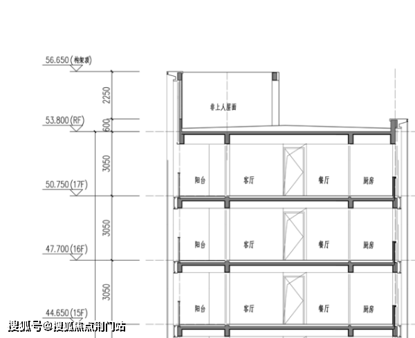
根据规划来看,项目拟建设14幢16-17F高层住宅。
经小胖简单计算,总户数约514户,项目套均140方。(作为参考:绿城熙海棠户型面积约103-138方,新项目定位更偏改善)
项目北面是绿城熙海棠,东面云万科云耀之城,南面是公共绿地、河道,居住氛围十分不错。主要的出入口也位于北、东两侧。

从项目北面进入小区,首先面对的就是景观廊架、下沉式庭院以及泳池,归家仪式感十足。

另外小区内还有多处景观架构、公共体育设施、集中绿地等等,配套齐全。
房源层高约3.05米。小胖随意测绘了一个户型的南向面宽,竟超15米。可以预见,住在这里,未来采光、通风都不错。

地铁口
地块基础信息如下:
地块位置:东至荆大路,南至规划绿化,西至云涛北路,北至云海街。用地性质:住宅
土地面积:31877㎡
容积率:2.3
特殊要求:配套工业不大于10%;文化活动室760㎡,共享书房200㎡。

地块实景:
周边配套:
交通上已经配套先行,有地铁4号线延伸段(在建),可串联云谷、西湖大学、火车东站和钱江新城,既是高知创新纽带,也让出行高效方便。

教育方面:板块内已有西湖大学坐镇,以及十五年一贯制云谷学校+36班九年一贯制学校(在建)等高质量教育资源。(新房无学区概念,具体以政府划分为准)
产业方面,有阿里云总部、菜鸟云谷产业园、云创镓谷……预计未来有超30家企业总部入驻。一流大学+密集的产业集群,板块的发展潜力一触即发。
声明:本文由入驻焦点开放平台的作者撰写,除焦点官方账号外,观点仅代表作者本人,不代表焦点立场。


