春棠雅韵府建面约166/182㎡奢定洋房,与藏品排屋同享墅区品质,汇聚高端客群,界定圈层私域,引领生活回归宽逸之境,致敬更上一层的人生。作为英冠1号低密著作,春棠雅韵府匠筑建面约240/310㎡藏品排屋、建面…
ıllılııllı 英冠·春棠雅韵府 ıllılıllılı
-- 雅韵东方 院归春棠 --
——英冠1号低密著作——
【售楼中心电话】:400-080-0105转333
预约来电尊享线上团购优惠,免费专车接送看房
开发商直销,中介勿扰!
网上营销中心24小时销售热线〢欢迎您的来电咨询〢
建面约166/182㎡奢定洋房 | 建面约240/310㎡藏品排屋

九大必买理由
【实力杭企】英冠深耕杭州24载,品质、交付双保障
【区域优势】城东新中心,一脉钱江新城2.0发展势能
【立体枢纽】地铁9号线翁梅站,5站钱二
【繁华商圈】遥望X27、宜家、上城天街(在建)、理想银泰城等
【教育高地】幼小初高全龄教育,书香浸润
【稀缺低密】约1.2容积率,主城稀缺低密住区
【高端圈层】洋房与排屋同享高端圈层
【宋韵美学】千年宋韵的当代表达,风雅造境
【奢雅会所】约2000㎡下沉式奢雅会所,享受当代宋韵生活
项目地址:杭州市临平区鑫业路与临乔路交叉口

建面约166/182㎡奢定洋房 | 建面约240/310㎡藏品排屋
【项目概况】
开发商:浙江英冠控股集团
用地面积:约4.7万㎡
总建筑面积:约11万㎡
容积率:约1.2
绿地率:约30%
产品类型:21幢藏品排屋;9幢奢定洋房
户型面积:约166/182㎡洋房;约240/310㎡排屋
产权年限:70年
【PART1.品牌】群英之冠 实力双保障
浙江英冠控股集团深耕杭州24载,始终追求杭派精工品质,凭借稳健的战略决策形成以地产开发、高星级酒店、工程建筑、物业服务、商业管理为核心的五大业务板块。
在地产开发中,英冠独立操盘重磅墅级豪宅作品滨悦城、钱江世纪城首个城市综合体水天城等10余个高端商业及住宅项目,并联袂一众知名房企打造英冠绿城奥体摩登新著晴澜轩、江岸豪宅封面作品滨月云府、复合型潮派大城澜映悦城等6个高端住宅项目,成绩斐然,以硬核实力成就美好人居。
-- 雅韵东方 院归春棠 --
——英冠1号低密著作——

【PART2.板块】城东新中心 同频钱江新城2.0发展
随着杭州高端居住版图向东扩张,乔司启动“南融主城”战略,一脉钱江新城2.0发展势能,高水平建设临平数智城,着力打造杭州城东新中心。未来,乔司将串联起丰富的产业和休闲娱乐业态,形成活力四射、宜居宜业的全域生活圈。
-- 雅韵东方 院归春棠 --
建面约166/182㎡奢定洋房 | 建面约240/310㎡藏品排屋

【PART3.配套】全维配套 资源聚集地
远见杭州新格局,于时代高处落笔,春棠雅韵府凝萃核芯资源,让生活与城市共融,敬献层峯人士。
立体枢纽 高效畅达全城
-- 雅韵东方 院归春棠 --
——英冠1号低密著作——

轨道交通:直线距离约800米地铁9号线翁梅站,5站钱二(红普南路),对接钱江新城、杭州东站、客运中心的快速互联。
快速路网:东湖快速路连留石、秋石、钱塘、空港等高架互通主城。
繁华商圈 演绎精彩生活
优质商业:遥望X27、宜家等地标商业,成为新型潮流打卡地;泽怀广场、华荣城,配有海底捞、星巴克、超市、电影院等;乔司老街一条街吃喝玩乐,主打快餐饮、聚餐等;翁梅农贸市场满足日常需求。
区域商业:国芳天街、理想银泰城、上城天街(在建)、余之城、华元欢乐城。
-- 雅韵东方 院归春棠 --
建面约166/182㎡奢定洋房 | 建面约240/310㎡藏品排屋

全龄教育 启赋卓越未来
拥享幼小初高15年全龄教育,其中杭高临平学校仅与项目一路之隔,乔司第一幼儿园、乔司小学、文正小学、启明实验学校(九年一贯制学校)等优教资源环绕在侧,为成长创造书香主场。

建面约166/182㎡奢定洋房 | 建面约240/310㎡藏品排屋

自然栖地 都会公园谧境
毗邻约350亩超大型城市公园——前湾中央公园(规划);近享集商务休闲、生活社交、运动健身等功能的滨水公园(在建)、以湖景为核心的丰收湖公园、自然景观与人文景观相互交融的东湖公园,打造城市里的诗意栖居地。


【PART4.低密】臻稀低密 约1.2容积率
当下的杭州仍受限墅令管控,尽管这两年陆续有低密地块亮相,但真正占据核芯资源的“城市低密”产品仍是凤毛麟角。稀缺决定价值,所以迄今为止,低密二手市场依旧不动如山,稳坐价格钓鱼台。春棠雅韵府作为市场上离主城最近的低密项目,以约1.2容积率,划定杭州低密人居新高度。
建面约166/182㎡奢定洋房 | 建面约240/310㎡藏品排屋

建面约166/182㎡奢定洋房 | 建面约240/310㎡藏品排屋
【PART5.作品】英冠1号低密著作 为杭州立墅
藏品排屋 宋韵入院
华夏民族之文化,历数千载之演进,造极于赵宋之世。宋式美学是中国历史长河中难以逾越的审美高峰,春棠雅韵府建面约240/310㎡藏品排屋,同步大师级审美,遵循“宋韵今形”的设计理念,将宋式建筑经典制式进行提炼,通过歇山顶、三重檐与“金镶玉”立面,重塑现代语境中的排屋风华。

奢定洋房 与墅为邻
春棠雅韵府建面约166/182㎡奢定洋房,与藏品排屋同享墅区品质,汇聚高端客群,界定圈层私域,引领生活回归宽逸之境,致敬更上一层的人生。
7层真洋房:城市不断向上生长,各种高空建筑拔地而起,真正的洋房已经成为稀缺品,以7层亲地尺度,让生活和风景坦诚相见。
-- 雅韵东方 院归春棠 --
建面约166/182㎡奢定洋房 | 建面约240/310㎡藏品排屋

奢阔楼间距:拉开楼与楼过度紧密带来的局促与压迫,拥有优越的观景视野,生活舒适度跃然而上。
领潮美学立面:同频世界奢宅“极简美学“理念,在至纯至雅的独特风貌中,品味洋房之美。

【PART6.礼序】归家九序 尊崇仪式感
礼者,天地之序也。春棠雅韵府深谙东方礼序之道,根据人行与车行的不同动线,精心设计迎宾、候雅、赏园、游趣、观境、泊车、进厅、登堂、入室九重归家礼序。层层递进间,尽显名门尊崇。

【PART7.景观】构园造境 山水见韵致
春棠雅韵府深研宋式造园手法,取意山水画卷,提炼名画中的山峦、流水、飞瀑、水榭、苍竹等元素,结合杭州的人文自然底蕴,运用现代手法营造“画里寻居,诗中筑园”的优雅意境。将城市喧嚣隔绝于外,山水真意糅融于内,传递现代东方韵律。
建面约166/182㎡奢定洋房 | 建面约240/310㎡藏品排屋

【PART8.会所】奢雅会所 生活的盛宴

如果说会所是豪宅的标配,那“下沉会所”则是王炸。春棠雅韵府打破空间的桎梏,大手笔打造约2000㎡下沉式奢雅会所,精心规划泳池、健身房、棋牌室、儿童游乐区、闺蜜厅、私宴厅等多功能空间,将奢华与自然碰撞融合,呈现高品质会所质感及酒店式体验的雅奢氛围,获得恒久生活意趣。
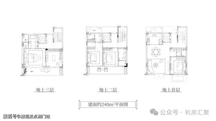
【PART9.户型】户型鉴赏

作为英冠1号低密著作,春棠雅韵府匠筑建面约240/310㎡藏品排屋、建面约166/182㎡奢定洋房,定义杭州塔尖人居。传承千年宋韵,同步大师级审美,于此仰望时代。
-
建面约166/182㎡奢定洋房 | 建面约240/310㎡藏品排屋

建面约166/182㎡奢定洋房 | 建面约240/310㎡藏品排屋

排屋户型:
ıllılııllı 英冠·春棠雅韵府 ıllılıllılı


ıllılııllı 英冠·春棠雅韵府 ıllılıllılı
-- 雅韵东方 院归春棠 --
——英冠1号低密著作——
【售楼中心电话】:400-080-0105转333
预约来电尊享线上团购优惠,免费专车接送看房
开发商直销,中介勿扰!
网上营销中心24小时销售热线〢欢迎您的来电咨询〢