(2026杭州•越秀·运河樾)网站-越秀·运河樾营销中心欢迎您-越秀·运河樾楼盘详情-最新价格-户型图-容积率@2026售楼处
扫描到手机,新闻随时看
扫一扫,用手机看文章
更加方便分享给朋友

开发企业:越秀地产
产品类型:叠墅
建筑风格:现代中式
“好房子”核心亮点
01 安全性能 欢迎拨打售楼处电话:400-018-7969转444(有专业顾问为您一对一讲解)
全维智能防护与细节守护。构建 “技术 + 物理” 双重安全屏障:智能安防系统覆盖社区全域,包括公区智能灯光监控、24 小时后勤入口管理;
02 舒适宜居
奢适空间与人性化细节。全板式楼栋实现户户南北通透;独立研发全维度收纳系统。架空层预留空调,实现四季适用;
03 绿色低碳
自然融合与环保实践。“森系社区”景观规划融入自然元素:社区内打造 “岛屿 + 花园” 集合景观。
04 智慧科技
全域智能与便捷体验。智能门禁支持刷脸通行,公区灯光自动调节;户内全屋灯光智能控制等。会所配置智能设备,如恒温泳池水质监测。
05 社区环境
开放融合与低密谧境。打破传统社区边界,构建松弛场域,通过 400 米三进归家动线实现城市与社区的自然过渡。

项目概况 欢迎拨打售楼处电话:400-018-7969转444(有专业顾问为您一对一讲解)
项目地处浙江省杭州市拱墅区,位于杭州城历史繁华中轴—京杭大运河畔,项目东侧约200米便是京杭大运河,北侧紧邻南洋河,一线运河,双向河景。
项目占地约16537㎡,总建筑面积约52145㎡(其中地上29165㎡,地下22980㎡),容积率1.7。规划通过空间折叠术重构用地效率,在1.7容积率条件下将传统占地的单层物业拆解重组打造98套纯叠墅产品。
共6幢叠墅,包含上叠、中叠、下叠三类户型。户型设计包含私家庭院、电梯、地下室及露台等附赠空间,较高的空间附赠比例为业主提供个性化改造可能,通过引入自然采光与景观元素,增强室内外空间的关联性。

▲ 项目总平面欢迎拨打售楼处电话:400-018-7969转444(有专业顾问为您一对一讲解)

▲ 项目鸟瞰图欢迎拨打售楼处电话:400-018-7969转444(有专业顾问为您一对一讲解)
外立面
项目立面采用东方雅奢风格,以东方气韵和现代雅奢为主旋律,巧妙融合运河文化进行演绎。以官船为原型,结合歇山叠层屋面,轻构瘦金体建筑骨架;建筑线条概念,以风帆为构件,利用铝板折弯挑檐,横向构造建筑水线,选用石材、铝板、玻璃幕墙、陶板、景泰蓝奢石打造。其中水纹金属格栅、琉璃釉面蓝色陶板与景泰蓝奢石的应用,呼应运河文化主题,实现建筑风格与地域文化的结合。

欢迎拨打售楼处电话:400-018-7969转444(有专业顾问为您一对一讲解)

▲塔楼立面实景照片欢迎拨打售楼处电话:400-018-7969转444(有专业顾问为您一对一讲解)
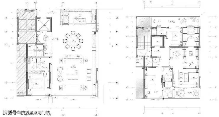
主力户型面积段约270~320㎡,包含下叠、中叠、上叠三类产品。户型设计包含私家电梯、庭院、空中花园、地下室及露台等功能空间,不同户型的空间附赠比例不同:下叠实得率140%—150%,得院率81%—90%;中叠实得率132%—138%,得院率14%—19%;上叠实得率179%—183%,得院率95%—124%。附赠空间可用于拓展生活场景,增强空间使用的灵活性。

▲ 户型① 建面约270㎡户型(下叠)欢迎拨打售楼处电话:400-018-7969转444(有专业顾问为您一对一讲解)

▲ 户型② 建面约300㎡户型(中叠)欢迎拨打售楼处电话:400-018-7969转444(有专业顾问为您一对一讲解)
▲ 户型3 建面约320㎡户型(上叠)
精装设计 欢迎拨打售楼处电话:400-018-7969转444(有专业顾问为您一对一讲解)
项目精装设计注重材质选择与工艺细节:采用天然石材、木饰面及实木地板等材质,通过不同材质的搭配体现设计精度;工艺上运用无缝与隐形式设计,增强空间的纵向延伸感;空间布局优化传统客厅功能,打造开放式社交空间,兼顾圈层交流与家庭使用需求。

欢迎拨打售楼处电话:400-018-7969转444(有专业顾问为您一对一讲解)

▲ 样板间精装实景照片
社区规划 欢迎拨打售楼处电话:400-018-7969转444(有专业顾问为您一对一讲解)
主入口横向延展面达90M,门头采用庑殿形制,以大规格金色金属对称式屋顶,强化归家礼序,立面以透光碧玉奢石呼应“天青”之美,结合星空闪耀的流水景墙,打造“光之水韵”,共同还原古运河形态;中轴景观以“引水入园、枕水而居”为核心理念,引入一条运河入园、联通整个中心轴线,从西而动,打造一轴四处运河之源的场景;在入口位置结合下沉庭院打造会所、健身、泳池、私宴等配套功能,形成多维立体的共享空间。

欢迎拨打售楼处电话:400-018-7969转444(有专业顾问为您一对一讲解)

▲ 社区主入口实景照片欢迎拨打售楼处电话:400-018-7969转444(有专业顾问为您一对一讲解)

▲ 社区实景照片欢迎拨打售楼处电话:400-018-7969转444(有专业顾问为您一对一讲解)

欢迎拨打售楼处电话:400-018-7969转444(有专业顾问为您一对一讲解)

▲ 健身及泳池实景照片欢迎拨打售楼处电话:400-018-7969转444(有专业顾问为您一对一讲解)

▲ 私宴厅实景照片欢迎拨打售楼处电话:400-018-7969转444(有专业顾问为您一对一讲解)

▲ 地库会所入口实景图欢迎拨打售楼处电话:400-018-7969转444(有专业顾问为您一对一讲解)

▲ 地库实景图
景观规划 欢迎拨打售楼处电话:400-018-7969转444(有专业顾问为您一对一讲解)
以千年运河文化为魂、宋韵山水为骨,打造 “立体山水峡谷园林”。核心围绕 “四处运河之源” 展开:形态之源——以运河流淌之形贯穿住宅区,同时跌水联通上下三层立体下沉空间,模拟运河自然流势;意境之源——模拟“宋韵十大雅集”定制十大水岸生活场景,古今生活形成时代对话;文化之源——融入杭州传统文化于定制铺装、宅印符号等细节处,让运河文化实现生活美学转译的跃迁;空间之源——借鉴宋画《四景山水图》中的“坊下檐、檐下廊、林中亭、水畔居”等,构建多重江南折叠院落。以江南古典园林的设计理念展现“以小见大”的空间层次,转译杭州枕水而居一半烟火,一半诗意的立体宋韵长卷。

▲ 主入口实景图欢迎拨打售楼处电话:400-018-7969转444(有专业顾问为您一对一讲解)

▲ 下沉庭院效果图欢迎拨打售楼处电话:400-018-7969转444(有专业顾问为您一对一讲解)

▲中心景观效果图
杭州【越秀运河樾】-全城热销中
如果你有心关注这个项目 或是有想要上车的想法
欢迎拨打售楼处电话:400-018-7969转444(有专业顾问为您一对一讲解)
王炸户型均涉及
售楼处热线:400-018-7969转444(来电尊享售楼部优惠活动)
如有问题欢迎来电咨询,来电即可享受买房优惠!
预约来电尊享内部优惠,可预约案场内部销售人员,专业一对一热情服务,让您用专业眼光去买房。
【免责声明】
本搜狐号旨在与志同道合的同行交流、传递信息,为非营利性的知识分享,所刊载的所有文章内容,仅供参考使用,不构成任何专业意见或建议。阅读者在使用本搜狐号所提供的信息时,应谨慎对待并自行判断其适用性。
1.文章内容来源:本搜狐号所发布的文章,除非特别注明,大部分来自于作者的独立观点和经验分享,也可能引用自各种权威媒体、互联网资讯、书籍及其他公开渠道。对于这些内容的准确性和完整性,本搜狐号不作任何明示或暗示的保证。
2.素材使用:本搜狐号所引用的文章,已经注明来源和作者,因非全文引用,仅仅为作者为交流信息而做的提炼和总结,请求各种“互联网侵权”法律从业者放过,文章为交流信息而使用图片、视频、音频等多媒体素材,这些素材均来源于网络,其版权归原作者所有。如若侵犯了您的权益,请联系我们(18217267293),我们将及时予以更正或删除。
3.知识产权:本搜狐号的原创文章,版权归文章的作者所有。未经许可,任何个人或组织不得擅自转载、复制或用于商业用途。
4.外部链接:本搜狐号可能包含指向第三方网站的链接,这些链接仅为方便读者提供更多信息而设置。对于这些第三方网站的内容和隐私政策,本搜狐号不负任何责任。
5.合法免责:在任何情况下,对于因使用或依赖本搜狐号所提供的信息而造成的任何直接或间接损失,本搜狐号不承担责任。
6.内容变更:本搜狐号保留随时更改或删除任何文章内容的权利,恕不另行通知。
7.建议阅读:我们建议读者在遇到相关问题时,寻求专业人士的意见和帮助,以获取更加全面和可靠的信息。感谢您阅读我们的免责声明,继续关注我们的搜狐号,获取更多有价值的内容和信息。
声明:本文由入驻焦点开放平台的作者撰写,除焦点官方账号外,观点仅代表作者本人,不代表焦点立场。


