春来晴翠(售楼处)首页网站-杭州英冠绿城•春来晴翠园销售中心(营销中心)-滨江春来晴翠楼盘欢迎您-小区环境-户型-价格-地址-楼盘详情-售楼处电话-交房时间
扫描到手机,新闻随时看
扫一扫,用手机看文章
更加方便分享给朋友
主城国际滨·高端产学研集聚·稀缺地铁口大盘
🔥【稀缺TOD大盘】绿城国际滨第八子,为改善而来
🔥【江南科学城芯】紧靠国际零磁科学谷,商住产学研一体
🔥【地铁便捷出行】近邻地铁4号线浦炬街站(在建)
🔥【江岸品质生活】直线距离约1km钱塘江,江景、优教、商圈、医疗全配齐(不作学区承诺)
🔥【全维生活范本】“两轴一街九境N组团”景观|24H全龄主题架空层|七大分镜式收纳
【开发商】英冠控股/绿城中国
【总占地面积】约5.3万㎡
【总建筑面积】约23.1万㎡
【容积率】3.0
【绿化率】35%
【建筑类型】18幢住宅+3幢商办
【高层户型】建面约104-169㎡
【总户数】852户
【物业服务】绿城物业
本案位于滨江区江南科学城核心——零磁科学谷,零磁科学谷作为国家直属科研特区,承载"国之重器"战略使命。未来,这座钱江南岸崛起的“创新之城”,将形成“产研城”相融大格局,成就智慧城市新地标。
🚇【高效出行】同步杭城脉动
直线距离地铁4号线浦炬街站(在建)约100米,且享有“两横两纵”快速路网和“五横四纵”主干路网,便捷通达全城,实现高效都市理想。
🛍【商圈矩阵】执掌繁华主场
直线距离约4公里范围内汇集约30多万方商业综合体,金盛嘉悦广场、CC小镇、映创城、滨江开元广场、滨江宝龙城等,为精彩生活加码。
🎒【人文书香】赋能全龄成长
直线距离约600米范围内有竺可桢学校和振浦小学(规划在建),周边硅谷小学、硅谷中学、滨兰实验学校、浦沿中学、杭州第二中学滨江校区等名校环伺伴成长。(新房不承诺学区,具体教育信息以政府教育部门政策为准)。
🏥【医疗护航】充实生活底气
直线距离约400米为杭州市第四人民医院,计划2028 年投入使用。此外,直线距离约5公里内覆盖省儿保滨江院区,直线距离约7公里接驳浙大二院滨江院区,为健康生活保驾护航。
🌸【生态宜居】邂逅自然诗意
步行约1公里即达钱塘江畔,冠山公园,白马湖公园等绿意环抱,生态宜居画卷徐徐展开,让自然浸润生活日常。
面向年轻群体,以“SUNSHINE”价值体系,打造“2025绿城国际滨全维生活范本”,构筑7x24H生活解决方案,让每一种需求都能找到答案。
🍀Synergy品牌价值:
绿城30载迭新之作,迭代滨江改善人居;
🌆Ubiquity城市价值:
于国际滨时代主场,乘“拥江发展”东风;
💠Nuance建筑价值:
超纤细金丝画框立面,塑造流动天际线;
⛲️Symbiosis景观价值:
“两轴一街九境N组团”景观,沉浸式公园住区;
🛋️Holography户型价值:
精装3-4房,满足家庭全生命周期需求;
🗃️Infrastructure收纳价值:
七大分镜式收纳场景,匠呈秩序之美;
✨Navigate生活价值:
自带商业解锁一站式缤纷;全天候全龄架空层,集萃万般逸趣 ;
💞Exchange圈层价值:
绿城服务+四季IP+志趣社群,为社交赋能。
在杭州改善置业的赛道上,户型设计往往是决定“生活质感”的关键分。英冠绿城·春来晴翠园的户型,用空间的巧思与美学的表达,给出了一份让人心动的答卷——谨献建筑面积约104-169㎡全能户型,满足当代人居需求。
建面约104方户型
装修效果展示空间效果图
建面约104㎡的户型,打破“刚需尺度”的刻板印象。LDK一体化设计,让客厅、餐厅、厨房流畅串联,家人互动零阻隔。
浅色系装修搭配通透采光,营造出“小家大宅感”;定制收纳嵌入墙面,藏起琐碎,留出满室温馨。无论是二人世界的温馨,还是三口之家的成长,都能在这里找到适配的生活场景。
建面约109方户型图设计过程稿
建面约124方户型
装修效果展示空间效果图
建面约124㎡户型,把“宽”做到了骨子里。大面宽阳台+全景落地窗,将窗外绿意与阳光“框”进客厅,坐在沙发上,仿佛与自然无界对话。
开放式洄游动线,让烹饪、社交、休憩自然衔接;主卧套房带独立卫浴+衣帽间,把“酒店式享受”搬进日常。在这里,生活不是将就,而是一场关于“舒适与美”的沉浸式体验。
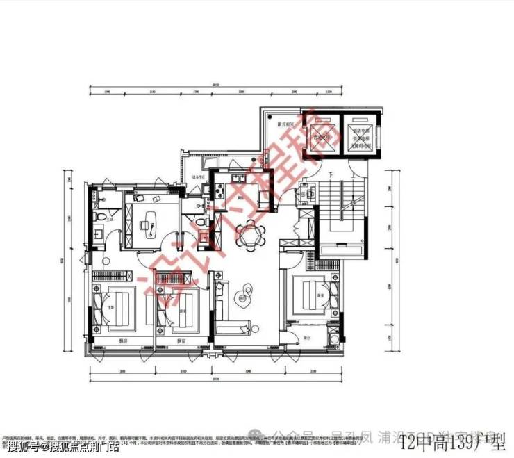
建面约139方户型
装修效果展示空间效果图
建面约139㎡户型,专为进阶家庭定制。横厅设计+洄游式餐厨,宴请宾客时,厨艺与社交互不干扰;多孩家庭或三代同堂,也能通过灵活空间划分,保障每个人的隐私与自在。
精装细节藏着“小心机”:从墙面材质的温润触感,到灯光层次的氛围感营造,再到收纳系统的精准规划,每一处都在说“生活值得被认真对待” 。
建面约169方户型
装修效果展示空间效果图
建面约169㎡户型,是对“高端改善”的深度诠释。奢阔大平层格局,客厅与餐厅形成“超级互动场”,既能容纳家族聚会的热闹,也能留白独处的静谧。
主卧总统套房级配置,独立书房、衣帽间、卫浴一应俱全,如同私属“生活绿洲”;定制化精装美学,从石材的选择到软装的搭配,都在传递“塔尖生活”的质感与格调。
在春来晴翠园的户型里,看到的不止是空间,更是“生活的多种可能”——无论是年轻家庭的成长轨迹,还是塔尖人群的高阶需求,都能在这里找到“对味”的答案。
声明:本文由入驻焦点开放平台的作者撰写,除焦点官方账号外,观点仅代表作者本人,不代表焦点立场。


