同年,金沙湖一期低调开放,以金沙湖为中心,一幅融合了“产、城、人”于一体的美丽画卷,在杭州东部的“城市之眼”徐徐展开。商业方面:项目周边三大商业环伺,距离金沙天街直线距离约500米,印象城、银泰百货等直线距离…
融创杭臻源
【售楼中心电话】
咨询热线:400-080-0105转333
线上优惠团购网站,享免费专车接送看房
售楼部已开放 提前预约看房
金沙湖实景

经过15年的时间淬炼,如今的金沙湖已经从曾经的一片滩涂,华丽转身成为一座开放大气的都会摩登湖区CBD。每当夜晚,华灯初上,金沙湖CBD的璀璨灯光,构筑金沙湖繁华CBD的繁华夜景。
金沙湖,已成为名副其实的杭州东“城市封面”。
2008年,金沙湖的概念被提出,按照规划,将打造以人工湖为核心的杭州东部CBD,金沙湖的宏伟蓝图首次呈现。这也是杭州城市东扩的重要一步。
2010年5月,金沙湖的第一铲土被挖起,一座新城的“心脏”塑造正式进入了实质性的建设阶段。
杭州东部的“金沙湖”时代自此拉开了序幕。
金沙湖实景

金沙湖正式开挖后,仅仅过了两年,杭州地铁1号线开通,金沙湖率先进入了地铁时代。
2013年,德胜快速路落成,打通了城市东西向通道,实现了板块间的无缝连接。
同年,金沙湖一期低调开放,以金沙湖为中心,一幅融合了“产、城、人”于一体的美丽画卷,在杭州东部的“城市之眼”徐徐展开。
金沙天街实景

2015年,龙湖金沙天街盛大开业,金沙湖的“城芯”姿态开始树立了起来。
2016年,下沙银泰百货,金沙印象城相继在金沙湖畔涌现,中心生活气象初现。
2020年,金沙湖二期、三期完工,一湖清澈的湖水,金色的沙滩,成排的棕榈树,灿烂的阳光,“杭州小三亚”不仅成为下沙城市生活的目的地,也成为了整个城东的生活中心。
金沙湖畔实景

2021年9月1日,钱塘科学城管理办公室揭牌于金沙湖畔,意味着人才、科研、产业的联动,将是未来钱塘区的发展方向,而金沙湖,作为下沙核芯的地位也再一次被明确。
2022年,金沙湖也是亚运光环下的主场之一,亚运将赋予金沙湖更完善的城市配套。中央下沉广场、环湖慢跑道等功能配套也将全面开放。
金沙湖实景

十五年时间的沉淀,金沙湖从一纸蓝图到杭州东部的“城市封面”,以湖为中心的重磅级CBD在杭州城东盎然绽放。
一座金沙湖,串起了产业、生活与生态都会新城,这里呈现的是极具国际视野的杭州东部“国际范”城市客厅。
如今,历时15年,呈现在我们眼前的是一个集行政、商务、居住于一体的金沙湖CBD,承接西湖的湖滨气质,展现出一幅国际化的都会画卷,当初的规划蓝图已经实景兑现。
金沙湖实景

沿金沙湖畔,希尔顿嘉悦里,希尔顿逸林等星级酒店一字排开,东部国际商务中心,湖畔中心,望钱塘印中心(在建)等甲级写字楼,澎湃着城市向上生长的进取心。
以金沙湖为中心的“黄金一公里”内,布局了银泰百货,印象城、金沙天街,吾角天街(在建)等商业体环伺。
沿着金沙湖,总建面约4.4万方的金沙湖大剧院(在建),预计今年将投入使用,品味国际化的生活氛围。
在建中的金沙湖大剧院

下沙行政服务中心、文化中心等城市配套,让金沙湖承载了更多的城市潜能。
然而在金沙湖这片蓬勃向上的热土之上,土地资源却越来越稀缺,尤其是环湖的“黄金一公里内”,更是站在了板块的价值高点。
善于创造品质标杆的融创,见证了金沙湖的生长。
杭臻源(筑)区位示意图

自望金沙(筑)之后,融创携手金昌启亚,再造全新湖滨新奢臻品——杭臻源(筑),共鸣钱塘势能,共创理想人居。
落位人文与繁华相融的湖滨主场,杭臻源(筑),为适配板块的高阶需求,融创打造了以高级灰为主基调的现代风格建筑。
项目共规划了7栋高层,6栋可售住宅,规划户型建面约为105-142㎡,满足不同家庭结构的购房需求。
杭臻源(筑)效果图

园区内,占地约1000㎡的中心花园,多龄段儿童乐园,营造出全生命周期场景,打造令人向往的湖滨品质新奢生活。
步出杭臻源(筑),多维立体的交通,拉近了与杭州多核中心的距离。
项目直距地铁1号线下沙西站仅约400米,步行可达。此外,“两横一纵”快速路网,畅达武林商圈、奥体中心和钱江新城。
杭臻源(筑)区位示意图

杭臻源(筑)咫尺金沙湖,双天街、印象城、银泰四大商业体环伺,出则繁华,尽享都会璀璨盛景。
遗憾的是,经过15年急速向上迸发的金沙湖,新房供应却告急,杭臻源(筑)便成了金沙湖“黄金一公里”内目前唯一在售的新房。
杭臻源(筑)效果图

摊开杭州的楼市地图,限价37500元/㎡,却占据稀缺城市湖区,并且醇熟高阶配套已经实景兑现,放眼整个杭州,仅此杭臻源(筑)。
金沙湖实景图

以国际湖滨为主场,望见更美好的都会生活场景。
金沙湖板块唯一在售住宅,主城湖滨臻品,尚有少量房源,欲购从速!
户型方面:
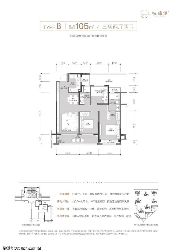
(建面约105方户型图示意)

该户型为项目的三房起步户型,建面约105方,为三房两厅两卫的设计。
在各个主功能间都相当阔绰的基础上,还别出心裁的把厨房做透明的设计。
这样一来厨房就成为了餐客厅的延伸区。家长在厨房烹饪的同时,也可以观察到孩子的学习情况,增加互动交流。或者是亲朋好友来访时,不会出现主人、客人各顾各的情况。
(建面约128方户型图示意)

该户型为项目的四房起步户型,建面约128方,为四房两厅两卫的设计。
餐客厅一体带飘窗,非常通透大气,还有U型厨房,空间利用率相当高。主卧也是套房设计,足够放置一张大床+2个床头柜,还带衣帽区和独立的卫生间,舒适性和隐私性都较强,整体可圈可点。
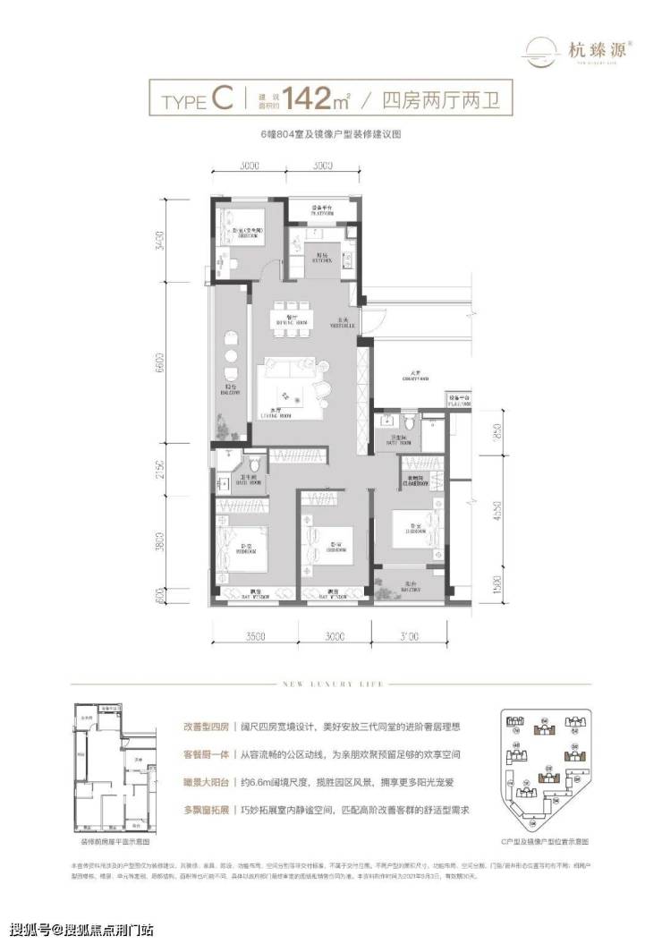
(建面约142方户型图示意)

该户型为项目的最大改善户型,建面约142方,为四房两厅两卫的设计。这个户型和128方户型布局比较相似,但是升级成了双阳台,如此一来无论是洗衣晾晒又或是种点花花草草就都能容纳。
周边配套介绍
银泰、天街等环伺
另外,作为率先发展的主城区,无疑是更加繁华且完善的,不管是规划的高度,还是现有配套的成熟度,这点对于融创杭臻源所在的金沙湖板块来说,尤为明显。
从融创杭臻源出发,步行约400m就能到达地铁1号线下沙西站,是真正的地铁房。
(一般来说,只要地铁距离在1.2km以内的房源,都可以被称之为地铁房,但是等到你真的使用的时候,1.2km和400m,差别还是相当大的,至少可以多了约10分钟的洗漱时间)
通过该条地铁线路,6 站可达杭州火车东站,1 站可达九堡客运中心站、9 站可达萧山国际机场,未来出差旅行无论是去火车站、汽车站、机场都十分便捷。
(项目鸟瞰图示意)

另有德胜快速路直线距离约600米左右,驾车往来城西,非常方便。还有钱塘快速路、东湖快速路等黄金大动脉,便捷全城。
商业方面:项目周边三大商业环伺,距离金沙天街直线距离约500米,印象城、银泰百货等直线距离约2公里内,另有泰美国际、东部国际商务中心等,整体商业氛围浓厚,和闺蜜约个下午茶,她刚刚打上车的功夫,你已经走到了。
(龙湖金沙天街实景图示意)

教育方面:距离幸福河幼儿园以及幸福河小学直线距离约400米,另有下沙实验幼儿园、文海教育集团学林小学、景苑中学等都在侧。
其它方面:距离邵逸夫医院直线距离约1.4公里,该医院作为公立三甲医院,实力雄厚,为周边居民生命健康安全,保驾护航。
另距离金沙湖公园直线距离约600m。金沙湖是目前杭州最大的人工湖,被誉为杭州东部的“城市之眼”,内部规划了特色樱花大道、主题乐园、大剧院等,预计于2021年年底完工,也就是说本项目业主入住时,前面的金沙湖公园早已经建成使用。
融创杭臻源

融创杭臻源
【售楼中心电话】
咨询热线:400-080-0105转333
线上优惠团购网站,享免费专车接送看房
售楼部已开放 提前预约看房