金地·丹青隐庐(售楼处)首页 - 金地·丹青隐庐销售中心 - 环境 - 户型 - 价格 - 地址 - 楼盘详情 - 配套 -电话-金地·丹青隐庐-售楼处- 电话 - 交房时间
扫描到手机,新闻随时看
扫一扫,用手机看文章
更加方便分享给朋友
建筑美学,向来不是一成不变的,过往的中式符号多以白墙黛瓦为主,而随着产品的迭代与审美的进阶,庄重典雅的东方韵味不再是唯一追求,设计希望在现代性与中国性的交织中思辨和演进关于文化的传承。
欢迎拨打售楼处电话:400-018-7969转444(有专业顾问为您一对一讲解)
金地丹青隐庐位于杭州临平区,杭州作为宋文化的巅峰绽放之地,将自身的地域特征投射于建筑实践之中,在风格层面探索传统宋韵的意象意境与现代生活场景之间的对话关系则显得尤为重要。
细处着笔时,设计从宋韵、人文、精工、自然几个关键词切入,通过融汇东方美学、现代手法,以“高技派宋风+酒店化+几何构成+立体游园”的方式呈现金地迭代产品的独特气质。
欢迎拨打售楼处电话:400-018-7969转444(有专业顾问为您一对一讲解)
『非对称入口布局与迂回抵达路径,消解传统礼制的对称性,以延迟视觉抵达与感官积累重构空间叙事,塑造隐匿于市的当代仪式体验。』
欢迎拨打售楼处电话:400-018-7969转444(有专业顾问为您一对一讲解)
项目场地形状相对规整,周边住区环绕,东来阁、九曲营巷、桂芳桥所凝成的烟火与底蕴相互交织,再叠加1.05低容积率、15538㎡用地面积的控制指标,都为设计预留了较大的发挥空间。
在对场地和周边进行踏勘后,设计倾向于构建一种向外的昭示门庭、向内的庭园体系,从而使各种场景层层叠进式展开,给人以意境无穷的观感体验。
欢迎拨打售楼处电话:400-018-7969转444(有专业顾问为您一对一讲解)
在鸟瞰视野下,主入口刻意退离城市干道,以“大隐于市”为策略,规避喧嚣,塑造藏匿感。通过设置宽约60米的横向界面,强化视觉识别性与礼制秩序。
为打破连续界面的单调,植入非对称景墙与迂回路径,延缓行进节奏,重构心理仪式维度。
欢迎拨打售楼处电话:400-018-7969转444(有专业顾问为您一对一讲解)
台基高度经精确控制,并融汇山石、流水、青松等元素,以现代笔法勾勒出一幅可游可感的“实景山水”,完成“实—虚—实”的空间转换,引导人在此停顿、观想。
欢迎拨打售楼处电话:400-018-7969转444(有专业顾问为您一对一讲解)
建筑以宋风为底,其“人字坡”屋顶的形态灵感源自杭州延绵起伏的山峦与宋代建筑飞檐的飘逸意象。屋面举折平缓,出檐深远,悬浮于基座之上,强化了宋式建筑简洁而庄重的美学特征。脊顶铺设260片定制的曜变天目蓝釉瓦,形成富有韵律的视觉秩序。欢迎拨打售楼处电话:400-018-7969转444(有专业顾问为您一对一讲解)
入口通过三层台阶引导,透光玉石墙面衔接内外,营造递进的空间层次。其深处设“檐下场域”,融礼仪、艺术与精神体验于一体,成为整体空间的核心。屋面断开处嵌入天窗,引入自然光影,塑造静观冥想的氛围。“窗”作为视觉媒介,重构了风景的观看经验,使此处成为归家途中净心忘我的精神场所。
欢迎拨打售楼处电话:400-018-7969转444(有专业顾问为您一对一讲解)

△传统坡屋面现代演绎 欢迎拨打售楼处电话:400-018-7969转444(有专业顾问为您一对一讲解)
欢迎拨打售楼处电话:400-018-7969转444(有专业顾问为您一对一讲解)
『立体下沉庭院以垂直维度突破二维庭院的局限,强化了行进中视点的更迭与景深变换。大尺度景观窗精准框景远山,结合层叠的高差操作,塑造空间的仪式性与自然张力。亭的设置以仰视视角重构主峰山势,赋予庭园以山岳意象的崇高性。』
游步穿廊,立体庭院在眼前豁然呈现。由于总图排布限制,庭院空间整体尺度较为紧凑,设计的核心议题在于如何在有限空间内,营造丰富而有层次的宋韵园林体验。
欢迎拨打售楼处电话:400-018-7969转444(有专业顾问为您一对一讲解)
为此,立体庭院布局以中央水体为核心,建筑体量环抱形成向心秩序,有效强化了场域的凝聚力。游步穿行间,巨幅玻璃借现代框景手法,将外部景致抽象为动态立轴,通过尺度对比与光线渗透构建多重叙事。这一策略延续了宋式园林注重精神性与自然交流的美学,在狭小用地中拓展出幽深静谧、虚实相生的意境体验。
△立体庭院剖面图 欢迎拨打售楼处电话:400-018-7969转444(有专业顾问为您一对一讲解)
欢迎拨打售楼处电话:400-018-7969转444(有专业顾问为您一对一讲解)
欢迎拨打售楼处电话:400-018-7969转444(有专业顾问为您一对一讲解)
为了呈现更自然的山水逸趣,设计通过高度与层级的差异化操作,优化空间视觉序列,使观者在行进中经历俯视、仰望、远眺及非线性透视等多维感知交互,构建具有流动性的体验结构。该布局不仅演绎了“与谁同坐,明月清风我”的宋韵意境,更逐步展开以登山、探园、观水为核心的多重叙事性游赏场景。
欢迎拨打售楼处电话:400-018-7969转444(有专业顾问为您一对一讲解)
欢迎拨打售楼处电话:400-018-7969转444(有专业顾问为您一对一讲解)
迂回的路径引导视线,营造重峦叠嶂般的层次纵深,增强空间神秘感。多重标高构建复合场景,亦亭亦榭,形成多样化的视觉序列。
欢迎拨打售楼处电话:400-018-7969转444(有专业顾问为您一对一讲解)
整体而言,设计期望营造一种“可以让人进入的空间”,叠石、静水、亭台乃至由下及上的院墅,以一种画作散点透视的手法,逐层铺展出前景至远景的画面层次。
这不仅在尺度上形成了画意与空间的第二步转换,更让人产生置身于一幅可游可观的山水画卷中之感。
欢迎拨打售楼处电话:400-018-7969转444(有专业顾问为您一对一讲解)
立于空间中轴最高处的亭台,四面通透,此处乃是最佳观景点,也是整个庭院空间的焦点。焚香品茗、点茶问道、观云翻卷、坐石临流,与清风同在,将看景的易逝感,转化居于自然的常态。
欢迎拨打售楼处电话:400-018-7969转444(有专业顾问为您一对一讲解)
欢迎拨打售楼处电话:400-018-7969转444(有专业顾问为您一对一讲解)
△轴测图 欢迎拨打售楼处电话:400-018-7969转444(有专业顾问为您一对一讲解)
层层叠叠向上攀升的石阶,形状不一,水在其间流淌、跌落,形成的不同的音律,尽得“曲水流觞”之意。端坐于室内,从“玻璃光盒”内回望水院全景,大面积横向玻璃窗构成巨幅取景框,将这庭院裁剪成一幅幅的山水画面:山林、石阶、亭榭、石花,景色各异。
欢迎拨打售楼处电话:400-018-7969转444(有专业顾问为您一对一讲解)
『提炼宋代天青色美学基因,重新演绎简约素朴的东方文化内涵,并以宋徽宗“瘦金体”为灵感,勾勒建筑立面及顶部的极简特征,尽显当代宋风的神妙之笔。』
欢迎拨打售楼处电话:400-018-7969转444(有专业顾问为您一对一讲解)
梁思成说:“中国的建筑是一种高度‘有机’的结构,孕育并发祥于遥远的史前时期;‘发育’于汉代;成熟并逞其豪劲于唐代;臻于完美醇和于宋代”。
作为新一代“原创新宋合院”,设计从宋官窑青瓷、宋代书法中抽取设计灵感,以“简、劲、雅”作为核心立面设计逻辑,通过对宋式建筑中的“屏、柱、脊、檐、墙”加以提炼转译,形成独特的“高技派”宋韵风格。
欢迎拨打售楼处电话:400-018-7969转444(有专业顾问为您一对一讲解)
为表达宋风传统气韵,设计对宋代建筑的溯源上有着严谨的形制转译,保留了传统宋风建筑的构造体系。檐下障日、鸱尾、鱼鳞瓦、引檐板、挂落、横杆寻杖、雁翅栏板、平座层、燕尾榫无一不是转译传统东方建筑元素,至素至简,材质古朴自然。欢迎拨打售楼处电话:400-018-7969转444(有专业顾问为您一对一讲解)
屋顶保留了歇山顶的基本形态,在保持符号可读性的同时化繁为简,尝试用现代建筑语言为其做减法。
欢迎拨打售楼处电话:400-018-7969转444(有专业顾问为您一对一讲解)
屋脊设计取消了传统的戗角装饰和鸱吻符号,均以现代语言及材料进行表达,屋面曲线减缓了宋代的举折坡度,使得屋面整体显得更为轻薄、现代。
欢迎拨打官方售楼处电话:400-018-7969转666(有专业顾问为您一对一讲解)
平坐层在宋代制式的建筑中,功能类似眺望的平台,在本次设计中均作提炼保留,但以轻盈的玻璃取代传统木质雁翅栏。檐口做线脚向外延深,檐下空间更为深远,以便承接日后的生活、瞰景等使用功能,也是有效的抗震结构。
檐口部位对传统“版引檐”进行现代转译,檐下为模仿椽子形式的单元化金属格栅,工业化生产的构件极为纤细且经久耐用。欢迎拨打售楼处电话:400-018-7969转444(有专业顾问为您一对一讲解)
欢迎拨打售楼处电话:400-018-7969转444(有专业顾问为您一对一讲解)
同时,设计舍弃了中式建筑中大量使用的小青瓦铺面,选用现代简约的深灰色陶瓦/金属瓦,保证了建筑整体纯正、精致、轻盈的宋风韵味。
欢迎拨打售楼处电话:400-018-7969转444(有专业顾问为您一对一讲解)
整体来看,造型水平延展、挺拔轻盈,展现出兼具典雅与克制的极简表达,塑造出庄重而富有内在修养的建筑范式,其气质随时间沉淀愈显高贵。
欢迎拨打售楼处电话:400-018-7969转444(有专业顾问为您一对一讲解)
欢迎拨打售楼处电话:400-018-7969转444(有专业顾问为您一对一讲解)
色彩样本的选取构建了一个跨越官式与民间、器物与艺术的叙事网络:《千里江山图》的群青、天坛与京杭大运河博物馆的琉璃瓦/屋檐、胡雪岩故居西洋彩色玻璃等关键国色、宋色,成为跨地域、跨时代的色彩谱系数据库。
设计最具突破性的转译,在于将宋代耀变天目盏中“窑变”所蕴含的偶然性与诗意,转化为定制陶板立面的“耀变天目蓝”。欢迎拨打售楼处电话:400-018-7969转444(有专业顾问为您一对一讲解)
设计通过这套色彩叙事系统,将抽象的文化意蕴转化为可感知的空间体验,使建筑成为承载持续演进的人居精神坐标。
欢迎拨打售楼处电话:400-018-7969转444(有专业顾问为您一对一讲解)
宋画强调形神兼备,推崇返璞归真的自然之感,认同“大道至简”的简约之道。设计在继承传统宋画鹤灰、玄天、茶白的美学基础上,寻求当代之风的突破。
以宋色系的“黑白灰”作为气蕴基地,屋顶用浓黑色、山墙用深褐色、墙体以白世贸&白玫瑰石材构写留白,落笔轻重浓淡之间又不失生动活脱。欢迎拨打售楼处电话:400-018-7969转444(有专业顾问为您一对一讲解)
欢迎拨打售楼处电话:400-018-7969转444(有专业顾问为您一对一讲解)
穿过坊巷,映入眼帘的是高大的门头,古铜金大门尽显沉稳厚重,处处彰显着归家的气派与尊荣。缓步入内,设计采用“外古内新”的手法围合出院落,首层客厅直面庭院风光,室内室外形成有效互动。
欢迎拨打售楼处电话:400-018-7969转444(有专业顾问为您一对一讲解)
门楣拉手甄选了御制景泰蓝,不同材质的巧妙搭配,夺目却不失低调奢华,平添一丝独属于东方的优雅气韵。
通过竖向的天光井规避阴暗、潮湿的弊端;而上层的休憩场所多展示出安静沉稳的空间情绪,强化了生活体验的深度。整体来看,设计不执着于恢弘空阔,空间温柔中不乏刚劲,注重精神表达,而这正是宋人返璞归真的生活续写。
欢迎拨打售楼处电话:400-018-7969转444(有专业顾问为您一对一讲解)
金地丹青隐庐的设计实践以回归“中国性”为叙事内核,超越传统符号的浅表移植,通过对宋代空间的当代“高技派”呈现,重构了属于中国的现代建筑语言。
欢迎拨打售楼处电话:400-018-7969转444(有专业顾问为您一对一讲解)
无论是以迂回动线、框景手法和立体园林重塑东方空间仪式,还是用材料质控与光学隐喻传承“天青”色彩哲学,其价值在于将“中国性”转化为可感知的空间内容,为现代性与文化身份的和解提供了重要范本。
欢迎拨打售楼处电话:400-018-7969转444(有专业顾问为您一对一讲解)△展示中心入口立面图一
欢迎拨打售楼处电话:400-018-7969转444(有专业顾问为您一对一讲解)△展示中心入口立面图二
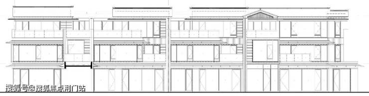
欢迎拨打售楼处电话:400-018-7969转444(有专业顾问为您一对一讲解)△主楼立面图一
欢迎拨打售楼处电话:400-018-7969转444(有专业顾问为您一对一讲解)△主楼立面图二
△主楼立面图三
【免责声明】
本搜狐号旨在与志同道合的同行交流、传递信息,为非营利性的知识分享,所刊载的所有文章内容,仅供参考使用,不构成任何专业意见或建议。阅读者在使用本搜狐号所提供的信息时,应谨慎对待并自行判断其适用性。
1.文章内容来源:本搜狐号所发布的文章,除非特别注明,大部分来自于作者的独立观点和经验分享,也可能引用自各种权威媒体、互联网资讯、书籍及其他公开渠道。对于这些内容的准确性和完整性,本搜狐号不作任何明示或暗示的保证。
2.素材使用:本搜狐号所引用的文章,已经注明来源和作者,因非全文引用,仅仅为作者为交流信息而做的提炼和总结,请求各种“互联网侵权”法律从业者放过,文章为交流信息而使用图片、视频、音频等多媒体素材,这些素材均来源于网络,其版权归原作者所有。如若侵犯了您的权益,请联系我们(18217267293),我们将及时予以更正或删除。
3.知识产权:本搜狐号的原创文章,版权归文章的作者所有。未经许可,任何个人或组织不得擅自转载、复制或用于商业用途。
4.外部链接:本搜狐号可能包含指向第三方网站的链接,这些链接仅为方便读者提供更多信息而设置。对于这些第三方网站的内容和隐私政策,本搜狐号不负任何责任。
5.合法免责:在任何情况下,对于因使用或依赖本搜狐号所提供的信息而造成的任何直接或间接损失,本搜狐号不承担责任。
6.内容变更:本搜狐号保留随时更改或删除任何文章内容的权利,恕不另行通知。
7.建议阅读:我们建议读者在遇到相关问题时,寻求专业人士的意见和帮助,以获取更加全面和可靠的信息。感谢您阅读我们的免责声明,继续关注我们的搜狐号,获取更多有价值的内容和信息。
声明:本文由入驻焦点开放平台的作者撰写,除焦点官方账号外,观点仅代表作者本人,不代表焦点立场。


