杭州滨江兴耀松川境 售楼处电话-杭州滨江兴耀松川境 杭州萧山奥体核心区·兴耀·松川境)最新网站-兴耀·松川境楼盘详情-户型-价格‖兴耀·松川境

搜狐焦点荆门站 2026-04-12 16:01:00
用手机看
扫描到手机,新闻随时看

扫一扫,用手机看文章
更加方便分享给朋友

还有主卧超大衣帽间、主卫双台盆+大浴缸,这种在别的项目吹上天的配置,在松川境属于基操了。所以,无论是松川境刚推出的最后一批高层,还是待字闺中的这批奥体排屋,它们都有一个共同点是:超级浓烈的获得感。本搜狐号旨在…

滨江兴耀·松川境-全城热销中

如果你有心关注这个项目 或是有想要上车的想法

欢迎拨打售楼处电话:400-018-7969 转 222(有专业顾问为您一对一讲解)

凝聚奥体顶尖豪宅业主圈层,于独立开阔地块,

融汇「廊、巷、亭、会所」等完整排屋形制,

呈现罕见纯正墅居生活。

项目高层全部房源已经推出,169-199方少量房源线下热销中,均价约4玩万+/平!

滨江兴耀·松川境-全城热销中

如果你有心关注这个项目 或是有想要上车的想法

欢迎拨打售楼处电话:400-018-7969 转 222(有专业顾问为您一对一讲解)

开 发 商 滨江,奥体南,总 户 数高层190套、排屋42套,容 积 率1.8,高层17F、

排屋4F,面积高层169-199方,惊爆均价4.6万/平,总价750万起。排屋300-340方,均价9万,

下沉会所恒温泳池、健身房、私宴厅、瑜伽室等等,滨江物业,高层4.8元(含能耗)得房率约90%-93%!

类一梯一户的神户型+顶配装标

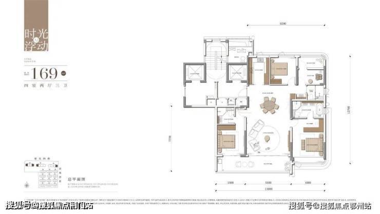
首先从户型设计来说: 项目最显著亮点在于其超高的 空间利用率。

计容新规结合大面积赠送空间,赋予了户型设计极大的灵活性,使得高层产品使用率最高可达惊人的 93%。

具体而言,松川境建面约169方的户型:北阳台内包,飘窗不计面积,空间利用率远超同类产品。对购房者而言,则意味着显著的性价比优势,相当于节省了约一个房间的成本。

滨江兴耀·松川境-全城热销中

如果你有心关注这个项目 或是有想要上车的想法

欢迎拨打售楼处电话:400-018-7969 转 222(有专业顾问为您一对一讲解)

(建面约169方户型图)

还有主卧超大衣帽间、主卫双台盆+大浴缸,这种在别的项目吹上天的配置,在松川境属于基操了。它的优势早已领先在下一个维度:

各个功能间尺度的全面升级。仅169方就做到了 南向面宽约13米,双联的超宽阳台进深约2米......的超级尺度。

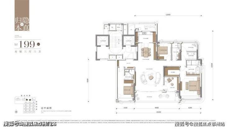
建面约199方户型:小胖在看到这个户型时,更是可以用激动来形容。

滨江兴耀·松川境-全城热销中

如果你有心关注这个项目 或是有想要上车的想法

欢迎拨打售楼处电话:400-018-7969 转 222(有专业顾问为您一对一讲解)

(建面约199方户型图)

它把199方的面积,做出了 至少约230方的既视感 ,吊打市面同等面积户型。

同时,在功能打造上,无论是公区的气派程度还是未来家庭每一位成员的居住舒适度,都被完美融合在这个户型里。

5房 灵动布局(最小的房间都有近10个平方),客餐厅近50平。还是 约16.5米南向四开间 的设计,光客厅就有约5.8米,可谓逆天。

双南向主卧 ,兼容更多不同居住人群需求,无论是老人同住还是二胎家庭,每位家人都能有舒适的居住体验。

不出意外,这应该是目前市面上瞰景能级+实用率最高的五房产品了。

另外,还有一个惊喜:类一梯一户设计,带来每一套房子门口都有一个独立电梯厅。

而且这块区域的面积不小,最少也有约6个平方左右,出入更具尊贵感、私密感。

其次从装修用材来说:从门口进来满眼皆是奢石,大面积的奢石背景墙 凸显空间高级感; 双卧室硬包背景+造型天花吊顶 ,让每个功能空间都兼具设计感与氛围感;

滨江兴耀·松川境-全城热销中

如果你有心关注这个项目 或是有想要上车的想法

欢迎拨打售楼处电话:400-018-7969 转 222(有专业顾问为您一对一讲解)

(建面约169方展示样板间实景图)

滨江兴耀·松川境-全城热销中

如果你有心关注这个项目 或是有想要上车的想法

欢迎拨打售楼处电话:400-018-7969 转 222(有专业顾问为您一对一讲解)

(建面约169方展示样板间实景图)

博世五件套、其中冰箱是博世8系最高顶配,全嵌入式、全进口的。还有方太万元侧吸油烟机,爆炒辣椒也不用担心跑烟。空调、厨余处理器、净水器等,也都包在交付标准内;卫生间:镜柜配置美妆冰箱,守护主人高端的护肤美容产品;

滨江兴耀·松川境-全城热销中

如果你有心关注这个项目 或是有想要上车的想法

欢迎拨打售楼处电话:400-018-7969 转 222(有专业顾问为您一对一讲解)

滨江兴耀·松川境-全城热销中

如果你有心关注这个项目 或是有想要上车的想法

欢迎拨打售楼处电话:400-018-7969 转 222(有专业顾问为您一对一讲解)

晨起,披着薄雾走上巨幕阳台,视线越过渐次醒来的大都会,远处,奥体地标杭州之门在氤氲的晨曦中静静伫立,如同一本在天地间缓缓打开的巨著。

一句语音指令,主卧和客餐厅的窗帘应声而开,如同舞台的幕布缓缓升起,在温柔的晨光里,喝一杯手冲咖啡,在慵懒的氛围中开启一整天。

滨江兴耀·松川境-全城热销中

如果你有心关注这个项目 或是有想要上车的想法

欢迎拨打售楼处电话:400-018-7969 转 222(有专业顾问为您一对一讲解)

△ 松川境 样板间实景图,具体以实际交付为准

下楼到 「松氧馆」 健身房慢跑,透过270°全景玻璃幕,心赏 「澜庭」 下沉式庭院,约7米高溪山流瀑,5棵黑松高低错落,勾画出艺术馆般的静逸场域。松风水雾间,运动不再是「面壁思过」,在沉寂中厘清思绪,迸发万千灵感火花,每一次吐纳都是无尽疗愈。

滨江兴耀·松川境-全城热销中

如果你有心关注这个项目 或是有想要上车的想法

欢迎拨打售楼处电话:400-018-7969 转 222(有专业顾问为您一对一讲解)

△ 松川境项目实景图

林木掩映的 「松涧天光」 恒温泳池,约30-32℃四季恒享,纵身跃入约8米x20米的碧波,亦或于池畔躺椅小憩,看天光云影共舞,在自然诗意中躺平。

△ 松川境会所实景图

滨江兴耀·松川境

「阅松下」 书吧择一临窗位落座,书架上的佩索阿诗集,标记着阅读者的沉思瞬间,目光所及是潋滟水色,刹那间穿越虹夕诺雅度假圣境。

滨江兴耀·松川境-全城热销中

如果你有心关注这个项目 或是有想要上车的想法

欢迎拨打售楼处电话:400-018-7969 转 222(有专业顾问为您一对一讲解)

墅境住区

轻轻的一句「我住奥体」,已经让人羡慕;如果再来一句 「我在奥体住排屋」 ,那就有点太霸气外露了。

在摩天大楼林立、不得不向天空要居住权的奥体,有天有地有院子的生活是奢侈的。在奥体拥有一套有天有地, 没有值不值得的问题,只有实力允许不允许的问题

所以,无论是松川境刚推出的最后一批高层,还是待字闺中的这批奥体排屋,它们都有一个共同点是: 超级浓烈的获得感

)滨江兴耀·松川境-全城热销中

如果你有心关注这个项目 或是有想要上车的想法

欢迎拨打售楼处电话:400-018-7969 转 222(有专业顾问为您一对一讲解)

联排立面通过“虚实对比”,实体墙部分采用仿砖涂料,虚体部分为玻璃幕墙,既保证私密性又提升通透感。联排产品采用“双坡屋顶+金属格栅”设计,屋顶坡度模拟江南传统民居,格栅则过滤强光,形成斑驳的光影效果。

滨江兴耀·松川境-全城热销中

如果你有心关注这个项目 或是有想要上车的想法

欢迎拨打售楼处电话:400-018-7969 转 222(有专业顾问为您一对一讲解)

王炸户型均涉及

本搜狐号旨在与志同道合的同行交流、传递信息,为非营利性的知识分享,所刊载的所有文章内容,仅供参考使用,不构成任何专业意见或建议。阅读者在使用本搜狐号所提供的信息时,应谨慎对待并自行判断其适用性。

1.文章内容来源:本搜狐号所发布的文章,除非特别注明,大部分来自于作者的独立观点和经验分享,也可能引用自各种权威媒体、互联网资讯、书籍及其他公开渠道。对于这些内容的准确性和完整性,本搜狐号不作任何明示或暗示的保证。

2.素材使用:本搜狐号所引用的文章,已经注明来源和作者,因非全文引用,仅仅为作者为交流信息而做的提炼和总结,请求各种“互联网侵权”法律从业者放过,文章为交流信息而使用图片、视频、音频等多媒体素材,这些素材均来源于网络,其版权归原作者所有。如若侵犯了您的权益,请联系我们(18217267293),我们将及时予以更正或删除。

3.知识产权:本搜狐号的原创文章,版权归文章的作者所有。未经许可,任何个人或组织不得擅自转载、复制或用于商业用途。

4.外部链接:本搜狐号可能包含指向第三方网站的链接,这些链接仅为方便读者提供更多信息而设置。对于这些第三方网站的内容和隐私政策,本搜狐号不负任何责任。

5.合法免责:在任何情况下,对于因使用或依赖本搜狐号所提供的信息而造成的任何直接或间接损失,本搜狐号不承担责任。

6.内容变更:本搜狐号保留随时更改或删除任何文章内容的权利,恕不另行通知。

7.建议阅读:我们建议读者在遇到相关问题时,寻求专业人士的意见和帮助,以获取更加全面和可靠的信息。感谢您阅读我们的免责声明,继续关注我们的搜狐号,获取更多有价值的内容和信息。

声明:本文由入驻焦点开放平台的作者撰写,除焦点官方账号外,观点仅代表作者本人,不代表焦点立场。