越秀运河樾 (售楼处) 官方首页 - 越秀运河樾销售中心 - 环境 - 户型 - 价格 - 地址 - 楼盘详情 - 配套 - 电话 - 交房时间 - 配套 - 电话 - 交房时间
扫描到手机,新闻随时看
扫一扫,用手机看文章
更加方便分享给朋友
编辑
套均2000万的叠墅,首开「日光」、揽金6.9亿,越秀·运河樾以首开即罄的锋芒,在这个冬日里粹炼出了低密市场的现象级热销。
欢迎拨打官方售楼处电话:400-018-7969转666(专业顾问为您一对一讲解)
「一脉桥西运河湾、直线距离运河约200米、双向河景、杭州首座樾系、纯叠墅社区……」,继江南里之后运河边首个纯低密楼盘。

编辑
Part 01
项目规划
项目占地约16537㎡,总建筑面积约52145㎡(其中地上29165㎡,地下22980㎡),容积率1.7。规划通过空间折叠术重构用地效率,在1.7容积率条件下将传统占地的单层物业拆解重组打造98套纯叠墅产品。
欢迎拨打官方售楼处电话:400-018-7969转666(专业顾问为您一对一讲解)
共6幢叠墅,包含上叠、中叠、下叠三类户型。户型设计包含私家庭院、电梯、地下室及露台等附赠空间,较高的空间附赠比例为业主提供个性化改造可能,通过引入自然采光与景观元素,增强室内外空间的关联性。

编辑

编辑
Part 02
建筑设计
项目立面采用东方雅奢风格,以东方气韵和现代雅奢为主旋律,巧妙融合运河文化进行演绎。以官船为原型,结合歇山叠层屋面,轻构瘦金体建筑骨架
欢迎拨打官方售楼处电话:400-018-7969转666(专业顾问为您一对一讲解)
建筑线条概念,以风帆为构件,利用铝板折弯挑檐,横向构造建筑水线,选用石材、铝板、玻璃幕墙、陶板、景泰蓝奢石打造。其中水纹金属格栅、琉璃釉面蓝色陶板与景泰蓝奢石的应用,呼应运河文化主题,实现建筑风格与地域文化的结合。

编辑

编辑
主入口横向延展面达90M,门头采用庑殿形制,以大规格金色金属对称式屋顶,强化归家礼序,立面以透光碧玉奢石呼应“天青”之美,结合星空闪耀的流水景墙,打造“光之水韵”,共同还原古运河形态。

编辑
编辑
运河的江南韵味,凝于江南烟雨中的"天青"与"月白"。设计以透光皇家碧玉奢石映回应天青色,以星辉流动的水景墙描摹水脉,共凝为"光之水韵",让古运河意境于此新生。

编辑
约2000㎡全维会所(含下沉式庭院),为98席业主匠造杭州首个夜光星空泳池,并融汇私宴、健身空间,成就一方圈层主场。

编辑

编辑

编辑

编辑

编辑
运河樾的恒温泳池,也是杭州首个“夜光泳池”,300多方海浪绿石材铺就的池壁及步道,荷叶状拼花的马赛克;
2000多吨原始石材中精选出180块黄锈石老石皮,带来“虽居室内,如在山林”的野趣。

编辑
▲ 地库会所入口实景图

编辑
▲ 地库实景图
编辑
Part 03
景观设计
景观设计以千年运河文化为魂、宋韵山水为骨,打造 “立体山水峡谷园林”。
编辑
编辑
核心围绕 “四处运河之源” 展开:
形态之源——以运河流淌之形贯穿住宅区,同时跌水联通上下三层立体下沉空间,模拟运河自然流势;
意境之源——模拟“宋韵十大雅集”定制十大水岸生活场景,古今生活形成时代对话;
文化之源——融入杭州传统文化于定制铺装、宅印符号等细节处,让运河文化实现生活美学转译的跃迁;
空间之源——借鉴宋画《四景山水图》中的“坊下檐、檐下廊、林中亭、水畔居”等,构建多重江南折叠院落。
编辑
以江南古典园林的设计理念展现“以小见大”的空间层次,转译杭州枕水而居一半烟火,一半诗意的立体宋韵长卷。
编辑
以“引水入园”之法,全维还原“枕水而居”的经典运河场景。一条约145米长的人工溪涧,以石凿岸,从西而东贯通整个园林。
欢迎拨打官方售楼处电话:400-018-7969转666(专业顾问为您一对一讲解)
它曲水流觞,绕园而行,直至落差约12米的三层下沉式庭院,化作层层跌落的瀑布,刚柔并济,气象万千。
编辑
取意于江南水乡的"乌篷船",构建林中水台,仿佛一叶轻舟泊入绿意,形廓清雅,边界消融于自然,围合出开放而沉浸的景观生活场。

编辑

编辑

编辑
Part 04
户型设计
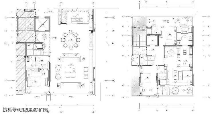
项目主力户型面积段约270~320㎡,包含下叠、中叠、上叠三类产品。
编辑
户型设计包含私家电梯、庭院、空中花园、地下室及露台等功能空间,不同户型的空间附赠比例不同:下叠实得率140%—150%,得院率81%—90%;中叠实得率132%—138%,得院率14%—19%;上叠实得率179%—183%,得院率95%—124%。附赠空间可用于拓展生活场景,增强空间使用的灵活性。
编辑
比如建面约270方的下叠,大客厅大厨房大主卧,每一层的空间都很享受,尤其一楼还连通了近100方的院子,不论是看起来还是用起来,都是大宅的体验。

编辑
▲ 户型① 建面约270㎡户型(下叠)
编辑
下叠的地下空间,可以说是大得一眼看不到头,最高层高有6.1米,甚至可以在家里搞一个私家会所。
欢迎拨打官方售楼处电话:400-018-7969转666(专业顾问为您一对一讲解)
而且不少下叠房源,还连通着园区的下沉式庭院,可以从公区直接就走回下叠地下室,更方便更好用。
编辑
编辑
300方的产品,也有一个约60-120方的地下室,算上北面入户的通道小院,实际得房率也要超过120%。

编辑
▲ 户型② 建面约300㎡户型(中叠)
编辑
编辑
上叠的附加资源同样丰富,做到了南北双露台,顶楼还赠送了一整层露台,有独立的北向入户花园和电梯厅,私梯还直达约60多方的地下室。
编辑
▲ 户型3 建面约320㎡户型(上叠)
编辑
【免责声明】
本搜狐号旨在与志同道合的同行交流、传递信息,为非营利性的知识分享,所刊载的所有文章内容,仅供参考使用,不构成任何专业意见或建议。阅读者在使用本搜狐号所提供的信息时,应谨慎对待并自行判断其适用性。
1.文章内容来源:本搜狐号所发布的文章,除非特别注明,大部分来自于作者的独立观点和经验分享,也可能引用自各种权威媒体、互联网资讯、书籍及其他公开渠道。对于这些内容的准确性和完整性,本搜狐号不作任何明示或暗示的保证。
2.素材使用:本搜狐号所引用的文章,已经注明来源和作者,因非全文引用,仅仅为作者为交流信息而做的提炼和总结,请求各种“互联网侵权”法律从业者放过,文章为交流信息而使用图片、视频、音频等多媒体素材,这些素材均来源于网络,其版权归原作者所有。如若侵犯了您的权益,请联系我们(18217267293),我们将及时予以更正或删除。
3.知识产权:本搜狐号的原创文章,版权归文章的作者所有。未经许可,任何个人或组织不得擅自转载、复制或用于商业用途。
4.外部链接:本搜狐号可能包含指向第三方网站的链接,这些链接仅为方便读者提供更多信息而设置。对于这些第三方网站的内容和隐私政策,本搜狐号不负任何责任。
5.合法免责:在任何情况下,对于因使用或依赖本搜狐号所提供的信息而造成的任何直接或间接损失,本搜狐号不承担责任。
6.内容变更:本搜狐号保留随时更改或删除任何文章内容的权利,恕不另行通知。
7.建议阅读:我们建议读者在遇到相关问题时,寻求专业人士的意见和帮助,以获取更加全面和可靠的信息。感谢您阅读我们的免责声明,继续关注我们的搜狐号,获取更多有价值的内容和信息。
声明:本文由入驻焦点开放平台的作者撰写,除焦点官方账号外,观点仅代表作者本人,不代表焦点立场。


