2025杭州余杭区临平 滨杭滨纷城 (滨杭滨纷城)最新房价-杭州-滨杭滨纷城 售楼处电话 滨杭滨纷城楼盘详情-滨杭滨纷城 售楼处电话-滨杭滨纷城 房价 户型!
扫描到手机,新闻随时看
扫一扫,用手机看文章
更加方便分享给朋友
如需了解最新房源信息_在售房源价格_请拨打上方售楼部电话!
滨杭滨纷城由地面都市活力层、9米街区漫游层、15米云境生活层三大立体空间组成,每个空间都有住宅、商业、公园等配置。目前亮相的是项目1期的地面都市活力层,位于最东面,距离地铁站最近,由15幢高层住宅、约10万平方米商业、邻里中心组成。其中,住宅分为南北两个组团,一共1300余套可售房源。“整个项目共有5000多套房源,不过后续住宅产品规划还没有确定。
滨杭滨纷城位于东湖新城的北部区域,具体位置是在荷禹路与康信路交界处,南面1公里左右就是规划临平北站枢纽。从城东新城出发,开车走同协路-留石高架-望梅高架-秋石高架路,半个小时左右就能到达。如果从临平新城出发的话,只需不到20分钟。
当然,对于滨杭滨纷城的业主们来说,未来还有更便捷的出行方式,那就是地铁。滨杭滨纷城是地铁9号线的车辆段上盖物业,横跨9号线二期在建的康信路站和兴元路站2个站点。等到交付和地铁开通后,从小区地下室就能走到地铁站,搭乘9号线可以直达临平新城、江河汇、钱江新城等核心区域。
【品牌价值】
品质之城——滨江集团&杭铁集团联袂作品
【滨江集团】
千亿房企滨江集团,深耕杭城三十载,秉承“创造生活,建筑家”的专业理念,以“做行业品牌领跑者,产品品质标准制订者”为企业核心战略发展方向。金色海岸、阳光海岸、武林壹号、湘湖壹号等均彰显着滨江集团“杭州华宅教父”的实力。
【杭州地铁集团】
杭州地铁集团是集轨道交通建设、运营、经营、管理、物业开发等业务于一体的综合型国有企业。20年来,杭州地铁以“1+N”的产业发展格局,先后开发了杨柳郡、天空之城等城市更新示范项目,高水平打造“轨道上的杭州”,不断推进城市更新、板块更新、生活更新。
【区域价值】
都会之城——地铁9号线上的城市镜像
滨杭滨纷城示范区实景图
东湖新城中芯区,无缝临平北站综合体(规划)
同步“杭州城东新中心”城市发展战略,坐标临平东湖新城核芯区,西侧及南侧紧邻规划临平北站综合体,未来将与北站协同,作为东湖新城重要配套空间,引领东湖新城核芯区的崛起。
临平北站规划图
地铁9号线车辆段上盖,高速串联钱江新城
横跨地铁9号线兴元路站(在建)、康信路站(在建)两大站点,毗邻临平主轴荷禹路、宁桥大道,快速接驳钱江新城、城东新城、滨江,奢享融入城市核芯的45分钟生活圈。
全维繁华商圈,移步缤纷的都会奢享
坐拥临平万达广场、临平银泰等,项目自带约10万㎡商业配套,奢享都会缤纷。
一站式教育资源,一脉人文的城市书香
配置双幼儿园,签约杭州二中白马湖教育集团临平东湖学校(九年一贯制),呵护未来,成长无忧(学校为政府部门规划及负责引进,我司不承诺学区,具体办学性质、开学时间、规模及学区以政府公布为准)。
杭二中白马湖教育集团效果图
都会公园谧境,栖息身心的城市留白
打造约7万㎡公园,区域荟萃临平山、玉架山考古遗址公园,龙安湖公园、龙安湖体育公园等自然资源,隐逸悠闲。
龙安湖公园实景图
【规划价值】
滨纷之城——约63万方TOD复合生活场
【滨纷感】五大业态交织,复合璀璨的“生活主场”
项目总建面约63万㎡,交融居住、公园、商业、办公、学校5大业态,规划打造公园、商业、邻里中心、双幼儿园、九年一贯制学校等复合内容,联动周边城市资源,构建面向青年的缤纷生活场。
滨杭滨纷城商铺实景图
【立体感】三大标高空间,一层一境的“立体城市”
◎地面都市活力层:规划落位邻里中心商业、约10万方商业及一期住宅组团,以复合场景直链活力城市;
◎9米街区漫游层:落址约2000㎡邻里中心,串联盖上住宅与盖下空间,归家路上的缤纷休闲、消费场;
◎15米云境生活层:滨纷城核心生活场域,以约7万㎡一体化公园为核,分享美好生活。
效果示意图,过程稿,非最终交付标准
【地标感】全维门户创新,衔领时代的“枢纽社区”
◎滨纷之眼:定制主干道,通过道路的抬升与分流让社区车辆直链项目,强化出行效率,开启车辆段上盖归家新模式;
◎层级入口:13个机动车出入口,4个非机动车出入口,5大人行枢纽,更高效更丰富的内外互动;
◎流量广场:于兴元路站(在建)、康信路站(在建)、南侧公园三大节点打造流量广场,以垂直交通核,盛迎不同方向的归来。
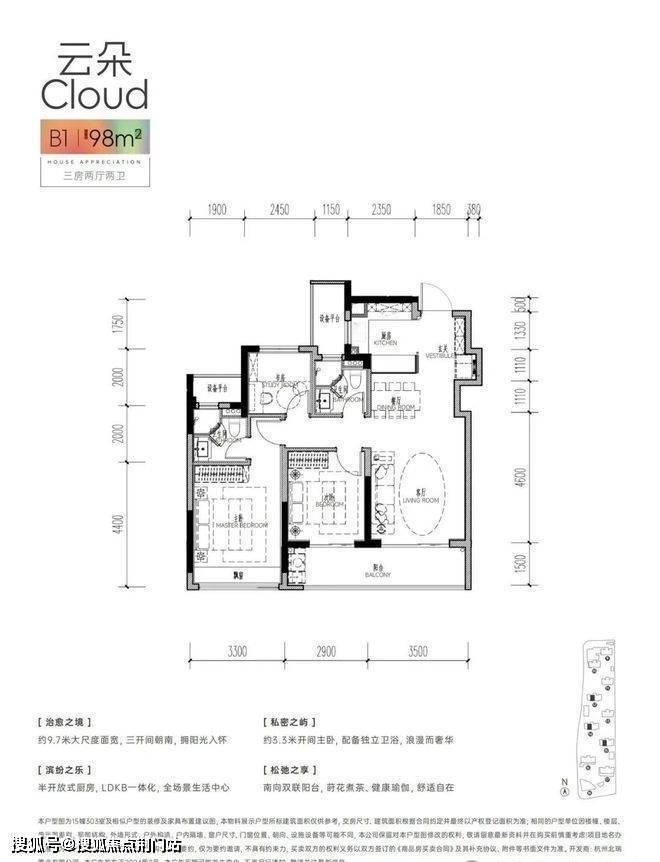
【户型赏析】
声明:本文由入驻焦点开放平台的作者撰写,除焦点官方账号外,观点仅代表作者本人,不代表焦点立场。


