【首页】绿城春来晴翠园(售楼处)首页网站|春来晴翠园|售楼中心春来晴翠园-楼盘详情
扫描到手机,新闻随时看
扫一扫,用手机看文章
更加方便分享给朋友
拿地2025年4月22日,公示2025年5月26日。
从拿地到公示,34天。
R009批次两宗地块,选择了同一天公示。
杭州市场上最强大的两家开发商,以这种形式相互致敬。
规划条件:
零磁谷街与浦沿路交叉口东南侧。

绿城春来晴翠园-全城热销中 欢迎拨打售楼处电话:400-018-7969转333(有专业顾问为您一对一讲解)
土地面积60421平米,地上建筑面积70423.1平米,容积率1.0~1.1,建筑密度35%,绿地率30%,限高24米。
住宅设置10%配套,包括:
物业管理用房、物业经营用房;
社区服务用房、居家养老服务用房、婴幼儿服务用房、公共文化设施用房,应集中布置;
公共体育设施;
餐饮占商业裙房不低于20%;
住宅小区内应同步设计、同步建设智能快递柜或者预留建设智能快递柜的场地;
公厕;
托育机构200平米;儿童成长驿站150平米;社区食堂100平米;文化活动室600平米;体育活动室600平米;
地下室不小于1层;层高不小于3米;高层底部架空,层高不小于4米;
不得建设别墅类(含合院)产品,层数不小于4层,大于(不包括)两联排,建筑最高与最低高度比不超过3:1;
起拍楼面单价11070元/平米。
地块北侧是绿城、英冠拿下的【2025】8号住宅、商业地块绿城英冠·春来晴翠园,楼面溢价率21.08%,14420元/平米。
不过这是低密地块,应该有明显区别。
实际成交价19306元/平米,溢价率74.40%。
公示方案:
阅图理解:
地块占地64021平米,在目前主城区公开出让的建设用地中,容积率1.1及以下的,比这宗地大的只有两个项目:溪映听庐、中海·月陇云岚。
其中溪映听庐是坤和拿地,和滨江、越秀一起开发,绿城设计gad。
这两个项目是限价时代的产品,地处龙坞。有兴趣的可以去了解一下。
作为低密用地,这宗地的地价不算太高,但是溢价率达到了74.40%,位列溢价率排行榜三甲,这也是滨江房产115轮后的杰作。另外两宗地分别是建发地王115.39%,海威&中天的北干东地块76.5%。海威&中天【2024】134号地块萧山北干东项目方案公示(大象设计)
受位置影响,低密住宅用地相对偏远,实际价格都不高。不过,这里价格不高,可能隶属萧山有关。一路之隔的绿城项目属于滨江区,3.0容积率,配了30%商业,楼面地价也有14420元/平米。话又说回来,如果位置又好,容积率又低,那房子八成跟您没啥关系,建发的蒋村楼面地价8.8万,就是例证。
低密房产品居住性极佳,但大家买房子或多或少还是带有投资属性,因此,在销售上,还不一定能胜过地段比较好的高层住宅,从龙坞两个项目看就是。“房住不炒”虽然正确,但是这么大的一笔钱下去,说仅仅用来消费,也确实有点难为牛马们了。
在2025年4月22日这一天,出让了两宗地块,两宗地块都是多轮鏖战、超高溢价,让人仿佛看到了春天的模样。两宗地还有一个共同点:他们的附近都有绿城和英冠合作的项目,绿城的市北项目附近有英冠绿城·晴澜轩,滨江的浦沿项目绿城英冠·春来晴翠园。
地块北侧、西侧沿河沿路比较规则,靠山一侧,变化很多,好在都是小房子,也容易排布。
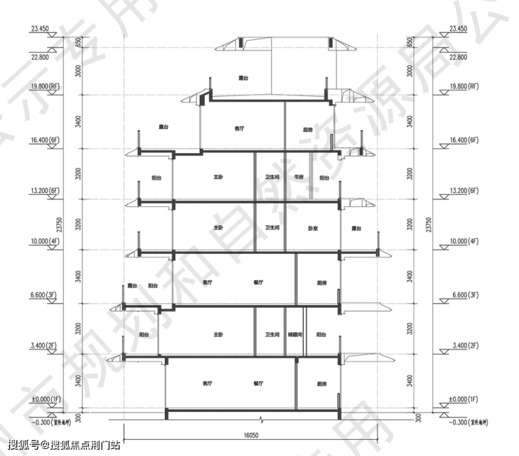
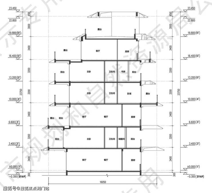
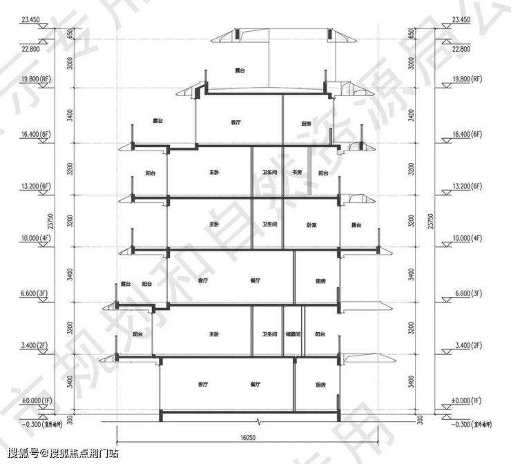
分两块:东北侧,6层叠墅;西南侧,4层叠墅。
目前来看车行出入口都在东北侧长桥线上,对于西南侧的住户来说,稍微有点远,不过都到小区车库了,这些都不算什么。
在两个犄角旮旯的地方塞满了配套:

从剖面来看,滨江在这个位置上没有把产品定位拉得像绿城那么高,6层依然做了上中下三叠。

中叠大概会胜在一个性价比。
很显然,在房价、地价在彻底松绑之后,市场会有一个局部的反弹,毕竟这个世界是你们的,也是我们的,但最主要还是有钱人的。自律能够自由,但是如果自律又有钱,那就更自由。
残酷的方案公示不断提醒我们,在房价松绑之后,很可能,普通人距离特别好的房子距离越来越远。
之前是在看不上和买不起之间纠结。现在不纠结了,只能选择那些看不上的,因为买不起的真的有点买不起了。你所有觉得还不错的,面积又大、价格又高,仿佛就专门跟自己做对似的。
也许你开始怀念那个限价限得死水一潭的畸形时代了。那时候骂归骂,至少还能买得起大牌的房子。
所以肯定是有别的成本在,而这个成本肯定不是建造成本,价格已经低得不能再低了,多少年也没怎么变化。
那是什么呢?
真实的情况是,有些房子根本就是为普通人住的,就跟不是所有的娃都能上一流大学,不是所有人都买不起也不需要奢侈品,不是所有的人都年薪百万,豆浆一次买两碗,喝一碗,倒一碗。
好在每一处价格高企的地块周围都有若干块价格适中的项目,这才是最重要的。
声明:本文由入驻焦点开放平台的作者撰写,除焦点官方账号外,观点仅代表作者本人,不代表焦点立场。


