整个小区的建筑层高都只有6-7F,这意味着晓风望月府有着更好的亲地性,每一户业主都能推窗即享园林美景,这是百米高空给不了的治愈。这点从户型上就能清晰看出来:项目有户型建面约127、139方2款户型设计,堪称神…
杭州「晓风望月府」
【售楼中心电话】:400-080-0105转333
预约来电尊享线上团购优惠,免费专车接送看房
开发商直销,中介勿扰!
网上营销中心24小时销售热线〢欢迎您的来电咨询〢
(项目鸟瞰效果图)
抛出晓风望月府的容积率,就足以令人震惊:1.5;

项目由9幢洋房组成。整个小区的建筑层高都只有6-7F,这意味着晓风望月府有着更好的亲地性,每一户业主都能推窗即享园林美景,这是百米高空给不了的治愈。
(项目效果图)
这个容积率和纯粹的产品组成,意味着整个社区拥有更低的天际线,更大的楼间距,更舒适的居住体验。

同时,垂直空间住户少,居住更清净,物业管理起来也会更加容易。这些优势带给业主的居住体验,是高容积率社区望尘莫及的。
如今的城市进程正在加快,核心区域的土地越来越珍贵,所以每一寸土地都是珍贵的存在。

对于开发商来说也是如此,容积率越高代表着在这片土地上能造更多的房子,能创造出更多的利润。
所以,未来还会不会有如此低密的城市住区出现,真的很难说。晓风望月府售楼处电话Tel:400-018-7969 转555
因此我们认为: 晓风望月府是杭州住宅中,凤毛麟角般的存在。也由于是纯正洋房,这样的建筑形态所带来的得房率远比高层更高。
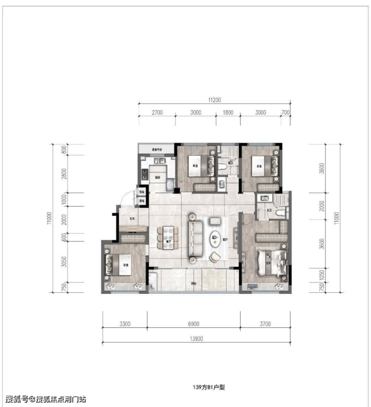
这点从户型上就能清晰看出来:项目有户型建面约127、139方2款户型设计,堪称神户型!
建面约127方:
经典的四叶草格局。这种户型的优势是“消灭过道”,把面积极致利用。另外,因为4个功能间居于四角,且南北通透,对私密性的维护也和当下社会注重隐私的需求不谋而合。

主卧套房设计,飘窗、就寝区、卫浴间层层递进。
其余功能间舒适性,也很足,就连最小的书房,也有近8个平方,完全可以作为卧室来使用。可以说,这个户型的得房率,比市面上大多数高层项目的建面约140方户型得房率还高。
这个户型太绝了。 南向面宽达约13.9米,碾压一众同面积段产品。

做了一个超级大的动区,没有界限的空间区隔、无遮挡的景观视野,将室内空间的功能与室外空间形成联动。约6.9米的面宽,以及和面宽差不多比例的进深, 整体形成一个近40方的方厅,气场之强大,足以比肩约300方的商业大平层。
当然,业主也可以根据自己的生活需求,来选择将动区的一部分来做家庭健身场,或者是爸爸的茶室,妈妈的琴房,宝宝的玩具区等等。X空间,自定义。

价差显著
看完产品,还得看看地段 :一路之隔就是拱墅区运河新城。
拱墅区运河新城板块,目前新房高层最低限价2.95万/平,最高限价4万/平。就以最低限价为例,按照洋房换算,限价也至少要在3.5万/平左右。
晓风望月府位置就在凹进拱墅区的位置,属于北建的重要一环,限价仅2.772万/平,价差约8K/平,总价能省下大几十万。
换句话说,在拱墅区运河新城买一个刚需3房,在这里能买到一个改善四房洋房还不止,加个车位都够。


(项目效果图)
自驾通过拱康路、上塘高架、绕城高速等,可实现快速通勤至杭州各地。
并且项目还享有地铁四期利好:地铁15号线步行距离约300米!

(地块15号线设想图,图源网络)
地铁15号线一路串联起运河新城、武林文晖、钱江新城、江河汇、亚运村、钱江世纪城等高能板块,含金量不言而喻。
再看项目周边的小界面:北面一路之隔就是前村农贸市场(在建),西侧是行政服务中心(在建),南面是滨河公园+崇贤第一小学,东面步行距离约700米则是石塘公园。

杭州「晓风望月府」
【售楼中心电话】:400-080-0105转333
预约来电尊享线上团购优惠,免费专车接送看房
开发商直销,中介勿扰!
网上营销中心24小时销售热线〢欢迎您的来电咨询〢