建筑面积约99平方米的舒适三居,匠心独运动静分区设计,三开间朝南布局,配备双飘窗与宽敞阳台,尽享室内通风采光之宜。特别推荐的是,该户型赠送面积使得实际得房率高达92%,室内走道空间紧凑,极大提升了空间使用效率…
棠悦芳华轩
【售楼中心电话】:400-080-0105转333
预约来电尊享线上团购优惠,免费专车接送看房
开发商直销,中介勿扰!
网上营销中心24小时销售热线〢欢迎您的来电咨询〢
棠悦芳华轩是滨江、兴耀、西房三家房企联合之作。项目实景示范区、样板房已经正式开放,可预约参观。
壹
小区大门/主入口
大门还是不错的,延续着卷大门的风格,一个刚需盘能有这样的大门已然相当不错了。萃取东方礼制精髓,沿东西向主轴设置多重归家院落,形成主入口至迎宾水院及度假水池为一体的礼序归家轴。层层递进的空间,在步移景异中,营造出多重归家仪式。




贰
园林景观/下沉庭院
园林景观精心打造“合悦绽放,漫岛芳华”主题景观,营造艺术氛围,微度假体验与优雅生活空间。从细微之处着手,匠心独运,构筑隐奢美学的视觉盛宴。景观设计灵感汲取自CHAUMET这一知名珠宝品牌的精髓,以“珠宝花卉造型”为核心设计理念,将大胆创新与华丽风格融入景观创作,打造出独具匠心的珠宝风格景观设计体系。







叁
小区会所/泛会所
高达约5.4米的架空空间内,设置八大主题架空层:低龄童玩-马里奥冒险童玩区、中龄童玩-认知体测&冷餐宴会&桌球区、青少年活动天地、健身房、乒乓球俱乐部、阅览室&桌游、会客咖啡屋、长者康养等 8 大功能空间,构筑邻里间温馨共融的「架空层休憩天地」。在这里,24小时不间断的「社区交流乐园」,让您不出家门即可享受健康愉悦的时光。其多元化的功能规划,为各个年龄段精心打造了一个专属的休闲活动空间,此等高端配置在滨江项目中成为一贯特色,而在刚性需求型住宅中更是难得一见。











特别是架空层的儿童游乐区,无论是面积还是游戏种类,都达到了杭州独一无二的全面级别,仿佛将升级版的奈尔宝直接搬进了小区的楼下。











注:以上图片(带TIME STUDIO的)源于致力于高品质影像研究的 空间建筑摄影邱星星,很不错的建筑摄影师,常驻杭州。
肆
户型产品
项目总建面约9万方,规划11幢12-16层纯高层,采用"南低北高"的错落布局,建筑限高50米,楼幢间距预计较为开阔,错落式布局,打造了两大主题园林空间。推出建面约99㎡与113㎡精致三居室,以及建面约108㎡、120㎡、128㎡、139㎡宽敞四居室,满足不同家庭需求。

建筑面积约99平方米的舒适三居,匠心独运动静分区设计,三开间朝南布局,配备双飘窗与宽敞阳台,尽享室内通风采光之宜。









建筑面积约108平方米的四房户型,市场罕见之“珍品”,既满足高品质生活需求,又贴合预算控制,是追求性价比家庭的理想之选。


建筑面积约113平方米宽敞三居室户型,南北通透,四开间朝南设计,配备独立封闭式阳台。南向充足采光,打造明亮舒适的居住环境,空间布局阔绰,尽显生活雅致。

建筑面积约120平方米四室两厅带双卫的边套户型,三面采光设计大幅提升了居住的舒适体验。南向配置两间卧室,其中主卧配备独立套房,次卧享有私人阳台。特别推荐的是,该户型赠送面积使得实际得房率高达92%,室内走道空间紧凑,极大提升了空间使用效率,居住空间宽敞舒适,尺度非凡。








建筑面积约128平方米的四室两厅双卫户型,设计巧妙,四开间均朝南,配备私密式阳台,享受充足的南向自然光照,营造出开阔而明亮的居住空间。










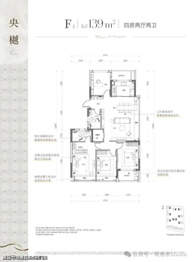
建筑面积约139平米四室两厅双卫户型,以其南向三卧室的宽阔布局、双飘窗与封闭阳台的独特设计脱颖而出。该户型占据小区景观资源核心位置,采用南北通透的整体设计,通风采光极佳。







伍
建筑立面
建筑立面融合滨江33年精湛工艺,采用四面铝板设计,当然内天井、外天井及设备阳台的外墙面采用涂料,底层局部点缀石材,铸就「滨江精选」品质标杆。在整体设计理念上,摒弃了复杂的装饰材料和冗余线条的堆砌,引入现代建筑的设计思维。在工艺细节处理上,运用斜切工艺,增强了外立面的几何感和立体效果,同时搭配圆弧型材的巧妙应用,使建筑整体呈现出柔和而自然的视觉效果。项目采用全封闭式阳台设计,不仅使空间利用更加高效,也使得居住环境更加整洁、舒适。



棠悦芳华轩
【售楼中心电话】:400-080-0105转333
预约来电尊享线上团购优惠,免费专车接送看房
开发商直销,中介勿扰!
网上营销中心24小时销售热线〢欢迎您的来电咨询〢