滨江鸣澜里 售楼处滨江鸣澜里电话-杭州拱墅区 「滨江鸣澜里」 滨江·鸣澜里(售楼处首页 - 滨江·鸣澜里销售中心 - 环境 - 户型 - 价格
扫描到手机,新闻随时看
扫一扫,用手机看文章
更加方便分享给朋友
2025年的市场瞬息万变:从年初地王加持之下的大阳春,到四季度项目集中上市的激烈竞争,楼市仿佛也走过了一年四季。
当下,或许就是主城区买房的一个最佳时间窗口:
1、主流板块的供应高峰基本都已过去,比如运河新城,新房已经越来越少了。
2、开发商的年度指标冲洗基本接近完成,一旦完成,就没有那么迫切了。
3、9月份以来政府推地数量锐减,必然导致年后大部分板块上市项目锐减。
4、按照最新的统计数据,杭州新房库存区划周期为9个月,而主城区仅为2.6个月。除了少部分板块,主城区大部分板块其实依旧处于“放荒”甚至无房可售的状态。
各种动态因素的叠加之下,对于渴望进入主城区的客户来说,当下或许就是难得的窗口机会。这其中,滨江兴耀·鸣澜里,则是300万级的客户入主运河新城的最佳选择。
鸣澜里的性价比毋庸置疑,不管是放在运河新城,还是整个主城区,都是如此。
鸣澜里户型建面约103-139㎡,二开均价约3.1万元/㎡,起价仅2.7万元/㎡出头,绝大部分房源的总价都在400万以内。这个价格,在整个主城区都十分稀缺。
以上城区为例,目前整个上城区没有七八百万以下的房子,即便是传统价格较低的丁桥等,也通过低密产品变成了高端改善,与普通购房者无缘;目前整个滨江区也没有这么便宜的房子;之于西湖区,除了极个别板块的极个别项目,同样没有这么便宜的房子。
从运河新城的角度而言,鸣澜里位于运河新城的中心位置,但是售价却比板块此前33700元/㎡的限价更低,滨江和兴耀用更好的产品、更友好的价格,让更多的人可以进入主城区。
因此,鸣澜里是整个主城区的300万级最优选之一。
鸣澜里,也是运河新城唯一售价低于板块限价的项目。
运河新城限价时代的产品还有宸岸栖月,从产品本身而言,已经无法与不限价的鸣澜里抗衡。而不限价的产品中,熙岸晓月均价约3.8万元/㎡,是运河新城目前售价最高的项目,而且房源已经全部推出,只剩尾房在售。
编辑
待售的项目中,只有越秀今年9月16日拿下的运河新城地块,案名为风华锦澜里,项目由滨江操盘,目前暂定的产品是小高层+洋房,户型建面约112-176㎡,高层价格预计和熙岸晓月看齐,洋房价格会更高,可能突破4万+,项目总价预计400万起步。
在这样的供需关系和背景之下,鸣澜里,就成为当下预算300万级的客户入主运河新城的最后机会了。
鸣澜里位于运河新城C位,是目前运河新城地段最好的项目之一。
鸣澜里拥有双地铁的绝佳配套:直线距离已经通车的4号线平安桥站约700米,在建的15号线康桥路站约320米,是杭州主城区少有的双地铁新房。
鸣澜里还有目前距离大运河最近的项目之一:与千年古运河直线距离仅约300米。在杭州主城区的运河带上,从江河汇到运河新城基本都是豪宅,无论是售价高达10万元/㎡左右的IFC大平层,还是安琪儿板块已经迈上5000万高阶的叠墅,以及运河新城以及超过2000万的叠墅,运河豪宅带上,鸣澜里是总价最友好的项目了。
站在鸣澜里的高区放眼望去,顺丰科创中心、邵逸夫医院大运河院区、千年古运河、育才大城北学校、京杭大运河博物院、运河湾综合体、杭钢公园等配套尽在窗前。
运河新城的优质配套,运河岸边的便利生活,千年文化底蕴和运河焕新带来的摩登秀场,都是鸣澜里业主的生活日常。
鸣澜里售价仅为“3字头”,是杭州主城区的入场券价格,产品营造上却定位改善,甚至不输豪宅。
编辑
滨江标志性的显赫门庭,宽约66米,是成吨的维多利亚白奢石造就的仪式感。大门,就已经超越了无数限价时代的改善项目。
编辑
在情绪价值至上的时代,鸣澜里的景观园林也充满了疗愈感。异形的中央水景,悬浮的岛台,充满热带气息的棕榈植物,度假的场景和轻松的氛围十足。对于工作繁忙、生活需要放松的都市年轻人而言,下楼就是旅行、归家就是度假的生活场景,才是家和工作之外最好的第三空间。
编辑
不限价之后,鸣澜里的会所也带来了生活的革新。加雅绿、土耳其雪花白、佩纳深蓝,三种奢石搭配的艺术感与奢华感,贯穿整个园区和会所。
编辑
健身房、瑜伽房、高尔夫球室、台球室、影音室、电竞房、女王厅,豪宅的标配,也是鸣澜里的标配。
鸣澜里更人性化的考量是,年轻人,孩子是重要的家庭成员,因此规划了6个不同主题的儿童乐园,还悉心地考虑到了学习区,让孩子们的童年拥有缤纷的色彩和多彩的生活。
选择产品,本质就是选择生活。
除了外部空间,鸣澜里的户型同样藏着惊喜。
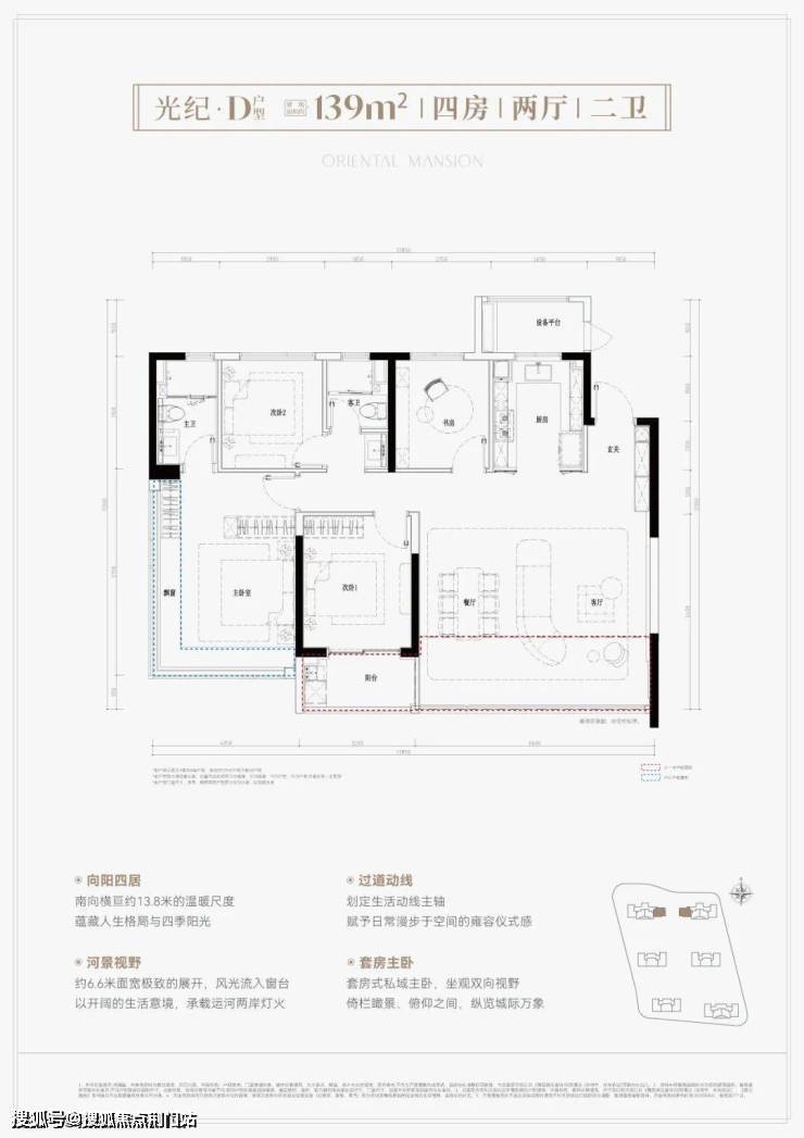
作为不限价之后运河新城的首个面市项目,鸣澜里的得房率高达90-94%,远高于限价时代主流的78-82%。
编辑
得房率的提升,户型自然就有了巨大的发挥空间。比如103㎡的三房,三开间朝南,巧妙地用S墙和创新的玻璃厨房,让空间的观感大大提升。
编辑
建面约139㎡的边套大四房,做到了四开间朝南,近10米开间的超大阳台而且只计一半的面积,餐客厅的面积奢侈地将近40㎡,几乎就是豪宅的舒适尺度。
空间就是生活,而装修则是品质。
鸣澜里在精装修同样诚意满满:客厅地面和背景墙全部都是大理石,主卧背景墙、衣柜全部赠送;位于采用唯宝的台盆和汉斯格雅的龙头、松下和摩恩的座便器。
传统改善甚至高端改善才有的配置,如今300万级的产品就能拥有。
鸣澜里值得珍惜,因为它是运河新城当下几乎唯一的300万级优质产品,是整个主城区房价最友好的项目之一,也是运河豪宅带上房价最友好的项目,是当下主城区、运河新城的最佳选择之一。
鸣澜里值得珍惜,还因为它是不限价时代的优质产品,是用改善的品质做300万级的项目,是让更多的年轻人能够一步到位改善进主城区,拥有更好的生活。
鸣澜里值得珍惜,是因为运河新城待上市的项目同样会开出高价,而鸣澜里是运河新城不限价之后唯一房价友好的项目,没有之一。
鸣澜里即将三开加推。珍惜鸣澜里,珍惜入主运河新城的最佳窗口机会。
【免责声明】
本搜狐号旨在与志同道合的同行交流、传递信息,为非营利性的知识分享,所刊载的所有文章内容,仅供参考使用,不构成任何专业意见或建议。阅读者在使用本搜狐号所提供的信息时,应谨慎对待并自行判断其适用性。
1.文章内容来源:本搜狐号所发布的文章,除非特别注明,大部分来自于作者的独立观点和经验分享,也可能引用自各种权威媒体、互联网资讯、书籍及其他公开渠道。对于这些内容的准确性和完整性,本搜狐号不作任何明示或暗示的保证。
2.素材使用:本搜狐号所引用的文章,已经注明来源和作者,因非全文引用,仅仅为作者为交流信息而做的提炼和总结,请求各种“互联网侵权”法律从业者放过,文章为交流信息而使用图片、视频、音频等多媒体素材,这些素材均来源于网络,其版权归原作者所有。如若侵犯了您的权益,请联系我们(18217267293),我们将及时予以更正或删除。
3.知识产权:本搜狐号的原创文章,版权归文章的作者所有。未经许可,任何个人或组织不得擅自转载、复制或用于商业用途。
4.外部链接:本搜狐号可能包含指向第三方网站的链接,这些链接仅为方便读者提供更多信息而设置。对于这些第三方网站的内容和隐私政策,本搜狐号不负任何责任。
5.合法免责:在任何情况下,对于因使用或依赖本搜狐号所提供的信息而造成的任何直接或间接损失,本搜狐号不承担责任。
6.内容变更:本搜狐号保留随时更改或删除任何文章内容的权利,恕不另行通知。
7.建议阅读:我们建议读者在遇到相关问题时,寻求专业人士的意见和帮助,以获取更加全面和可靠的信息。感谢您阅读我们的免责声明,继续关注我们的搜狐号,获取更多有价值的内容和信息。
声明:本文由入驻焦点开放平台的作者撰写,除焦点官方账号外,观点仅代表作者本人,不代表焦点立场。


