滨江鸣澜里 楼盘介绍,售楼处地址,一房一价信息,户型,滨江鸣澜里售楼处(滨江鸣澜里售楼中心)首页网站_滨江鸣澜里售楼处|滨江鸣澜里楼盘详情
扫描到手机,新闻随时看
扫一扫,用手机看文章
更加方便分享给朋友
当下杭州楼市的一个现状,很多高知年轻群体的第一套房,往往分化为两种形态:
1、买新房:往往地段比较偏,配套比较弱,通勤时间很长,只能临时过渡一下;
2、买二手房:这些房源地段不错,但以老破小为主,无电梯、无物业、无品质,除了通勤时间短之外,其他需求难以被满足。
很多年轻人虽然学历高、收入高、前景好,但刚毕业几年积累较少,能承受的总价有限,只能被迫买这两类房子。
欢迎拨打售楼处电话:400-018-7969转444(有专业顾问为您一对一讲解)
他们对于优质地段的好房子的渴求,比任何群体都要强烈,但市场一直供应不足!最典型的莫过于——主城拱墅区运河新城「滨江造」楼盘总是被一抢而空:
滨运锦上湾,一出场即闭眼摇,首开1721组登记,屡开屡罄,中签率维持在10%出头;
滨运锦绣里,首开就直接“拼社保”,普通家庭最低社保月数101月才能入围;最后一摇,有994组客户登记,中签率低至11.27%,又差点儿拼社保;
滨运映翠湾,收官火爆也不遑多让,登记量高达1484组,中签率10.04%……
可以看出,“运河新城+滨江造”的王炸组合,自带“千人摇”的顶流效应。
4月底滨运映翠湾圆满收官后,一直出现了断档。好在,滨江布局运河新城沿岸的第四⼦:滨江兴耀·鸣澜里,终于补上空缺,项目即将于本周末开放实景展示区。
(鸣澜里户型分布鸟瞰示意图)
这个楼盘,小胖已提前去了解过,回来仔细盘算、对比市面上同等总价段的楼盘,发现鸣澜里是其中少有的全能型选手。
欢迎拨打售楼处电话:400-018-7969转444(有专业顾问为您一对一讲解)
除了地段、配套、物业管理等方面优势明显,其产品力更是卷爆,是3万+同价位楼盘中的佼佼者。
如果现在要让我在杭州买一套300万级的房子,那么鸣澜里会是我的首选。
感兴趣的朋友,欢迎戳下方链接报名看房:
主城区黄金腹地,安全垫很高
既有现在,更有未来
或许你会好奇,为什么「运河新城+滨江造」总能创造热销奇迹?我想以下几点值得关注。
其一、城北之芯运河新城,产业集聚,人才扎堆,居住、置换的需求巨大。
欢迎拨打售楼处电话:400-018-7969转444(有专业顾问为您一对一讲解)
作为杭州主城留白地、拱墅「举全区之力」重点建设的城北之芯,运河新城打出“文化+地标”、“生态+生活”、“经济+产业”三大组合拳,让其含金量持续飙涨。
人文荟萃:诸如京杭大运河博物院(在建)、大运河未来艺术科技中心(规划)等7大城市级艺文地标环伺,人文艺术气息拉满。
宜居胜地:未来,千年运河旁生长出一条世界级的滨水空间带,全长18公里山水景观环链,放置14个不同主题的水岸活力公园。
(京杭大运河航拍图,源自图虫,已授权)
科创引领:杭州首个创新型小镇智慧网谷,已经吸引了新浪、360、联想、华为等大批高新互联网企业入驻,虹吸海量高素质人才。

不仅如此,杭钢数字经济小镇(规划),国资云、气象云、健康云三大省级数字基座在此扎根。
(杭钢半山数字经济小镇示意图,源自网络)
杭州又一国字号“中国算谷”即将诞生(也是“杭州科创六谷”之一)正在建设中,这里或将成为下一轮科技爆发的原点!
北部康桥健康产业、能源产业也逐步落地。如此高层次的战略部署,运河新城起飞模式已经开启。
其二、运河新城C位,占位黄金生活圈,鸣澜里拥享醇熟生活优配。
(鸣澜里区位示意图)
除了板块潜力无限,鸣澜里本身的占位亦不容小觑。
项目位居“大城北历史年轮带”与“大运河风光文化带”这两大轴线交汇点,极强的CP加持,鸣澜里隐形价值更加刺激。
欢迎拨打售楼处电话:400-018-7969转444(有专业顾问为您一对一讲解)
交通方面,地铁4号线平安桥站直线距离约700米,15号线康桥路站(在建)约320米,加上康桥路、丽水北路、上塘高架等,出行便捷。
周边城北万象城、拱墅万达、运河上街、乐堤港等5大商业综合体环伺,让购物和聚会变得轻松愉快。

(育才大城北学校实景图,源自网络)
此外,教育资源云集,如育才大城北学校,以及文渊小学(新城校区)、杭十四中附属学校,杭十四中康桥校区,家门口还规划一所九年一贯制学校等。(注:具体学区以教育局文件为准)
欢迎拨打售楼处电话:400-018-7969转444(有专业顾问为您一对一讲解)
值得一提的是,项目直线距离约300米运河水岸,出园可到运河游步道,近揽一线京杭大运河缤纷胜景,可以安放杭州人都有的运河情结。
闭眼买的「滨江造」爆款
建面约103-139方户型,实得率高达94%
巨大的需求之下,鸣澜里,定位优总价、高品质,让杭州奋斗的年轻人,买到人生第一套好房子,让年轻人更轻松地留在主城区核心地段。
👉产品定位:小面积,优总价!
欢迎拨打售楼处电话:400-018-7969转444(有专业顾问为您一对一讲解)
鸣澜里整盘规划6栋17-24层高层,容积率2.7、绿地率约35%,构筑建面约103-139方覆盖首置、改善人群,包括5大户型,其中建面约103方大三房、约120方-126方-139方为大四房,深受关注。
(鸣澜里立面效果示意图)
👉用足政策:实得率高达94%,大空间!
欢迎拨打售楼处电话:400-018-7969转444(有专业顾问为您一对一讲解)
在户型方面,鸣澜里优势明显,采用4月的计容新规,用全力卷“高使用率”,不仅减少过道空间浪费,且飘窗全赠送、阳台半赠送,实际得房率约90-94%,远超想象。(数据来源小程序测算)
建面约103方3房2卫,「入门即改善」的典范
南向三开间朝南,约9.8米大面宽,约7米阔绰阳台,餐客厅贯通,并连接阳台,百变待客空间;套房式主卧,南联阔景飘窗,栖居更温馨舒适。
欢迎拨打售楼处电话:400-018-7969转444(有专业顾问为您一对一讲解)
在降低总价门槛的同时,也让年轻购房者能轻松享受到「改善性的大三房」,对于总价3打头的户型来说,不管是实用性、空间感优势都格外突出。
建面约120方4房2卫,爆款全能舒适四房
这款改善四居户型,拥有同面积段罕见的约13.1米南向大面宽,四个房间面宽均超过3米,南向主卧和次卧分布在客厅两侧,保证了居者私密性;客餐厅、阳台一线贯通,不仅轩敞气派,而且采光效果更好;主卧套房设计,舒适度拉满。
建面约126方4房2卫,270°稀缺边套四房
如果追求视野和仪式感,该户型完美契合。四开间朝南的王者格局,主卧配约3.5米飘窗,叠加约6.1米观景宽幕,你的家就像“运河第一排观景座”,运河船只往来间,镌刻下永不落幕的风景。
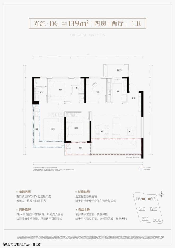
建面约139方4房2卫,宝藏款社交型大宅
约139方则分为横竖两款,全部为边套,两梯两户设计,尊崇感和私密感兼备。“横版”是四开间朝南+大方厅+L型转角飘窗的“全景舱主卧”+超级双联阳台;“竖版”有大边厅带超长观景飘窗+约10米南向三开间+酒店式套房……房源数量很少,且摇且珍惜。
3万+超配的「小豪宅」
实景展示区,本周末开放在即
3万+超配:鸣澜club+泛会所,同频豪宅体验!
(鸣澜里园区配置示意图)
项目以“两轴”为笔,勾勒五重归家礼序,串联双芯花园,让业主拥享豪宅社区才能有的度假式高定园林。
(鸣澜里景观园林效果示意图)
园区中央规划了“九境”花园,涵盖下沉水院、水景卡座、精致景墙等,以及不规则的透蓝戏水池。未来在家楼下,即可在林荫中聆听天籁,在绿植旁赏景,在水景簇拥中漫步,一场放松身心的度假之旅,可以随心开启。
(鸣澜里景观园林效果示意图)
更优秀的是,仅看一张公区规划效果图,就完胜其它同级别楼盘。
(鸣澜里园区配置示意图)
园区高配“鸣澜club”,棋牌室、台球区、女王厅、健身房、电竞影音室、室内高尔夫……都是2025滨江顶豪系列的同款功能配置,跟同板块、同价位的楼盘相比,堪称“跃级”。
品质卷爆:不限价时代,“滨江造”出场就是王炸!
(鸣澜里立面效果示意图)
在建筑型制上,鸣澜里媲美6万+东站旁的奢宅!采用四面铝板、造型格栅与大面玻璃幕墙的巧妙组合,加上深灰基座、鎏金窗框,使风格更加稳健、具有漂浮的质感。同时,打磨建筑单体的圆角弧度,以丰富层次、通透阔境,引领未来的审美趋势。
(鸣澜里主入口效果示意图)
还有各种高级材料的运用,如维多利亚白石材、白玫瑰石材、地面拼花石材、土耳其雪花白石材、宝格丽黑石材、绿野仙踪岩板、贝母漆、皮革硬包等。
可见滨江完全是以小豪宅的标准来打造鸣澜里的。
欢迎拨打售楼处电话:400-018-7969转444(有专业顾问为您一对一讲解)
写在最后:
再说下鸣澜里的价格和值不值得买。
对比周边的二手房。如上河公元约105方市场价普遍在430万-450万之间。7月初,河语光年府一套139方以702万元成交,单价约5.05万/平。
对比附近的新房。4月,运河新城连拍2宗宅地,楼面价飙到了3万9,其中一楼盘高层放风约6万,套均千万级起步,叠墅价格就更高了;项目附近的另一新盘,起步面积更大,且约166方户型占比高,单价与总价都比鸣澜里要高出一大截。
总价300万级亲民价,高配千万级的品质,如此炸裂的价差感,这样的鸣澜里谁肯错过?
据悉,项目预计本周末就会开放实景展示区!想要了解更多的话,大家可以冲过去慢慢品!滨江兴耀·鸣澜里
【免责声明】
本搜狐号旨在与志同道合的同行交流、传递信息,为非营利性的知识分享,所刊载的所有文章内容,仅供参考使用,不构成任何专业意见或建议。阅读者在使用本搜狐号所提供的信息时,应谨慎对待并自行判断其适用性。
1.文章内容来源:本搜狐号所发布的文章,除非特别注明,大部分来自于作者的独立观点和经验分享,也可能引用自各种权威媒体、互联网资讯、书籍及其他公开渠道。对于这些内容的准确性和完整性,本搜狐号不作任何明示或暗示的保证。
2.素材使用:本搜狐号所引用的文章,已经注明来源和作者,因非全文引用,仅仅为作者为交流信息而做的提炼和总结,请求各种“互联网侵权”法律从业者放过,文章为交流信息而使用图片、视频、音频等多媒体素材,这些素材均来源于网络,其版权归原作者所有。如若侵犯了您的权益,请联系我们(18217267293),我们将及时予以更正或删除。
3.知识产权:本搜狐号的原创文章,版权归文章的作者所有。未经许可,任何个人或组织不得擅自转载、复制或用于商业用途。
4.外部链接:本搜狐号可能包含指向第三方网站的链接,这些链接仅为方便读者提供更多信息而设置。对于这些第三方网站的内容和隐私政策,本搜狐号不负任何责任。
5.合法免责:在任何情况下,对于因使用或依赖本搜狐号所提供的信息而造成的任何直接或间接损失,本搜狐号不承担责任。
6.内容变更:本搜狐号保留随时更改或删除任何文章内容的权利,恕不另行通知。
声明:本文由入驻焦点开放平台的作者撰写,除焦点官方账号外,观点仅代表作者本人,不代表焦点立场。


