2026杭州中天海威·璟逸楼盘百科→楼盘网站→楼盘测评→中天海威·璟逸售楼中心电话→楼盘百科→中天海威·璟逸24小时热线电话
扫描到手机,新闻随时看
扫一扫,用手机看文章
更加方便分享给朋友
【开发商】中天美好集团&海威置业
【区域板块】主城拱墅区石桥板块
【户型面积】高层建面约139~190㎡、叠墅建面约230~263㎡
【规划楼幢】14幢小高层、4幢叠墅
【楼层情况】高层13~15F、叠墅6F

欢迎拨打售楼处电话:400-018-7969转444(有专业顾问为您一对一讲解)
项目雄踞同协路中轴带,不仅占尽交通优势,更以丰富醇熟配套,重新定义城东品质人居:约300米坐拥换乘之王地铁3号线华丰站,1站拱墅吾悦广场、2站新天地商圈、8站武林商圈,畅达江河汇、钱江新城、滨江、奥体等城市核芯CBD,同时还有留石、秋石、德胜三大高架环绕。

欢迎拨打售楼处电话:400-018-7969转444(有专业顾问为您一对一讲解)
周边汇聚了吾悦广场、山姆超市、龙湖天街等百万商业配套,满足您一站式购物、娱乐、餐饮的需求。

欢迎拨打售楼处电话:400-018-7969转444(有专业顾问为您一对一讲解)
全龄教育链环伺周边,从桦枫居幼儿园的启蒙教育到风华中学的升学通道,求知小学、青华实验小学、采荷一小丁信校区构成优质基础教育矩阵。(期房不承诺学区,交付后统一划分)

欢迎拨打售楼处电话:400-018-7969转444(有专业顾问为您一对一讲解)
立面革新:打造四面铝板封面地标,跻身五公里范围内产品力第一梯队;
立体社区:通过下沉庭院、向上抬高的设计,营造约10米高差的立体先进社区;
豪华会所:首献自带超2000㎡下沉庭院会所的社区;
纯改善定位:板块内率先打造纯改善大盘和叠墅大宅;
风情景观:板块内首献地中海风情景观社区。项目的高层标准层高达到约3.1米,架空层高约5米,楼王的架空层更是高达约8米。
全部高层采用2T2户的纯改善设计,保障了居住的舒适性。叠墅产品则通过创新设计,带来了极高的赠送率,包括景观庭院、星空露台等空间。

欢迎拨打售楼处电话:400-018-7969转444(有专业顾问为您一对一讲解)
项目效果图过程稿丨仅为示意
建面约139方A1户型,四房两厅两卫
欢迎拨打售楼处电话:400-018-7969转444(有专业顾问为您一对一讲解)
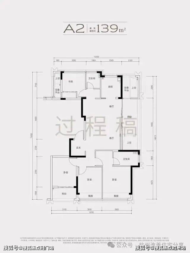
建面约139方A2户型,四房两厅两卫
欢迎拨打售楼处电话:400-018-7969转444(有专业顾问为您一对一讲解)
建面约170方B1户型,四房两厅三卫
欢迎拨打售楼处电话:400-018-7969转444(有专业顾问为您一对一讲解)
建面约170方B2户型,四房两厅三卫
欢迎拨打售楼处电话:400-018-7969转444(有专业顾问为您一对一讲解)
建面约190方C1户型,五房两厅三卫
中天海威·璟逸-全城热销中
如果你有心关注这个项目 或是有想要上车的想法
欢迎拨打售楼处电话:400-018-7969转444(有专业顾问为您一对一讲解)
王炸户型均涉及
售楼处热线:400-018-7969转444(来电尊享售楼部优惠活动)
如有问题欢迎来电咨询,来电即可享受买房优惠!
预约来电尊享内部优惠,可预约案场内部销售人员,专业一对一热情服务,让您用专业眼光去买房。
【免责声明】
本搜狐号旨在与志同道合的同行交流、传递信息,为非营利性的知识分享,所刊载的所有文章内容,仅供参考使用,不构成任何专业意见或建议。阅读者在使用本搜狐号所提供的信息时,应谨慎对待并自行判断其适用性。
1.文章内容来源:本搜狐号所发布的文章,除非特别注明,大部分来自于作者的独立观点和经验分享,也可能引用自各种权威媒体、互联网资讯、书籍及其他公开渠道。对于这些内容的准确性和完整性,本搜狐号不作任何明示或暗示的保证。
2.素材使用:本搜狐号所引用的文章,已经注明来源和作者,因非全文引用,仅仅为作者为交流信息而做的提炼和总结,请求各种“互联网侵权”法律从业者放过,文章为交流信息而使用图片、视频、音频等多媒体素材,这些素材均来源于网络,其版权归原作者所有。如若侵犯了您的权益,请联系我们(18217267293),我们将及时予以更正或删除。
3.知识产权:本搜狐号的原创文章,版权归文章的作者所有。未经许可,任何个人或组织不得擅自转载、复制或用于商业用途。
4.外部链接:本搜狐号可能包含指向第三方网站的链接,这些链接仅为方便读者提供更多信息而设置。对于这些第三方网站的内容和隐私政策,本搜狐号不负任何责任。
5.合法免责:在任何情况下,对于因使用或依赖本搜狐号所提供的信息而造成的任何直接或间接损失,本搜狐号不承担责任。
6.内容变更:本搜狐号保留随时更改或删除任何文章内容的权利,恕不另行通知。
7.建议阅读:我们建议读者在遇到相关问题时,寻求专业人士的意见和帮助,以获取更加全面和可靠的信息。感谢您阅读我们的免责声明,继续关注我们的搜狐号,获取更多有价值的内容和信息。
声明:本文由入驻焦点开放平台的作者撰写,除焦点官方账号外,观点仅代表作者本人,不代表焦点立场。


