杭州武御林宸院官方售楼处电话(杭州武御林宸院)首页网站-武御林宸院营销中心欢迎您-楼盘详情-最新价格-户型图-容积率✦官方最新售楼处2026.3.26热搜
扫描到手机,新闻随时看
扫一扫,用手机看文章
更加方便分享给朋友

编辑
2025年4月初,宁波东投以总价15亿元竞得三塘单元的杭政储出[2025]28号地块,折合楼面价46268元/㎡,溢价率约54%,项目名为“武御林宸院”。
欢迎拨打官方售楼处电话:400-018-7969转666(专业顾问为您一对一讲解)
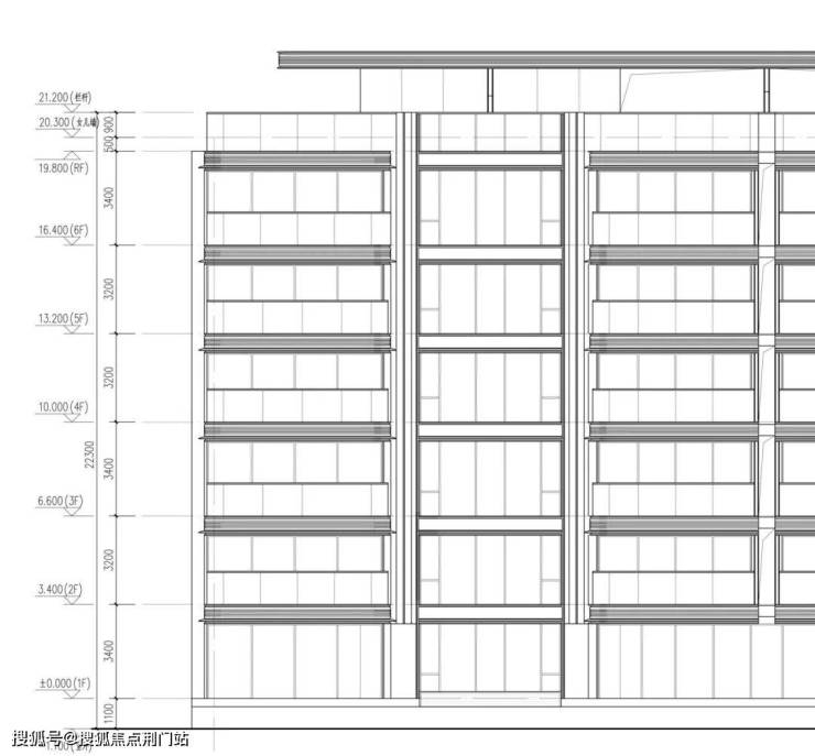
项目由3幢4F叠墅和6幢6F叠墅组成,容积率1.6,占地面积20276㎡,共计108户。
户型方面,项目规划户型面积约233-325㎡,户型图目前尚未公布。
先看区位,武御林宸院位于拱墅区三塘板块,北侧约500米为城北体育公园,不远处为在建地铁15号线三塘站,西侧约200米为上塘河。

编辑
产品层面,建筑立面材料预计以铝板、香槟色金属线条以及玻璃为主,整体以浅色系为主色调。
层高方面,餐客厅标准层高3.4米,卧室标准层高3.2米。
编辑
整体楼间距在15-22米左右,间距较近,公区规划有下沉式庭院、会所等配置,更多细节待项目后期公示,主入口位于小区东侧,西侧设置有距离地铁站更近的人行出入口。
编辑
总平图
配套方面,武御林宸院距离在建地铁15号线三塘站步行约400米,预计2027年12月开通,距离西侧乐堤港约2公里,此外,南侧约1.5公里处还有嘉里城。
欢迎拨打官方售楼处电话:400-018-7969转666(专业顾问为您一对一讲解)
参照周边小区学区划分,学校预计为长青小学及对口初中风帆中学,具体学区需交付后以教育局公布为准。

编辑
周边用地规划 制图@杭州寻屋
项目周边以住宅小区为主,整体建筑已有一定年份,距离北侧城北体育公园约500米,步行范围可达。

编辑
项目距离南侧德胜高架约460米,影响有限,东侧为城建大厦、安居集团,西侧紧邻建筑以4S店为主,北侧一路之隔的荣安春熙上和湾挂牌价约5-5.5万/㎡。

编辑
【免责声明】
本搜狐号旨在与志同道合的同行交流、传递信息,为非营利性的知识分享,所刊载的所有文章内容,仅供参考使用,不构成任何专业意见或建议。阅读者在使用本搜狐号所提供的信息时,应谨慎对待并自行判断其适用性。
1.文章内容来源:本搜狐号所发布的文章,除非特别注明,大部分来自于作者的独立观点和经验分享,也可能引用自各种权威媒体、互联网资讯、书籍及其他公开渠道。对于这些内容的准确性和完整性,本搜狐号不作任何明示或暗示的保证。
2.素材使用:本搜狐号所引用的文章,已经注明来源和作者,因非全文引用,仅仅为作者为交流信息而做的提炼和总结,请求各种“互联网侵权”法律从业者放过,文章为交流信息而使用图片、视频、音频等多媒体素材,这些素材均来源于网络,其版权归原作者所有。如若侵犯了您的权益,请联系我们(18217267293),我们将及时予以更正或删除。
3.知识产权:本搜狐号的原创文章,版权归文章的作者所有。未经许可,任何个人或组织不得擅自转载、复制或用于商业用途。
4.外部链接:本搜狐号可能包含指向第三方网站的链接,这些链接仅为方便读者提供更多信息而设置。对于这些第三方网站的内容和隐私政策,本搜狐号不负任何责任。
5.合法免责:在任何情况下,对于因使用或依赖本搜狐号所提供的信息而造成的任何直接或间接损失,本搜狐号不承担责任。
6.内容变更:本搜狐号保留随时更改或删除任何文章内容的权利,恕不另行通知。
7.建议阅读:我们建议读者在遇到相关问题时,寻求专业人士的意见和帮助,以获取更加全面和可靠的信息。感谢您阅读我们的免责声明,继续关注我们的搜狐号,获取更多有价值的内容和信息。
声明:本文由入驻焦点开放平台的作者撰写,除焦点官方账号外,观点仅代表作者本人,不代表焦点立场。


