杭州万科朗拾滨屿府售楼处丨万科朗拾滨屿府楼盘详情|万科朗拾滨屿府首页网站
扫描到手机,新闻随时看
扫一扫,用手机看文章
更加方便分享给朋友
万科朗拾滨屿府
售楼处电话:400-018-7969 转 333
(温馨提示:看房请提前线上预约)
网上预约更方便〢看房预约不排队〢专业一对一热情服务〢
时隔两年!低总价留在国际滨的机会又出现了!
要知道,这是多少新杭州人的梦想!
作为数字经济产业高度发达的城区,滨江是杭州最大的年轻人聚集地之一。
每天早晚高峰,产业核心区的几大地铁站,挤满了通勤时长超过1小时的上班族。
滨江的年轻人,何尝不想留下来?但这又谈何容易,在主城四区中,滨江的起步门槛是最难以企及的。
▲滨江区实景图(图源滨江发布)
两年前,随着滨玺云著等楼盘的售罄,国际滨就暂别了单价3万+时代,直奔4万/㎡以上。
而且越来越大的户型,把总价又拉升了一大台阶。
更别提令人仰望二手房市场,柳岸晓风等核心地段楼盘,单价甚至超过了10万/㎡!
滨江的房价,让无奈的年轻购房者,只能把目光投向价格更低,通勤距离更久的周边板块。
在日复一日的漫长的上下班行程中,你错过的不仅是每天的日落和晚霞,更是生活原本该有的从容和惬意。
现在,机遇又一次降临了!
几个月前,万科布局滨江区,带来了战略级迭代产品——“拾”系的朗拾滨屿,这也是“拾”系首次亮相杭州。

▲朗拾滨屿项目鸟瞰图
朗拾滨屿的精装修限价仅39000元/㎡(杭州规划和自然资源局公示数据),再一次将滨江区的限价拉回到了4万/㎡以内!
它的起步户型面积也回到了100㎡内,滨江新房市场目前仅有的约96㎡的户型,给更多年轻人提供了留在滨江区的机会,起步总价仅约320万起!
更重要的是,项目距离滨江互联网小镇仅约3公里(百度地图测算),整个滨江区没有比他更近的在售楼盘了!
无疑,这一次,万科朗拾滨屿将引领国际滨的性价比专场!
而当你真正看完朗拾滨屿的产品,会发现它的魅力也绝不仅仅只是价格。
万科朗拾滨屿府
售楼处电话:400-018-7969 转 333
(温馨提示:看房请提前线上预约)
网上预约更方便〢看房预约不排队〢专业一对一热情服务〢
所谓细节见真章,下面先来体验一下,万科在产品打磨上的用心之处。
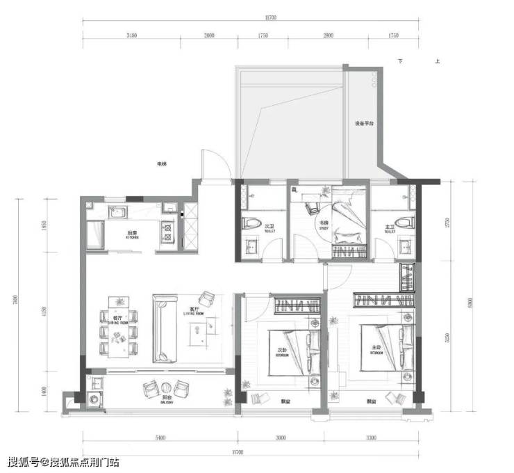
这套约96㎡户型,总体布局看似“平平无奇”,但细节上充满了人性化理念。
有生活经验的人都知道,每家必备的冰箱是一个很占空间的家电,无论放在厨房还是客餐厅。
朗拾滨屿的约96㎡户型,采用了分户S墙设计,在墙体结构设计时预留了冰箱、玄关柜、客厅边柜等空间,让装修后的室内空间更加完整和美观。

▲约96㎡户型局部解析
而且,冰箱放进客餐厅后,厨房的空间就变得更大了。
通过可开放式的玻璃隔断设计,厨房不仅更加敞亮,在无油烟操作下还能增加与客厅的互动。客、餐、厨三个空间打通,小户型也能拥有开阔的公区视野。
▲约96㎡户型装修效果图
不仅如此,万科还充分考虑到房子超长的生命周期,通过承重墙结构的优化,让业主在人生不同的阶段,都能对房子进行有充满想象力的改造。
下面这个图可以直观地看出,这个户型的承重墙很少,换言之,可拆除改造的墙体非常多。

▲约96㎡户型图解析
举个例子,一些年轻的业主,在入住的前10年对房间的数量需求不大,与其空着浪费,不如将次卧与客厅打通,做成一个开放式书房。
如此改造后,约96㎡的小户型,甚至能拥有媲美豪宅的空间居住体验!
▲约96㎡户型装修效果图
朗拾滨屿的约107㎡户型同样令人心动。
它的总面宽达到了约11.7米,超大尺度的南向跨度,足以容纳主卧+次卧+客厅+餐厅!
而滨江区在售新房同等面积段的户型中,只有朗拾滨屿做到了四开间朝南!
▲约107㎡户型图
超长的跨度也拉大了厨房的面宽,相比更深的厨房,这个厨房显然在功能实用性上更优越,与客餐厅的空间接触面大,也意味着互动性更强。
约107㎡户型的主卧,还做到了南北通透,更加独立的空间,让居住舒适值拉满!
万科朗拾滨屿府
售楼处电话:400-018-7969 转 333
(温馨提示:看房请提前线上预约)
网上预约更方便〢看房预约不排队〢专业一对一热情服务〢
在改善面积段户型上,万科的产品把控功力依然深厚。
约119㎡户型同样运用了S墙设计,在客厅一侧预留出储物边柜的同时,又将两个卫生间的洗脸台嵌入,空间不再琐碎,利用率更高。
在玄关位,为了更大限度的留出完整储物空间,它的强弱电箱被移到了室内储藏间。

▲约119㎡户型图解析
该户型的另一大亮点是,虽然朝南的房间只有两个,但朝阳的房间做出了3个!
除了主次卧外,还有一个单侧全明房间。对于边套户型来说,这个房间也能拥有足够的日照。
朗拾滨屿约139㎡户型的面积足够阔绰,但在空间利用的设计上,万科依然下足了功夫。

▲约139㎡户型图解析
同样得益于承重墙的优化,阳台和房间之间的墙体均可拆除,南向的两个次卧也拥有了极大的可塑造性。
边侧的次卧将原先设计的阳台全部打通,形成了一个足以媲美主卧的空间。而中间的卧室,也拥有如此改造的可能。
▲约139㎡户型次卧装修效果图
在客餐厅区域,长达约5.8米的飘窗,直接使用或改造都能游刃有余。
当然,让我眼前一亮的还有面宽达约4.2米的大厨房,家里请一大桌客人吃饭也能有足够的施展空间。
朗拾滨屿在装修标准上也是诚意满满。
大多项目的厨房只有3件套,而他们配了4件套;不仅主卧装了智能马桶,次卧也高配了智能马桶盖!
连一个小小的台盆龙头就有3种出水方式,简直把功能研究到了极致!
万科朗拾滨屿府
售楼处电话:400-018-7969 转 333
(温馨提示:看房请提前线上预约)
网上预约更方便〢看房预约不排队〢专业一对一热情服务〢
除了户型细节,朗拾滨屿在建筑和景观的整体打造也令人印象深刻。
万科“拾”系产品定义为“精致、雅奢、放松、静谧”的品质感,为了给业主度假般的居住体验,朗拾滨屿在设计上充分学习了曼谷湄南河四季酒店。
▲朗拾滨屿建筑立面效果图
项目为公建化的外立面,四面铝板+封包阳台,让建筑更加整体美观。
并且采用金色+白色为主色调,彰显轻奢和典雅,建筑表现力十分细腻,识别度很高。
在景观营造上,朗拾滨屿引入了申花豪宅古翠秀隐标配的“四个盒子”,在架空层打造学习盒子、健身盒子等空间,业主可在自家楼下学习健身或接待客人。
▲朗拾滨屿景观设计平面图
景观不仅是看的,还能让人有参与感。
比如万科在园区内设计了一个认知植物园,里面种植了大量常见和非常见的植物,孩子们不仅可以玩耍,还能学到知识。
此外,还有可以下水戏耍的“寻溪拾趣”,可以撒泼打野的“微风草坪”……
万科朗拾滨屿府
售楼处电话:400-018-7969 转 333
(温馨提示:看房请提前线上预约)
网上预约更方便〢看房预约不排队〢专业一对一热情服务〢
▲朗拾滨屿景观效果图
微风草坪连接着森林露台,它的设计灵感来源于度假酒店,让陪伴孩子的家长,在不妨碍看护的同时还能得到度假般的身心放松。
万科朗拾滨屿府
售楼处电话:400-018-7969 转 333
(温馨提示:看房请提前线上预约)
网上预约更方便〢看房预约不排队〢专业一对一热情服务〢
除了产品本身,购房者更关心的还有配套资源,作为四大主城区之一的国际滨,这些自然不在话下。
朗拾滨屿的价格是滨江区的“守门员”级,却又集大牌房企和优质配套于一体。
项目与双硅谷学校为邻,一路之隔的是已建成的硅谷小学(杭二中白马湖学校教育集团),南侧为在建的硅谷中学。(新建项目不承诺学区,以教育部门最终公布为准)

▲硅谷小学实景图
朗拾滨屿地处滨江“黄金三角”,毗邻三条主干道。
通过火炬大道可连接滨江核心地段,快速直达滨江宝龙城、浙大儿院、浙大二院。
东侧的时代大道是杭州南北向的中轴线快速路,一路往北连接钱江新城和吴山-湖滨-武林商圈。
北侧是另一条快速路,彩虹快速路串联起之江、之江、萧山等板块。
▲朗拾滨屿区位示意图
朗拾滨屿还处在滨江产业的“三芯交汇”处,周边拥有智造供给小镇、零磁科学谷、白马湖生态创智城三大高能级产业项目。
在后亚运时代,奥体主场的滨江区,无疑将成为拥江发展的主力军。
精装限价39000元/㎡(杭州规划和自然资源局公示数据),总价约320万起入主国际滨的机遇,实属难得!
万科朗拾滨屿府
售楼处电话:400-018-7969 转 333
(温馨提示:看房请提前线上预约)
网上预约更方便〢看房预约不排队〢专业一对一热情服务〢
声明:本文由入驻焦点开放平台的作者撰写,除焦点官方账号外,观点仅代表作者本人,不代表焦点立场。


